
35坪の平屋住宅を建てる場合、間取りや窓の配置を決める際にしっかりとした計画を立てることが大切です。注文住宅で平屋を検討している方の中には、どのくらいの広さの土地があれば快適な暮らしができる家を建てられるのか悩んでいる方も多いでしょう。
この記事では、35坪のプラン実例の特徴や平屋住宅の費用目安、メリット・デメリットを解説します。35坪で建てるデメリットの対策も紹介しているので、平屋の注文住宅の間取りを検討している方はぜひ参考にしてください。
この記事はこんな人におすすめ
- 平屋住宅を希望しており、35坪前後でのプランを検討している方
- 間取りの具体的な実例や設計の工夫を知りたい方
- 平屋の建築コスト・予算感を把握したい方
この記事でわかること
- 35坪平屋住宅の間取りプラン実例とその特徴
- 平屋を建てる際の費用目安とコスト構成
- 平屋ならではのデメリットとその対策
無料住宅作品集の取り寄せ
平屋の実例を含む、約40の実例写真・間取り・価格をご紹介。資料請求いただいた皆様に、無料でお届けします。

住宅作品集を取り寄せる
延床面積35坪の平屋の広さはどのくらい?

延床面積35坪の平屋は、約70帖または約116㎡の広さです。4人家族が暮らすには十分な広さで、1人増えて5人家族になっても狭さを感じずにゆとりを持って暮らせます。35坪の平屋で考えられる間取りとして、3LDKや4LDKが挙げられます。
さらに、次に挙げるスペースを作れば、暮らしを豊かにできるでしょう。
・ファミリークローゼット
・パントリー
・ロフト
・小屋裏収納
・ウッドデッキ
・屋内ガレージ
なお、建ぺい率を60%とした場合、延床面積35坪の平屋を建てるためには約58坪の敷地面積が必要です。敷地いっぱいに家を建てられるわけではありませんので、土地探しから始める場合は気を付けましょう。

素敵な暮らしを実現!35坪の平屋住宅の間取りプラン実例
ここからは、35坪の平屋住宅の間取りプランの実例を紹介します。実例では、35坪の広さを活かして、家族が暮らしやすい家にするための間取りのアイデアや工夫が詰め込まれています。間取りに悩んでいる方は、実例とその特徴を参考にしてみてください。
【実例1】配慮のある快適な暮らしができる3LDKの間取り

ベッドルームが6帖2部屋と10帖1部屋がある3LDKの間取りで、家族4〜5人で暮らすことを想定して設計しています。LDKは21帖と広く、家族全員がリビングに集まってもスペースに余裕があります。ベッドルームには大容量のウォークインクローゼットや納戸を設置しているので、収納が足りなくなる心配がありません。
下記にてこの間取りの特徴を5つ紹介します。
特徴①南向きで明るい21帖の広々LDK
この間取りは、家族4〜5人でもゆとりのある暮らしができる広々としたLDKが特徴です。カウンターキッチンからリビングで寛ぐ家族の様子を眺められるように、縦長のLDKに工夫しています。
キッチンで家事をしながらテレビを観たり、家族と会話を楽しんだりすることも可能です。また、南側に窓を設置することで光をたくさん採り入れられるため、明るいLDKとなっています。
特徴②ゆとりのある水回りスペース
水回りのスペースにもゆとりがあります。1.5帖のトイレにはカウンターが付いており、手洗い設備があるので衛生面も安心です。浴室と洗面所はそれぞれ2.5帖あり、一般的な浴室は1〜2帖であることからも、十分な広さを確保していることが分かります。
浴室が2.5帖あれば、親子で並んで座っても体を洗える広さです。また、入浴の介助が必要な高齢者がいる場合は、介護用のシャワー椅子や車イスを入れても狭さを感じることがないでしょう。
特徴③ウォークインクローゼットで充実の収納
この実例の特徴は、充実した収納スペースがあることです。3部屋あるベッドルームのうち2部屋に大容量のウォークインクローゼットを設置しています。LDKやトイレ前の廊下に納戸を設置しているので、用途に分けて収納できます。
例えばトイレ前の納戸は、トイレットペーパーや掃除用品、シャンプー・リンスなどの詰め替えを収納するのに便利です。また、玄関ホールの横にはシューズクローゼットがあるので、家族の靴もしっかり収納できます。
特徴④音が気にならない設計
生活音が気にならない間取りを設計していることも、特徴の一つです。浴室やトイレの隣にベッドルームがありますが、間にウォークインクローゼットを設置することで水が流れる音を軽減できるように工夫しています。
平屋住宅はワンフロアに生活空間とプライベート空間があるため、家族の生活リズムが異なる場合、生活音がストレスになることがあります。特に、睡眠中にトイレや浴室から水が流れる音がすると、大きなストレスになるでしょう。家族が快適に暮らせる平屋住宅を建てるためには、家族の生活リズムを考えて生活音を軽減する工夫を施すことが大切です。
特徴⑤急な来客にも対応できる間取り
家族が3〜4人なら、1部屋をゲストルームとして使用することも可能です。2部屋のベッドルームを主寝室と子ども部屋として使用すれば、空き部屋を作れます。
空き部屋をゲストルームにすれば、遠方からの来客や急な訪問客があっても慌てて部屋を準備する必要がありません。また、両親や祖父母が遊びに来たときにも寝泊りできるので、帰宅時間を気にせずにゆっくり過ごしてもらえます。
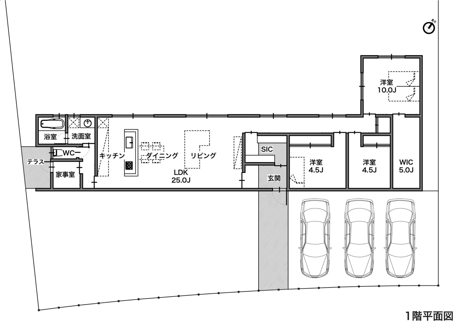
【実例2】プライベートも家族の時間も楽しめる3LDK、L字型の間取り

この実例は、4.5帖のベッドルーム2部屋と10帖のベッドルームがある3LDKで、家族3〜4人が暮らすことを想定して設計された間取りです。玄関を境に、生活空間とプライベート空間が分けられていることも大きな特徴の一つです。
また、水回りがまとまっており、テラスと隣接する家事室も完備しているので、家事をする際にも便利でしょう。玄関側の壁は窓の数を減らしているため、室内のプライバシーを保てます。
特徴①25帖の大空間LDK
25帖の大空間のLDKは、家族3〜4人がのびのびと過ごせる広さです。スペースに余裕があるため、ソファーやテーブル、収納棚など大きめの家具を配置できます。
玄関から入ってリビングを通り抜けて奥に進むと、生活に必要な空間が全てそろっています。また、キッチンからダイニングやリビングを見渡せるため、家事をしていても家族とのコミュニケーションを取りやすいでしょう。
特徴②水回りがまとまった家事動線の良い間取り
キッチンはアイランドキッチンを採用しており、料理をダイニングテーブルに運んだり、食事が済んだ食器をキッチンに片付けたりするのに便利です。キッチンのスペースも十分なゆとりがあるので、大人が2人並んでも作業しやすいでしょう。
キッチンの隣には浴室や洗面室、トイレ、家事室をまとめて配置しています。水回りがまとまっているので、家事動線もスムーズです。家事室から直接テラスに出られるため、晴れの日はテラスで洗濯物を干せます。
特徴③ウォークスルーのSICで2つの動線を確保
玄関には、シューズインクローゼットを配置しています。家族の靴はもちろん、アウトドア用品や非常グッズなども収納できるため、玄関には何も置かず、すっきりとした状態を保てます。
クローゼットはウォークスルータイプのため、玄関から家族用動線と来客用動線に分けることも可能です。家族用動線では、リビングを通り抜けることなくプライベート空間に行けるため、他の家族がリビングで来客対応していても気兼ねなく自分の部屋まで移動できます。
特徴④分かれているプライベートとオープンな空間
玄関を中心に配置することで、家族で集まるオープンな空間と個人の時間やプライバシーを大切にできるプライベート空間を分けています。来客があった場合は来客用動線を利用してもらえば、個室を見られずに済みます。
平屋住宅は、ワンフロアにプライベート空間と生活空間があるため、個人のプライバシーに配慮した間取りにすることが重要です。この家のように、玄関を中央に置いて左右で空間を分けることで、個人のプライバシーを確保できます。
特徴⑤プライバシーに配慮したL字型の平屋
平屋の形はL字型で、道路側は室内のプライバシーを守れるように窓を少なめに配置しています。通行人の目線と同じ高さに窓を配置すると、室内が丸見えになってしまいプライベートな空間を確保できません。
この住宅では、間取りの形をL字型にして主寝室を家の裏側に配し、道路に面する側の部屋は窓の数を減らすことでプライバシーを守っています。また、家全体が目隠しになるため、庭はプライベートな空間を確保できます。
特徴⑥平屋だからできる窓の設計

CASE750 WHITE GATE
平屋は2階建ての家に比べて、耐震構造が強いといわれています。2階建ての家は2階と屋根の重さを1階で支える必要がありますが、平屋は屋根の重さを支えられるので、1階の柱や壁への負担を減らせます。
耐震構造が高い平屋は窓の数を増やしたり、大開口を取ったりしても構造的に安心です。こちらの実例では、庭側の壁にたくさんの窓を配置しており、採光や通風を確保できます。

おしゃれでかっこいい平屋の建築実例
ここではフリーダムアーキテクツのおしゃれでかっこいい平屋の建築実例を紹介します。
自然の残る住宅地に建てられた平屋住宅

CASE649 光の通り道
落ち着いたグレーの外壁と、直線的なフォルムが印象的な平屋住宅。外からの視線を遮りながらも、内側には光が差し込む開放的な空間が広がります。玄関まわりを奥まった配置にすることで、プライバシーを守りつつ静かな佇まいを演出。シンプルでありながら上質さを感じさせる、都市部にも馴染むデザインです。
奥へ長く伸びた敷地に計画した平屋住宅

CASE570 REF
片流れ屋根とグレーの外壁がスタイリッシュな印象を与える平屋住宅。玄関まわりにあしらった木目のアクセントが、外観にやさしい温もりを添えています。シンプルなフォルムながら、深い軒や格子窓が機能性とデザイン性を両立。現代的で洗練された佇まいの中に、落ち着きと上質さを感じる住まいです。
鮮やかな群青色(Oltremare)外観の平屋住宅

CASE447 CASA Oltremare
ネイビーのガルバリウム外壁が印象的な、シャープでモダンな平屋住宅。片流れ屋根のラインが美しく、街並みに個性を与えます。木のルーバーと赤いポストがアクセントとなり、無機質になりすぎない温もりをプラス。プライバシーを守りながらもデザイン性の高い、都会的で洗練された外観です。

35坪の平屋住宅の費用目安

35坪の平屋住宅を建てる場合、どのくらいの費用がかかるのでしょうか。ここからは、35坪の平屋住宅を建てる際の費用目安を紹介します。
坪単価が40〜60万円とした場合、35坪の平屋住宅の建築費の目安は1,400万円〜2,100万円です。ただし、平屋住宅を建てる土地の条件によっては、住宅以外の工事にかかる附帯工事費や諸費用なども発生する場合があります。
附帯工事費とは、解体工事や地盤を改良するための工事を依頼した場合にかかる費用です。諸費用は、住宅ローンを利用する際に発生する手数料などが挙げられます。この他に、間取りの形や建材の種類によっても発生する費用が変わります。
平屋住宅の費用を確認する際は複数の工務店やハウスメーカーに見積もりを依頼し、費用総額の目安を押さえておきましょう。その上で、依頼する工務店やハウスメーカーに見積もりの詳細を確認しましょう。

35坪の平屋住宅で叶えられること
35坪の平屋住宅を建てると、さまざまなことを叶えられます。主なメリットは以下のとおりです。
・収納スペースを十分に確保できる
・家族でもゆとりがある
・バリアフリーに向いている
さっそくメリットを確認してみましょう。
収納スペースを十分に確保できる
35坪の平屋住宅なら家族の人数に合わせて部屋数を確保しつつ、生活に必要なものを収納するためのスペースも作れます。また、各部屋に収納スペースを確保できる上に、水回りの収納も充実させられます。
ウォークインクローゼットやシューズインクローゼットの設計も可能なため、家族分の服や靴などを収納するのに便利です。季節家電や来客用の布団などを収納するスペースを確保したい場合は、屋根裏スペースを有効活用してロフトやスキップフロアなどを取り入れると良いでしょう。
家族でもゆとりがある
35坪の平屋住宅は大空間のLDKや部屋数を確保できるため、家族4人でもゆとりがある暮らしができます。2階建ては階段を作ることでデッドスペースが生まれますが、一方平屋は階段を作る必要がないので、その分のスペースをLDKや個室に充てることができます。35坪は建築面積として一般的な広さですが、2階建てよりも広く感じられるでしょう。
平屋に3〜4部屋の個室を作り、間取りを工夫すれば、二世帯の同居も可能です。
バリアフリーに向いている
バリアフリーとは、各部屋の床と廊下の段差をなくした設計のことです。平屋には階段がないので、高齢の両親が遊びに来たときや将来同居する場合でも、階段を登らずに1階だけで生活できて安心です。小さな子どもも、段差で転んだり怪我をする心配がいりません。
たとえ最初はステップフロア等取り入れバリアフリー設計にしなかったとしても、将来的にリフォームすることもできます。二階建てと比較すると、大規模なリフォーム工事を必要としないでしょう。

35坪の平屋住宅を建てるデメリットと対策方法
35坪の平屋住宅を建てることで、次のようなデメリットがあります。
・広い土地が必要になる
・生活動線が悪くなることもある
・日当たりや風通しが悪くなる
ここからは、それぞれのデメリットと対策について解説します。
広い土地が必要になる
平屋は、2階建てよりも広い土地が必要です。2階建ては生活空間とプライベート空間を1階と2階に分けられますが、平屋はワンフロアに全ての空間を確保する必要があるため、横に広い土地を確保しなければなりません。
一般的な家の建ぺい率60%で考えた場合、35坪÷60%=58.3坪と計算でき、35坪の平屋住宅を建てるためには約58坪の土地を確保する必要があります。外構でテラスを作ったり、ガーデニングや子どもの遊び場を設けて庭を充実させたりしたい場合は、さらに広い土地が必要です。
土地が広くなるほど購入費用も増え、収めなければならない固定資産税も高くなります。土地と平屋住宅の両方を購入する予定の方は、土地情報を保有する工務店やハウスメーカーに相談しながら、平屋に合わせた土地を検討することをおすすめします。
生活動線が悪くなることも
平屋を建てた場合のデメリットは、生活動線が悪くなりやすいことです。
土地の形状によって異なりますが、横に長い間取りは玄関から各部屋へ行く際に端から端まで移動する必要があるため、生活動線が悪くなります。また、水回りが離れた場所にある場合や、洗濯置き場から物干場が遠くにある場合は家事動線が長くなる恐れがあります。
間取りを検討する際は、空間を分けるゾーニング計画をしっかりと行い、生活動線や家事動線に合わせた空間分けをしましょう。例えば、L字型やI字型、コの字型は行き止まりができるため、生活動線や家事動線が長くなります。その一方で、ロの字型の間取りは行き止まりのない動線を作れます。
日当たりや風通しが悪くなる
平屋は窓を配置する場所によって、日当たりや風通しが悪くなる可能性があります。
どの位置に窓をつければ採光や風通しが良くなるのかを考えずに窓を配置すると、昼間でも日当たりが悪く、風の通り道がない部屋になりかねません。特に、室内のプライバシーを確保するために道路に面する側の窓の数を少なくする場合は、採光や風通しに配慮して配置することをおすすめします。
他には、断熱性が低いと夏は蒸し暑く、冬は寒い家になってしまいます。断熱性を高めるためには、断熱材の種類はもちろん窓のサッシとガラスの断熱性能を確認した上で選ぶことが大切です。例えば、2枚のガラスを合わせた複層ガラスや、外気の温度が伝わりにくい樹脂サッシなどを採用すると、家の断熱性能が高まります。
防犯面に不安がある
平屋は、間取りによっては防犯性が低くなる恐れがあります。2階建てに比べて窓が低い場所にあるため、通行人と視線が合ってプライバシーを守れなかったり、空き巣被害を受けたりするリスクが高まります。
通行人の視線はカーテンやブラインドなどで防げますが、防犯性は平屋の設計段階で工夫しなければ高められません。防犯性が高い平屋住宅にするためには、格子窓を設置したり人が入れない大きさの窓を選んだりするなど対策が必要です。

広い平屋住宅で快適に暮らそう!

35坪の平屋住宅は2階建てに比べて、間取りに工夫を凝らす必要があります。家づくりが初めての場合は、窓の種類の選び方や配置場所などに悩む方も多いため、専門家に相談することをおすすめします。
年間400棟の注文住宅を手がけるフリーダムアーキテクツは、関東・関西・東海・九州を中心に展開している設計事務所です。お客様のご要望を最優先にした家づくりをサポートしており、土地探しから設計までをまとめてご提案しています。35坪の平屋住宅の土地探しや間取りに関するお悩みがある方は、気軽にご相談ください。
◆◆「フリーダムアーキテクツが手掛けたデザイン住宅の作品集を今なら無料でお届けします。」◆◆
35坪の平屋についてのよくある質問
35坪の平屋についてよくある質問に、フリーダムアーキテクツが回答します。
35坪の平屋はどのくらいの広さですか?
延床面積35坪(約115㎡)の平屋は、家族4人がゆったり暮らせる広さです。LDKを広く確保しつつ、個室3〜4部屋や収納スペースも十分に設けることができます。
35坪の平屋を建てる費用の目安は?
建築費の相場は約2,500万円〜3,500万円程度が目安です。設備グレードやデザイン性、外構工事の内容によって総額は変動しますので、詳しくはフリーダムアーキテクツにお問合せください。
35坪の平屋の間取りで人気のスタイルは?
中庭を設けたコの字・ロの字型の間取りや、家事動線を意識した回遊型プランが人気です。リビング中心に家族が自然と集まる設計も好まれています。
平屋にするメリットは?
階段の上り下りがなく、ワンフロアで生活が完結する点が大きな魅力です。家事動線が短く、将来的にもバリアフリーに対応しやすいのが特徴です。
無料住宅作品集の取り寄せ
平屋の実例を含む、約40の実例写真・間取り・価格をご紹介。資料請求いただいた皆様に、無料でお届けします。

住宅作品集を取り寄せる
注文住宅・デザイナーズハウス
の建築実例を探す
全国で年間約400棟の注文住宅を
設計しているからこそ、事例も豊富
この記事を書いた人

フリーダムアーキテクツ
設計チーム
1995年創業、累計4,000棟以上の住宅設計実績と数々のグッドデザイン賞受賞歴。土地探しから設計・施工までワンストップで対応し、お客様の暮らしに合わせた理想の住まいを実現します。フリーダムマガジンでは、豊富な実績をもとにした後悔しない家づくりのポイントをお届けします。












