
購入・相続などで土地を確保し、一軒家を建てる場合はさまざまなことを考えなくてはいけません。そもそも、自分たちの理想の家を建てるにはどのぐらいの広さが必要か、間取りはどうすべきかと頭を悩ませることがたくさんあるはずです。
この記事はこんな人におすすめ
- 一軒家を建てたいけど、坪数ってどのぐらい?
- 広さを表す建坪や延べ坪の違いは何?
- 住みやすく素敵な家にしたいけど、間取りをどうしたらいいか悩む…
この記事でわかること
- 建坪と延べ坪の違い
- 一軒家の建坪の平均や建築費の平均値
- 35~40坪の間取り例
無料住宅作品集の取り寄せ
約40の実例写真・間取り・価格をご紹介。資料請求いただいた皆様に、無料でお届けします。

住宅作品集を取り寄せる
目次
建坪とは?建坪と延べ坪の違いを理解しよう

建坪(建築面積)とは、建築物の外壁、または柱の中心線で囲ったところの「水平投影面積」(すいへいとうえいめんせき)を指します。1階の床面積とほぼ等しいことが多いため、たとえば建坪が20坪であれば、1階の床面積が約20坪と考えて構いません。
一方、延べ坪(延床面積)とは、各階の床面積を合計したものを指します。たとえば、建坪20坪かつ2階建ての家であれば、延床面積は約40坪になると考えて構いません。
家づくりで「坪数」というと一般的には「延床面積=住居全体の広さ」を基準に考えることが多いため、まずはその前提で理解しましょう。

一軒家の建坪の平均は?

一軒家の建坪の平均は、約20坪前後とされています。前述したように、建坪は1階の床面積とほぼ等しいことが多いため、2階建てであれば35~40坪の家になるという意味です。
ただし、実際の平均値は地域によってもややばらつきがあります。地価が高い都心部であれば、建坪が20坪を下回る狭小住宅も珍しくありません。一方、郊外だとある程度広い土地を確保できることから、建坪が25~30坪の比較的大きな一戸建ても散見されます。

注文住宅の平均坪数と建築費について

CASE606 CEDAR BOX
全国には星の数ほどの住宅が建っており、その坪数や建築費用はまさに千差万別です。
世帯人数や間取り、建てられた地域などによっても変わるため、一概に「この坪数がベスト!」とは断言できません。本来は自分の好みや家族構成などによって、自由に決めてよいものです。
ただ、居住する人に対して明らかに広すぎたり狭すぎたりすると、せっかくのマイホームを不便に感じてしまいますよね。そうならないよう、住宅の坪数は入念に検討することが大切です。
住宅の坪数で悩んだ場合は、全国的な平均坪数をチェックしてみましょう。平均坪数は、多くの人がその坪数で住宅を建てていることを意味します。つまり、その坪数であれば十分快適に生活できる可能性が高いといえるでしょう。住宅金融支援機構「2024年度フラット35利用者調査」では、2024年度に建てられた注文住宅の平均床面積と平均建築費が報告されています。
これによると、全国平均は床面積が約118.5平方メートル、建築費が約3,932.1万円という結果になっています。地域ごとの結果も報告されており、首都圏では約108.8平方メートルで約3505万円、近畿圏では約111.2平方メートルで約3366万円、東海圏では約112.4平方メートルで約3615万円、そのほかの地域は約112.4平方メートルで約3549万円が平均となっています。なお、この調査では建築費は住宅にかかる費用のみとなっており、土地代は含まれていません。
この結果からもわかるように、住宅の平均坪数と建築費は地域によってばらつきがあります。ただ、平均的にみると約130平方メートル、つまり約40坪の広さの住宅を建てる場合で4,000万円台中盤の費用がかかると推測できます。坪数を決めるときには、単純な広さだけでなく建築費にも気を配っておきましょう。

一般的な坪数は35~40坪程度

住宅の坪数として一般的なのは、35~40坪ほどの広さです。国土交通省が取りまとめた「住生活基本計画(全国計画)における誘導居住面積水準及び最低居住面積水準」では、世帯人数ごとに戸建て住宅で目標にしたい面積が発表されています。
これによると、住宅内で快適に生活するために必要な広さは3人家族で100平方メートル、4人家族で125平方メートルです。坪数にすると、3人家族で約30坪、4人家族で約38坪という計算になります。一般的な住宅の35~40坪という面積は、この点からみても十分な広さを備えているといえるでしょう。
ただ、ひと口に坪数といっても、「延床面積」と「敷地面積」のどちらでみるかによって意味合いが変わってきます。延床面積は法規上室内とみなされる床面積の広さの合計であり、階数ごとの床面積をすべて合算します。
一方、敷地面積は住宅を建てる土地そのものの大きさです。一見するとまったく異なる面積のように見えますが、実際には延床面積でも敷地面積でも、40坪程度までの規模の注文住宅であれば家の大きさが大きく変わる心配はありません。
たとえば、40坪の土地に住宅を建てる場合、建ぺい率が50%だと床面積20坪の住宅になります。2階建て住宅だと、1階部分で20坪、2階部分の20坪を合わせて40坪の延床面積です。
すると「延床面積=敷地面積」となり、どちらを坪数と表現してもほぼ同じ面積になります。ただし、40坪以上の規模になると土地の広さや階数によっては面積に違いが出るケースもあるため、念のために事前にしっかり確認しておきましょう。

35坪と40坪の間取り比較

前述のとおり、一般的な住宅の広さは35~40坪ですが、「35坪ってかなり狭いのでは?」と思う人もいるでしょう。
たしかに、35坪というとやや狭いイメージを持ってしまいますが、それでも快適に生活できないわけではありません。工夫次第で、なんと4LDKの間取りを実現することも可能なのです。4LDKといえば、リビングにダイニング、キッチンに加えてさらに4つの居室を備えた間取りです。これだけの空間があれば、35坪でも十分に家族で住めるでしょう。
ただし、狭い坪数では生活する時間の長い居室をできるだけ広く取る傾向があるため、リビングやキッチン、ランドリースペースや寝室などが狭くなる可能性もあります。
圧迫感が嫌だったり、ゆったりとした広さが欲しかったりする場合は、無理をせず3LDKの間取りを計画したほうが現実的です。
40坪の住宅の場合、35坪と5坪しか変わりませんが、帖数で見ると約10帖の違いに相当します。10帖というと1部屋分を補うほどの広さになるため、4LDKの間取りでも無理なく実現できます。
どうしても4LDKの間取りにしたい場合は、40坪の住宅を建てたほうがよいでしょう。
もちろん、4LDKではなく3LDKや2LDKにすることも可能です。居室数を少なくすると1部屋あたりのスペースがかなり広くなるため、世帯人数が少ない場合や開放的な住宅にしたい場合には最適です。

35坪〜40坪の間取り例
35坪~40坪の土地に一戸建てを建てる場合の間取りの実例をいくつか紹介します。
【約36坪】自然と家族が集まる、リビング中心の平屋の間取り

家の中で、家族が集う場所としてリビングを中心に据えた平屋の間取りを紹介します。約23帖と広いリビングを家の中心にしつらえ、周辺にバスルームなどの水回りやウォークインクローゼットなどの収納スペースを配置しました。
また、3つある個室のうち1つは他の2つの部屋とは離れた位置に配置することで、プライバシーを確保できるようになっています。二世帯住宅にする場合にもおすすめの平屋の間取りです。
この間取りの3Dモデルを見る
【約40坪】2つのテラスから光が注ぐ、開放感あふれる間取り


家にふんだんに光を取り入れるためには、テラスを作るのは効果的です。この間取りでは、1階から2階に吹き抜けるテラスを2つ設置。中でもLDKに面したテラスは12帖と広く、晴れた日はそこでくつろぐこともできます。
また、LDKに面して居ない小さいほうのテラスの周囲には和室を配置。この和室も家族のくつろぎの場として使える、ゆったりとした空間に仕上がっています。
この間取りの3Dモデルを見る
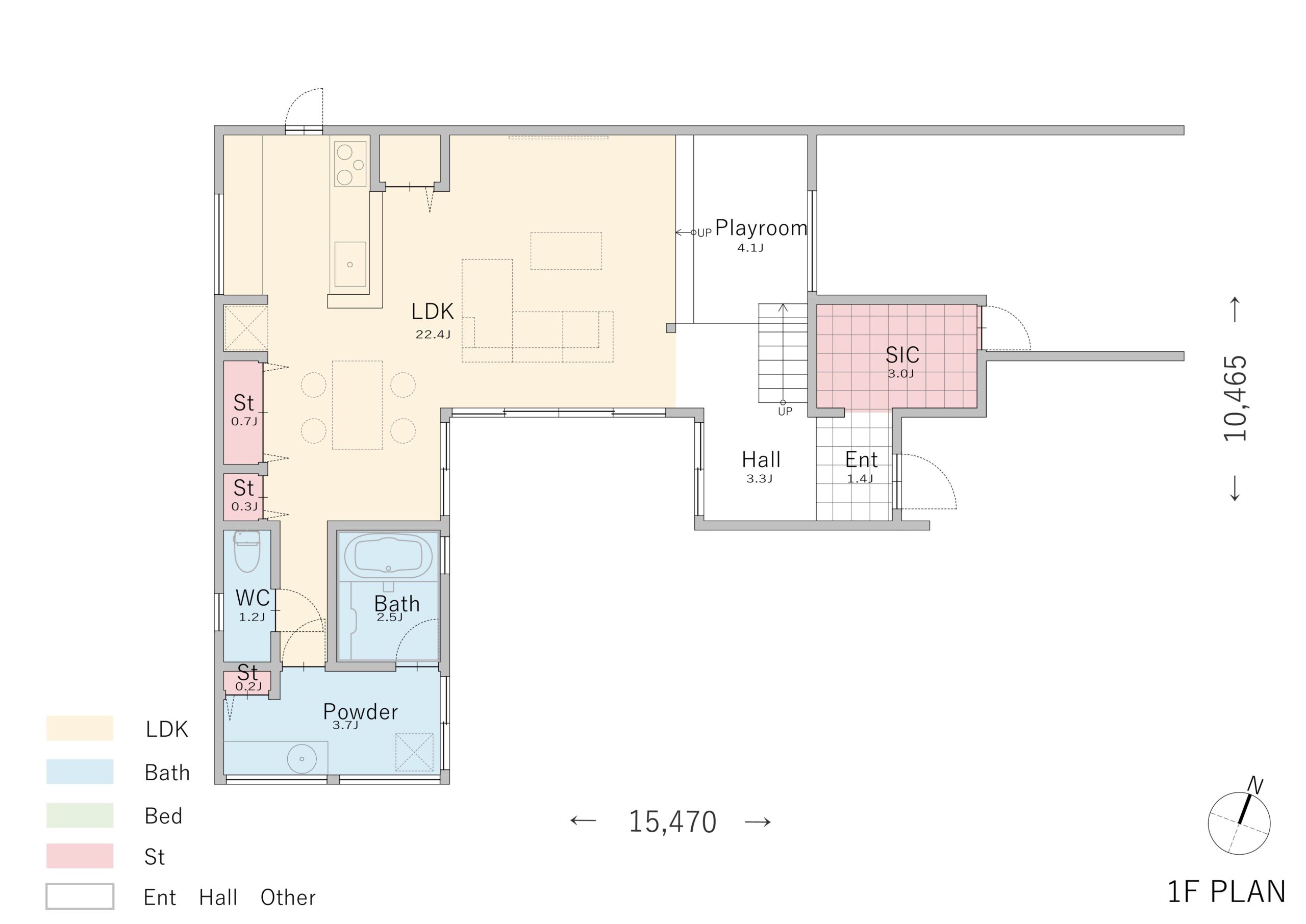
【約38坪】生活空間と寝室を分けて、心地よく暮らせる間取り


心地よく暮らすためには、生活空間と寝室を分けるなど、物理的に離す工夫も重要です。この実例では、1階にLDKやバスルーム、洗面所などの生活空間を集約。
各々の寝室や勉強部屋は2階に集約させることで、生活空間を気にすることなく心地よく過ごせるように工夫しました。また、寝室は4.5帖のものを2つ、7.0帖のものを1つ配置。子ども部屋と夫婦の寝室を確保したいという場合に参考になる実例です。
この間取りの3Dモデルを見る

おしゃれな一軒家の建築実例
ここで、これまでフリーダムアーキテクツデザインが手掛けてきたおしゃれな一軒家の建築実例をいくつか紹介します。
夫婦2人が楽しむ、中庭と光が織りなす表情豊かな住まい

CASE761 光と明かりの交錯
色も形も異なる3つの異素材を組み合わせた個性的な外見がインパクトを与える一戸建てです。2階にあるLDKは吹き抜けになった中庭に面しているため、光がふんだんに注ぎ込み、開放的な空間に仕上がっています。
また、壁面収納やワークスペースの窓など、中庭以外にも開放的な印象を作り出す工夫を盛り込みました。さらに、内装は木目と白を基調にまとめたことで、おしゃれかつ温かみのある空間に仕上がっています。
3人家族の暮らしを広げる、内と外をつなぐエンガワの家

CASE757 トキノエンガワ
「トキノエンガワ」という作品名のとおり、内部区間と外部空間をつなぐためにエンガワ=縁側を作った一戸建ての実例を紹介します。外観はシンプルかつ開口部が少ないため、一見閉鎖的に感じるかもしれません。
しかし、緑豊かな芝生の中庭に面した縁側とそこに連なるLDKを大開口窓で区切ることで、あたかも一体化した開放感のある空間に感じられる仕上がりになりました。また、スケルトン階段や、二方向に設けられた寝室の窓など、さらなる開放感を演出する工夫も随所に込められています。
4人家族の暮らしを彩る、美術館のような螺旋階段のある住まい

CASE780 Isn’t it nice?
美術館や博物館のような螺旋階段が目を引く一戸建ての実例を紹介します。玄関を入るとすぐに目に入るのは、スケルトン仕様になった螺旋階段です。吹き抜けと組み合わせることで光が差し込むことから開放感が生まれ、空間が広く感じられます。家全体を縦に広がる空間設計にすることで、さらに開放感が生まれてました。
また、各部屋は生活動線に沿って配置されていることから、家事や身支度が効率化されているのも大きなポイントです。

家族の暮らしに合った広さを選ぼう!

新しい住宅の広さや間取りを考えていると、夢が膨らんでワクワクするという人も多いですよね。しかし、勢いに任せてとにかく広い家にしたり、建築費を節約しようと狭い家にしたりするのは危険です。実際に住んでみると思わぬ不満を感じるケースもあるため、「家族の暮らしに合った広さ」という点を冷静に考えることが大切です。
35~40坪が平均的な住宅の広さではありますが、必ずこの範囲で住宅を建てなければならないわけではありません。この広さはあくまでも目安であり、その空間で生活する人々が快適に暮らせるかどうかが一番重要なポイントになります。もし、「狭い方が落ち着くから35坪も必要ない」「将来的に家族を増やしたいから40坪では物足りない」などという場合は、自分や家族が必要とする広さを注文住宅で実現しましょう。
注文住宅なら、自分の好みにあわせてさまざまな間取りや広さにすることができます。便利な動線にしたり、個性的な住宅にしたりするのも自由自在なので、家づくりの幅がぐっと広がるでしょう。どれくらいの広さの住宅を建てられるのかは、建築する地域や建築費の予算などによっても異なります。特に、地方に住むか都市部に住むかで大きく変わってくるでしょう。
まずは住みたい地域と予算を決め、その中で家族の暮らしに必要な広さを考えていくのがポイントです。入居後の生活を具体的にイメージしながら計画的に家づくりを進めていけば、自然と必要な広さもわかってくるでしょう。
フリーダムアーキテクツには「家づくり」に関する各種相談窓口がございます。家づくりを検討されている方、土地をお探しの方、新築・中古問わず住宅の購入を検討されている方、すでにフリーダムアーキテクツとご契約されている方など、どのようなご相談にも無料でお答えいたしますので、お気軽にご相談ください。
◆◆「フリーダムアーキテクツが手掛けたデザイン住宅の作品集を今なら無料でお届けします。」◆◆

建坪の平均に関するよくある質問

建坪の平均に関連して質問が多く寄せられるトピックについて「よくある質問」形式で解説します。
建坪の平均を知るメリットは?
建坪の平均を知るメリットとして、自分の土地や予算で建てられる家の規模感を把握できることが挙げられます。自分や家族にとって理想の家を建てたくても、ほとんどの人には用意できる土地や予算に限りがあるのが実情です。
しかし、建坪の平均を知っておけばどのような家が建てられるかが大体わかるようになるので、設計者や建築会社との打ち合わせもスムーズに進めることが可能です。狭すぎず広すぎない、家族に合った最適な家づくりを考えるうえで重要な情報となるため、しっかりと把握しておきましょう。
建坪が平均より狭い場合でも快適に暮らせる?
結論から伝えると、建坪が平均より狭い場合でも工夫次第で快適に暮らせる家を建てることは十分に可能です。たとえば、壁面収納を作ったり、間仕切りを取り払えるようにしたりなど収納や間取りを工夫すればそれだけで空間は広く使えます。
また、吹き抜けや中庭を使い、光を取り入れることで狭さを感じにくくするのも重要です。さらに、内装にテーマを設けて統一感を持たせるのも、広く感じさせるうえで欠かせない工夫となります。結局は家族構成やライフスタイル、希望にもよりますが、それぞれに合った間取りを検討し、上手にプランニングしましょう。
延床面積40坪の家は広い?
何をもって「広い」とするかは人それぞれな部分もありますが、仮に「4人家族でも快適に暮らせるだけの面積」を指すのであれば、一般的には十分に広いと言えます。たとえば、4LDKの家を建てる場合、40坪以上あればゆとりある間取りが確保できるうえに、将来の生活変化にも対応しやすくなる仕上がりにすることが可能です。
もちろん、35坪前後あれば4LDKの家を建てること自体は工夫によりできますが、40坪以上の場合と比べると居室やLDKの広さはややコンパクトになります。
無料住宅作品集の取り寄せ
約40の実例写真・間取り・価格をご紹介。資料請求いただいた皆様に、無料でお届けします。

住宅作品集を取り寄せる
注文住宅・デザイナーズハウス
の建築実例を探す
全国で年間約400棟の注文住宅を
設計しているからこそ、事例も豊富
 
				この記事を書いた人

フリーダムアーキテクツ
設計チーム
1995年創業、累計4,000棟以上の住宅設計実績と数々のグッドデザイン賞受賞歴。土地探しから設計・施工までワンストップで対応し、お客様の暮らしに合わせた理想の住まいを実現します。フリーダムマガジンでは、豊富な実績をもとにした後悔しない家づくりのポイントをお届けします。











