
CASE682 Casa de Resort
車好きの憧れとも言えるガレージハウスは、コンパクトな土地でも使い勝手の良い住まいを実現しやすく人気があります。ガレージハウスを建てる際には、車の出し入れや動線、居住空間とのバランスを考慮してレイアウトを考えることが重要です。
この記事はこんな人におすすめ
- 3台用ガレージハウスに必要な広さや費用は?
- 車を3台収容できるガレージハウスでは、音や排気ガスの対策はどうするの?
- ガレージハウスのおしゃれな間取りを参考にしたい
この記事でわかること
- 3台の車を駐車できるガレージハウスのメリットとデメリット
- 3台分のビルトインガレージとの費用・広さ・間取りに関する違い
- 3台用ガレージハウスの間取り図やおしゃれな建築実例
無料住宅作品集の取り寄せ
ガレージハウスの実例を含む、約40の実例写真・間取り・価格をご紹介。資料請求いただいた皆様に、無料でお届けします。

住宅作品集を取り寄せる
目次
3台分のガレージハウスを作るメリット

建物に車庫を組み込んだ形のガレージハウスは、駐車スペースが外部から見えないため、防犯性が高い点や天候の影響を受けにくい点、多目的なスペースの活用といったメリットが期待できます。ここでは、3台分のガレージハウスのメリットを詳しく紹介します。
愛車を傷や汚れから守れる
ガレージハウスでは、愛車を傷や汚れから守ることができます。駐車スペースが外の場合、屋根があっても雨風や紫外線を完全に避けることは難しく、汚れや傷みの原因となります。また、都市部などで屋外に駐車しておくと、歩行者のカバンや傘の先、自転車などが当たって傷がついてしまうことも考えられます。
建物の一部としてガレージが組み込まれているガレージハウスなら、横殴りの強い雨風から愛車をしっかり保護することが可能です。加えて、シャッター付きのガレージなら、傷や汚れだけでなく防犯や盗難といったリスクも避けられるでしょう。
雨に濡れずに車の乗り降りができる
ガレージハウスは、駐車スペースが建物内に組み込まれているため、雨に当たることなく車の乗り降りができます。ガレージから直接玄関にアクセスできる間取りにすれば、雨の日でも傘をささずに移動でき、濡れる心配がありません。
また、住居スペースと車との距離が物理的に近く、屋外の駐車場よりも移動が楽になります。小さな子どもや高齢者がいる場合にも負担が軽減されるでしょう。シャッターを下ろせば、外部からの侵入を心配することなく、車の扉を開けた状態で荷物を移動できる点もメリットです。
多目的スペースに使える
3台分のガレージは広さがあるため、趣味部屋や子どもの遊び場など、駐車スペース以外にも多目的に活用できます。例えば、DIY用の作業スペース、トレーニングエリアなど工夫次第でさまざまな使い方が可能です。
また、シャッターを閉めればプライバシー空間を確立でき、バーベキューをしたり、子どもやペットと遊んだりと、家族団らんのひとときを過ごせます。外からの視線を気にせずに車いじりに没頭でき、休日の車のメンテナンスや車関係のグッズ収納にもぴったりでしょう。

3台分のガレージハウスを作るデメリット

ガレージハウスには多くの魅力がありますが、デメリットもあるため、両方を知った上で検討することが大切です。ここでは、3台用のガレージハウスで考えられるデメリットについて解説します。
建築費用が高くなる
ガレージハウスは、一般的な戸建てよりも1階部分の間口が広く、耐久性や耐震性を補強するために割高な建材や施工方法を採用する必要があります。また、高い施工技術が必要で、設計費を含めて建築費が割高になります。
シャッターの有無などガレージハウスの仕様によっても異なりますが、目安としては6坪程度で約250万〜400万円ほど追加でかかるでしょう。カーポートが1台約50万円から設置できることを考えると、コストが高額になる点はデメリットと言えます。
間取りに制限がでる
ガレージハウスの難しい点は、居住スペースの間取りに影響が及ぶことです。3台分のガレージを確保する場合、1階の大部分がガレージとなるため、階段や廊下、玄関の配置に工夫が必要になります。
十分な広さの土地があり、平屋を建てるケースなどは、工夫次第で理想とする間取りを実現できるでしょう。しかし、2階建てや3階建ての場合は、耐久性や耐震性を確保するために柱や壁を厚くする必要があり、間取りが制限される可能性があります。
シャッター音やエンジン音が室内に響く
ガレージハウスは、建物内で車のエンジンをかけるため、エンジン音が室内に響きやすくなります。また、シャッター付きの場合、開け閉めの音が隣家にも聞こえて、迷惑がかかる可能性があります。
防音対策を行うとともに、天井に沿って扉を収納するオーバースライダーなど音の静かなタイプのシャッターを選ぶ、といった工夫が必要です。加えて、居住スペースに排気ガスが入ってこないよう、換気扇を設置することをおすすめします。冬場に暖機運転したい場合は必ずシャッターを開けることを徹底しましょう。

2台分のビルトインガレージとの違い

CASE781 天地を紡ぐ家
同じビルトインガレージでも、2台用と3台用ではどのような違いがあるのでしょうか。ここでは、費用や広さ、間取りに関する違いを解説します。
費用の違い
ガレージハウスのガレージ部分は、1坪あたり60万〜80万円程度が目安です。3台分のガレージの場合、広さは15〜18坪程度が必要で、18坪で計算すると1,080万~1,440万円となります。一方、2台用は約9坪程度で済むため、540万〜720万円です。
そのため、3台用ガレージは2台用より500万〜700万円ほど高くなるのが一般的です。1台分の延床面積が広くなる分、基礎や構造体のコスト、シャッターの台数、照明・換気設備などの費用も増加します。
また、ビルトインガレージは換気設備や防音仕様のグレードアップに加え、大開口の耐震対策も必要なため、建築コストが上がりやすい傾向があります。
加えて、ガレージの使い方も費用差に影響する点に注意が必要です。単なる駐車スペースとするか、作業や展示のスペース、趣味の場として仕上げるかで内装仕上げや設備費が大きく異なります。
必要な広さの違い
ガレージハウスでは、1台あたりに必要なスペースは「幅約2.5m×長さ約6m(約4.5坪)」が目安です。2台用では約9坪(約30㎡)前後であるのに対し、3台用では最低でも約15坪(約50㎡)、ゆとりをもたせたい場合は20坪(約66㎡)程度の広さが理想とされます。
また、3台用のガレージは、敷地の間口が広くないと設計が難しくなります。また、車の出し入れを考慮すると、道路への接道条件や勾配、回転スペースの確保などによって配置計画が制限されやすいため、土地の選び方にも注意が必要です。
設計・間取りの違い
2台用のガレージはLDKや玄関横に配置できるケースが多いのに対し、3台用ではより広いガレージスペースが必要なため、建物全体がガレージを中心として設計される傾向があります。
1階の大部分をガレージとしLDKを2階に上げるプランでは、採光や通風、眺望を活かした「2階リビング」のレイアウトがしやすい点がメリットです。柱の位置や構造にも工夫が必要で、3台分のガレージを無柱で確保するためには、鉄骨造や、柱と梁を一体化させたラーメン構造を採用するケースも見られます。
さらに、シャッターの数や開閉方式も設計に影響する要因です。1台ずつの独立シャッターにするか、3台一体の大型シャッターにするかで、外観デザインが大きく変わるため、慎重に検討する必要があります。

3台駐車できるガレージハウスを作るには?

車を3台駐車できるガレージハウスを作るために、建物や土地はどのくらいの広さが必要なのでしょうか。詳しく見ていきましょう。
3台分のガレージに必要な広さ
3台分のガレージスペースに必要な広さを確認しましょう。普通乗用車1台を停めるのに必要な大きさは、幅約2.5m×長さ約6mの約4.5坪が目安です。3台の車を収容するガレージは、最低でも15坪ほどを要します。
ただ、車種によっても必要な広さは変わり、車幅や全長が大きい車種や輸入車の場合は15坪以上が必要になります。よって、20坪ほどを確保できれば、ゆとりを持てるでしょう。
3台分のガレージを持つ建物の大きさ
続いて、建物の大きさを見ていきます。住宅支援機構の『2024年度フラット35利用者調査』によると、注文住宅における住宅面積の平均は118.5㎡、建売住宅で100.7㎡です。1坪は約3.31㎡のため、坪数に換算すると30坪〜36坪となります。
30坪の住宅は、2階建であれば3LDK〜4LDKの間取りが一般的です。夫婦と子ども2人の家族構成だと、ある程度余裕を持って暮らせるでしょう。3台分のガレージスペースは前述の通り15坪程度であり、合計するとガレージハウスの建物は45坪以上が必要です。
出典:2024年度フラット35利用者調査|住宅支援機構
3台分のガレージハウスを建てられる土地の大きさ
最後に、ガレージハウスを建てるために必要な土地の広さを確認します。土地の大きさは、建ぺい率と容積率に関係しています。
延床面積45坪のガレージハウスを建てる場合に必要な土地の面積を、一般的な住居専用地域(建ぺい率60%・容積率200%)の条件で計算しました。
| 階数 | 延べ床面積(内訳) | 必要な土地の面積 |
|---|---|---|
| 平屋(1階建て) | 40坪 | 75坪 |
| 2階建て | 1階25坪、2階20坪 | 41.6坪 |
| 3階建て | 1階20坪、2階15坪、3階10坪 | 33.3坪 |
狭小地であっても、3階建てにすれば3台分のガレージスペースとして約15坪を確保できます。ただし、玄関や階段が狭くなる可能性があるため注意が必要です。

3台駐車できるガレージハウスを建てるときの注意点

CASE728 My Style Home
3台分のガレージハウスを建てる際の注意点を解説します。
2台+1台の駐車スペースになることがある
土地の広さや形状によっては、3台分の駐車スペースを取れない場合もあります。また、3台並列で車を停めたい場合、開口部を大きく取る必要があるため、建築費用が高額になる可能性が出てきます。
ガレージ内に柱を設けて、2台と1台のガレージに分けることにより、耐震性や耐久性をある程度維持できる場合があります。
ガレージの大きさにゆとりを持たせる
設計の段階で、ガレージにゆとりを持たせておくことが重要です。ガレージは、一度建ててしまうと、簡単に大きさを変えることはできません。将来どのような車を何台所有するのか、車の買い替えや台数の増減も考えた上でガレージサイズを検討することが大切です。
スペースに余裕があれば、車種やドアタイプの異なる車でも、不便が生じにくいでしょう。特に、家族が増えた後に大きい車種へ買い替える可能性がある場合は、十分なゆとりを確保しておく必要があります。
観賞用か駐車用か用途によって間取りを考える
ガレージが観賞用なのか、駐車用なのかによっても適した間取りが変わります。車好きな人の中には、家の中からいつでも愛車を眺めていたい、という人もいるでしょう。室内から愛車を観賞したい場合は、駐車の向きも考えてガレージを設計する必要があります。
一方、駐車スペースとしてのガレージであれば、出入庫のしやすさを重視すると良いでしょう。玄関付近にガレージを設けることで、家への出入りもスムーズになります。
換気・騒音対策をする
ガレージハウスの場合、24時間365日好きなタイミングで愛車のメンテナンスが可能です。ただ、建物内に車の出し入れやエンジン、メンテナンスなどの音が響きやすいため配慮が必要です。
また、シャッター音が近隣の迷惑になる場合もあるため、開閉時に音が少ないシャッターを選ぶと良いでしょう。
加えて、車から出る排気ガスもガレージ内に溜まりやすいため、換気対策は必須です。ガレージ内には換気扇を設置するとともに、締め切ったガレージで暖機運転をしないよう徹底しましょう。

3台駐車できるガレージハウスの間取り3選
ここからは、3台分のガレージハウスの間取り例を紹介します。さまざまなタイプの建物や土地でのガレージハウスの間取りを取り上げていますので、ぜひ参考にしてください。
2階に広々としたLDKを設けたガレージハウス


1階はガレージスペースを設置し、2階にLDKや水回りをまとめたガレージハウスです。日中過ごす部屋を2階に配置し、明るく広々とした居住スペースを確保しています。
また、3台分のガレージスペースは柱を設置して2台と1台に分けることで、建物の強度に配慮しています。
建物内外にたくさんの駐車スペースを設けたガレージハウス


2階建ての住宅に隣接するように、ガレージスペースを設置した住宅です。玄関ポーチの側にガレージがあり、楽に移動できるよう配慮されています。それでいて、壁があるため音や排気の影響を受けにくいでしょう。
屋外にも駐車スペースを設けており、晴れた日には外で洗車やメンテナンスをするなど、柔軟な使い方が可能です。
1階をガレージのみにした3階建てのガレージハウス



1階をまるごとガレージスペースとし、2階と3階に居住スペースを確保した実例です。建物の真ん中に階段を設置することで、どの車からでも室内へ行き来しやすいよう工夫されています。
3階にリビング・ダイニングを配置し、リビングでのくつろぎの時間に車の音が気になりにくい点もポイントです。
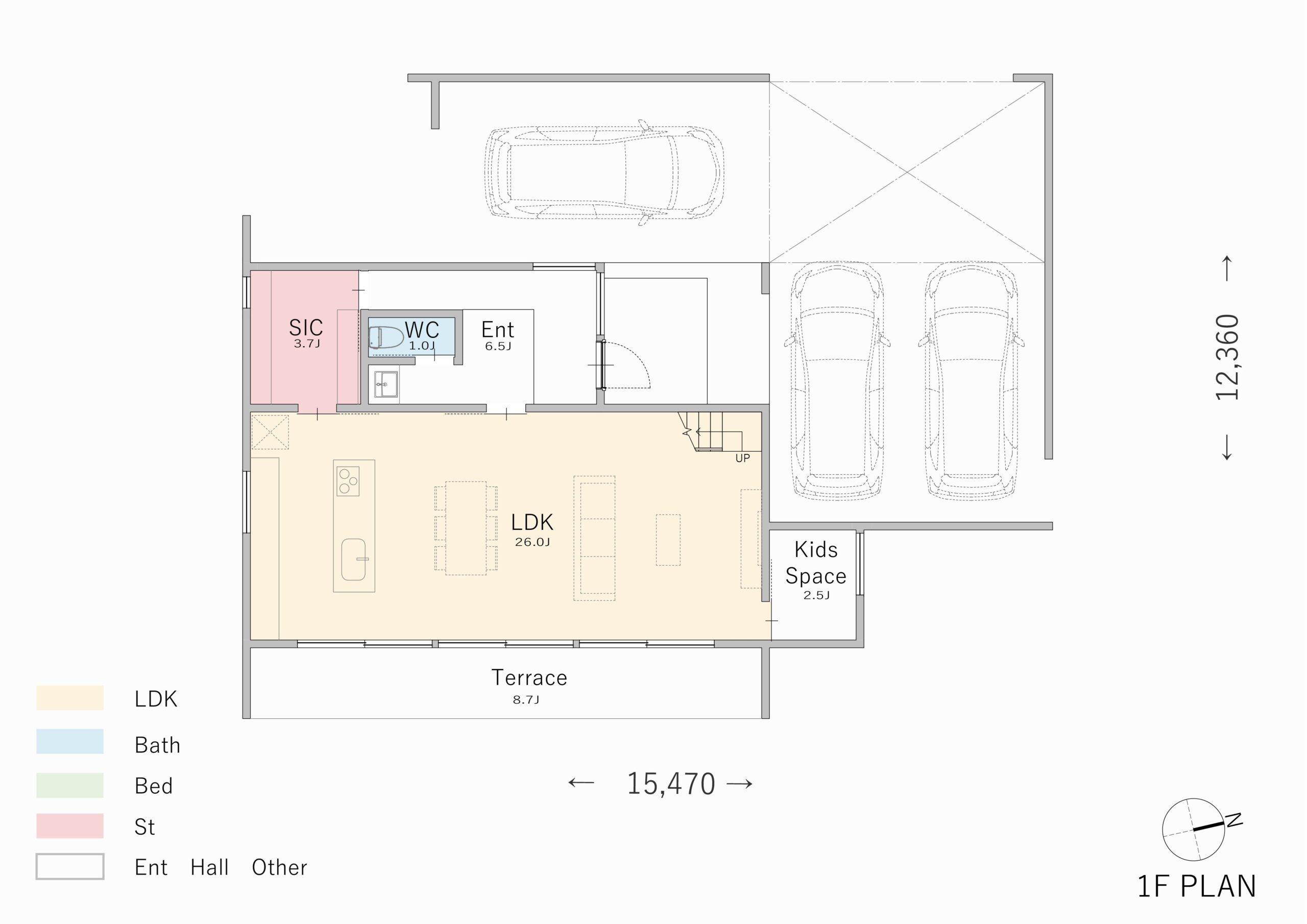
上階にプライベート空間をまとめた、ゆとりあるガレージハウス


1階に3台分のガレージとLDK、2階に寝室・個室・水回りを配置したガレージハウスの実例です。プライベート空間を2階にまとめることで、車の出し入れに伴う音や振動が気にならないよう配慮されています。
ガレージは2台用と1台用に分かれていますが、家の前に停めた車をすぐに出しやすいレイアウトです。1階にはSICとキッズスペース、2階にはWICを設け、収納スペースをしっかり確保しています。
この間取りの3Dモデルを見る
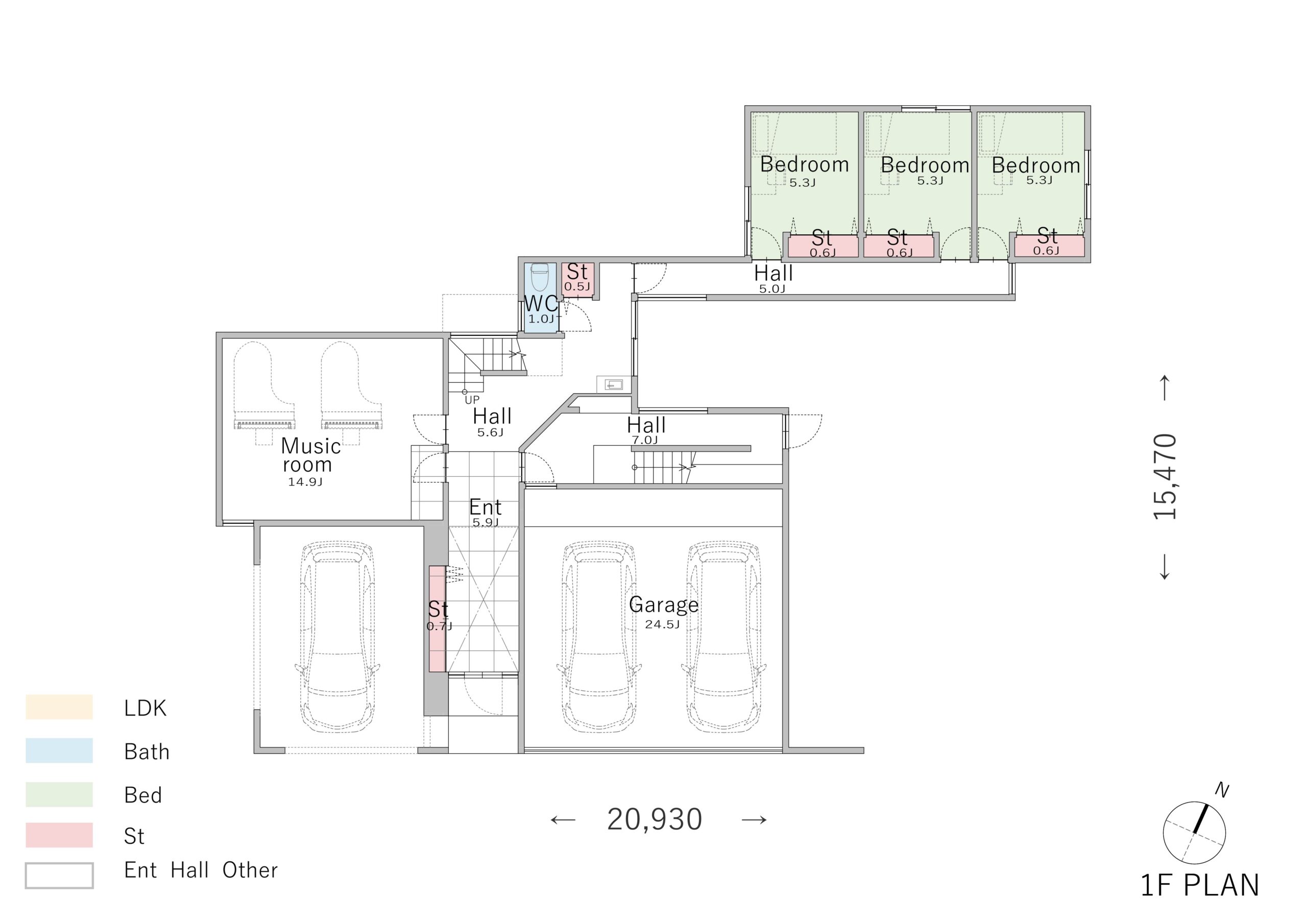
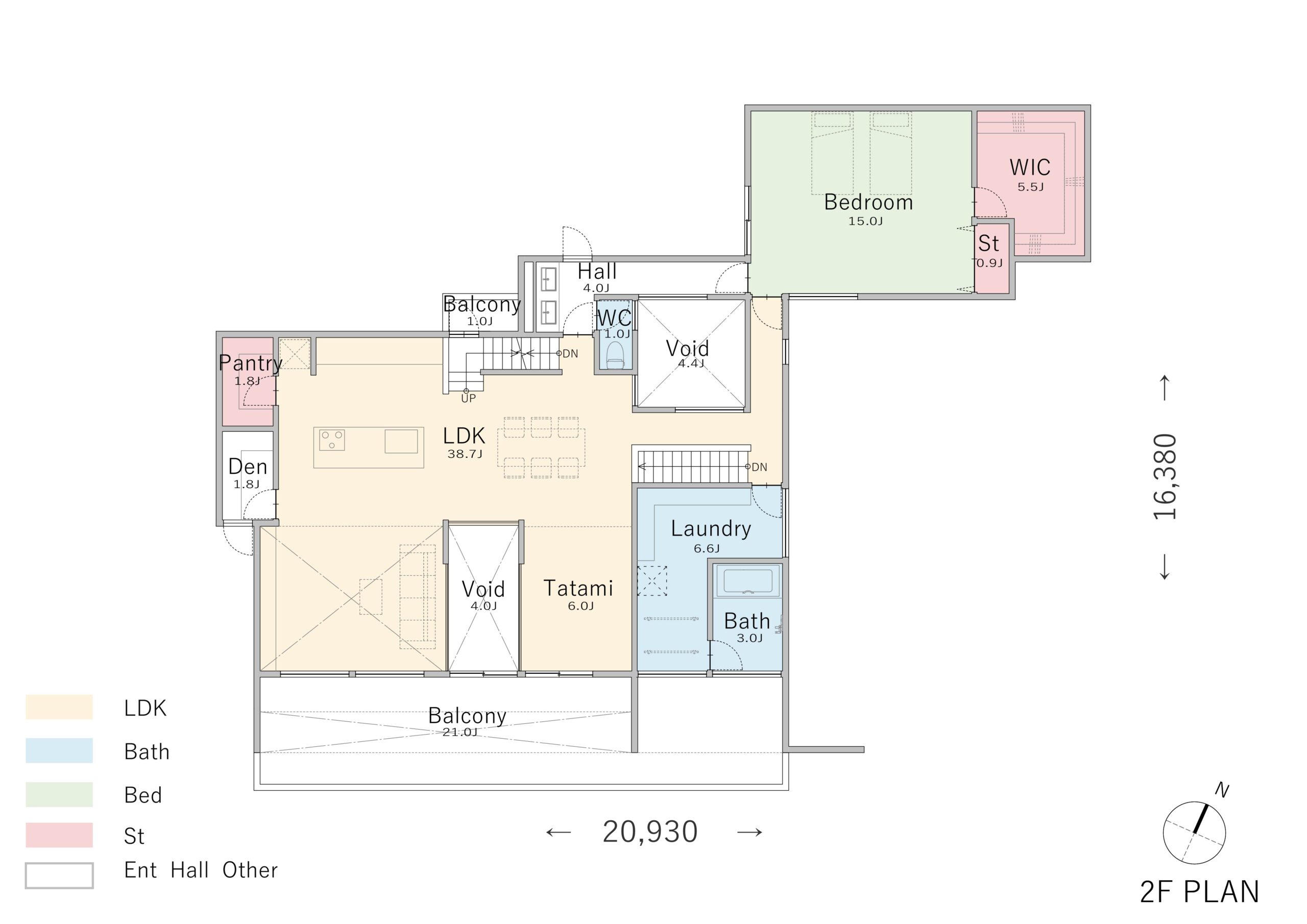
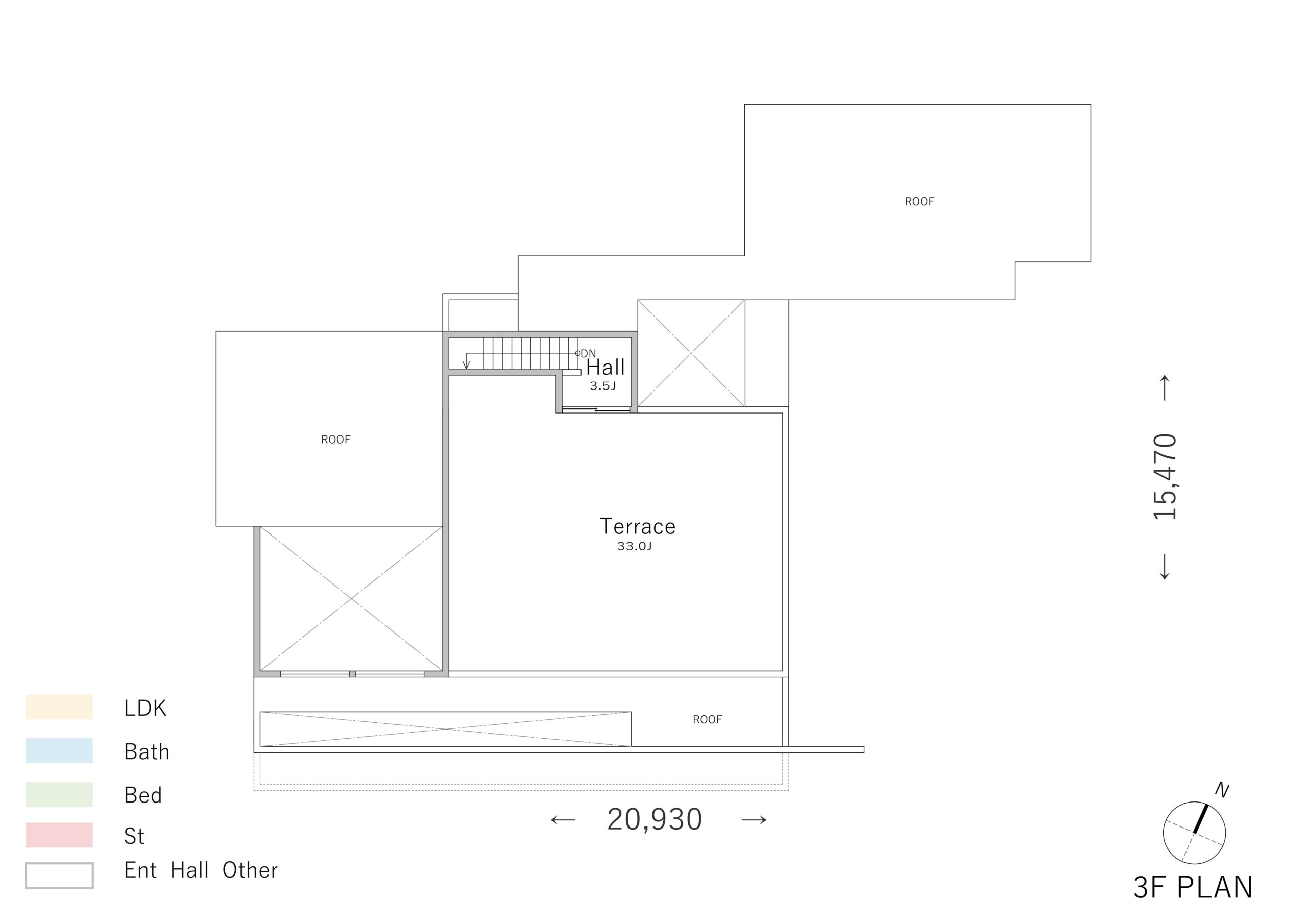
3台駐車と音の配慮を両立した、快適な住空間の間取り



3台分のガレージスペースを、居住スペースから切り離した間取りの住宅です。1階の個室をガレージやピアノ室から離して配置することで、音や排気ガスの影響を受けにくい点がメリットです。
また、2階にLDKと寝室をレイアウトし、眺望の良いリビングを実現しています。3階全体を広々としたテラスとし、洗濯物干しやアウトドアスペースなど、多目的に活用できます。
この間取りの3Dモデルを見る

3台駐車できるガレージハウスのおしゃれな建築実例
3台用のガレージハウスのおしゃれな建築実例を紹介します。
室内でも作業ができるように照明を設置したガレージハウス

CASE682 Casa de Resort
高い壁が印象的なガレージハウスです。広々としたガレージは、1台用と2台用に分かれています。照明が付いているため、時間を気にせず自由な過ごし方ができるでしょう。1台分のガレージには壁面収納が並んでおり、スペースを有効活用できるよう配慮されています。
建物の両サイドにガレージを配置した住まい

CASE728 My Style Home
家族の要望を盛り込んだアットホームな住宅です。2箇所のガレージのうち、一方はリビングからつながるガラス窓や光が入るFIX窓があり、薪ストーブの横に座りながら愛車を眺めることができます。
また、リビングは中庭ともつながっており、開放感を得られる空間に仕上がっています。

愛車を身近に感じられるガレージハウスを建てよう
ガレージハウスは、愛車を傷や汚れから守れる、スペースを多目的に活用できるといったメリットがあります。一方で、建築費用が高額になりやすく、騒音や排気の対策が必要になる点に注意が必要です。
3台駐車できるガレージハウスを設計する際には、現在の用途だけでなく将来的な車の買い替えも考慮し、ゆとりのある広さを確保することが大切です。今回紹介した間取り例や建築実例を参考にして、憧れのガレージハウスを実現しましょう。
フリーダムは、全国各地での注文住宅の施工実績が豊富で、設計・建築した住宅をまとめた資料を無料配布しています。下記よりご請求いただけますので、ガレージハウスを検討する際にご利用ください。
◆◆「フリーダムアーキテクツが手掛けたデザイン住宅の作品集を今なら無料でお届けします。」◆◆
関連記事:
おしゃれで人気のガレージハウスの実例15選!メリットや注意点、おすすめの間取りなども解説
ガレージハウス・ビルトインガレージの施工事例

3台分のガレージハウスに関するよくある質問

3台分のガレージハウスに関するよくある質問と、その回答を紹介します。
3台分のガレージハウスの費用は?
3台分のガレージハウスを建てる費用は、ガレージ部分の広さや住宅本体の建築費によって変わります。一般的な目安として、総額で約2,600万〜3,440万円ほどかかるケースが多く見られます。
ガレージ部分に必要な面積は約12〜18坪で、例えば15坪の駐車スペースを設けた場合、ガレージ部分の費用相場は約600万〜1,440万円程度と算出できます。これに住宅本体の建築費(約2,000万円)を加えると、合計は約2,600万〜3,440万円です。
ただし、建築地域や使用する建材、物価や人件費の変動などによって、実際の金額は変わる可能性があります。複数の施工会社に見積もりを依頼し、比較検討することを推奨します。
車3台分のガレージ・車庫には何坪必要ですか?
車3台分のガレージには、18〜20坪程度の広さが必要です。1台あたりの駐車スペースは幅約2.5m×長さ約6m(約4.5坪)が目安のため、単純計算では3台分で約15坪となります。ただし、車の出し入れやドアの開閉、通路などを考慮すると、20坪前後が理想的です。
また、SUVや輸入車など車体の大きい車種の場合は、さらに広い面積が必要になります。上記の数値よりも余裕を持たせて設計することで、快適な環境を整えられるでしょう。
ガレージ内で作業スペースを確保する方法は?
限られたスペースを効率的に使うことで、ガレージで趣味やDIY作業を楽しむことが可能です。例えば、壁面に棚を設置して工具や部品を整理すれば、床面を広く使えます。また、作業台や照明の配置を工夫することで、夜間でも快適に作業できます。
さらに、駐車スペースとのバランスを考慮し、車の移動を最小限に抑えられるレイアウトを検討しましょう。作業スペースとしての使用頻度が高い場合は、専用ゾーンを明確に区切ることで、使いやすく安全なガレージが実現します。
無料住宅作品集の取り寄せ
ガレージハウスの実例を含む、約40の実例写真・間取り・価格をご紹介。資料請求いただいた皆様に、無料でお届けします。

住宅作品集を取り寄せる
注文住宅・デザイナーズハウス
の建築実例を探す
全国で年間約400棟の注文住宅を
設計しているからこそ、事例も豊富
この記事を書いた人

フリーダムアーキテクツ
設計チーム
1995年創業、累計4,000棟以上の住宅設計実績と数々のグッドデザイン賞受賞歴。土地探しから設計・施工までワンストップで対応し、お客様の暮らしに合わせた理想の住まいを実現します。フリーダムマガジンでは、豊富な実績をもとにした後悔しない家づくりのポイントをお届けします。










