
CASE479 セカンドハウス 宙
2台分のガレージは、車を雨風や防犯のリスクから守れる上、室内への移動がしやすいなどの利点があります。限られた敷地の中で必要なガレージスペースと居住空間を確保するために、間取りのバランスや法的制限を踏まえて検討することが重要です。
この記事はこんな人におすすめ
- 2台の車をスムーズに駐車できる間取りは?
- ガレージと居住空間のスペースを両立させるポイントは?
- ガレージハウスの実例を見てイメージを具体化したい
この記事でわかること
- 2台駐車できるガレージを設けるメリットとデメリット
- ガレージと居住空間を両立させる間取り設計のコツ
- 設計事務所による2台駐車できるガレージハウス建築実例の紹介
無料住宅作品集の取り寄せ
ガレージハウスの実例を含む、約40の実例写真・間取り・価格をご紹介。資料請求いただいた皆様に、無料でお届けします。

住宅作品集を取り寄せる
目次
ガレージハウスとは

CASE391 horizontal
ガレージハウスとは、簡単に説明すると建物の中に車庫がある住宅のことです。インナーガレージやビルトインガレージを備えた住宅のことを、まとめてガレージハウスと呼びます。
ガレージをどのように配置するかはさまざまですが、建物の前側や側面がガレージになっているものや、1階部分を丸ごとガレージにするケースもあります。リビングとガレージをガラス壁で隔て、共有スペースから愛車を鑑賞できるようにした配置も人気です。
ガレージは、単に車庫だけでなく趣味のスペースとして使うこともできます。活用方法はさまざまで、スノーボードや釣りなど趣味の道具を保管したり、DIYのスペースとして活用している方もいます。
関連記事:おしゃれで人気のガレージハウスの実例15選!メリットや注意点、おすすめの間取りなども解説

2台分のガレージハウスに必要な広さ
ガレージハウスは、通常の注文住宅と比べ建築面積が大きくなります。
普通自動車を1台無理なく駐車できるスペースは「幅2.5m×長さ6m」といわれています。坪数に換算すると約4.5坪相当です。2台分のスペースを確保するなら単純に計算して約9坪程度必要になります。作業スペースや保管庫などを併設したいのであれば、その分要求される面積も大きくなります。
ただし、この広さは車種によっても異なるため注意してください。サイズの大きな車種や輸入車であれば先ほどの面積では不足することもありますし、2台ともコンパクトカーであれば一回り小さい面積で十分なケースもあるでしょう。
建築を検討する際は、設計会社に相談しつつ「我が家に必要な面積はどのぐらいか」を明確にすることで、敷地を無駄なく活用した間取りの実現ができます。
関連記事:3台駐車できるガレージハウス・ビルトインガレージのある家|間取りと建築実例を紹介

2台分のガレージハウスを作るメリット

車を止めたいだけであれば、屋内のガレージではなく屋外の駐車スペースでも事足ります。あえて家をガレージハウスにすることには、どのようなメリットがあるのでしょうか。2台分のガレージハウスを作るメリットを詳しく見てみましょう。
愛車を傷や汚れから守れる
ガレージハウスの大きなメリットの1つは、愛車を傷や汚れから守れることです。
ガレージの入口にシャッターを設置して、車を使わないタイミングでは閉めておくようにすれば、砂埃や風雨による汚れから愛車を守れます。紫外線の差し込みによる外装の劣化も緩やかになるでしょう。お気に入りの車のコンディションを維持しやすいのは嬉しいポイントですね。
また、ガレージハウスは防犯面でもおすすめできます。鍵がなければシャッターを開けられないようにしておけば、屋外の敷地に駐車する場合と比べ盗難リスクは低くなります。防犯カメラなどの設置もしやすいですね。
2台駐車できるガレージにすれば2台とも守れるため、車が趣味で複数台所有している方や、夫婦両方に自分用の車がある家族におすすめできます。
駐車場から玄関への移動が楽
ガレージハウスは、駐車場から玄関への移動が楽なのもメリットです。
屋外の駐車スペースから玄関まで移動するとき、風雨や雪に当たってしまうことは避けられません。子どもや買い物袋を抱えていると傘をさすのも難しいですよね。カーポートを設置することも選択肢の一つですが、隙間ができるため完全に雨風を防ぐことはできません。
その点、駐車場を屋内にすれば、濡れることを気にする必要はありません。ガレージ内に勝手口を設置したり、玄関ポーチに直通の通路を作れば、ガレージの内側から家の中にアクセスできるようになります。
屋内の遊び場としても使える
2台分のガレージは、車がないタイミングであれば屋内の遊び場としても使えます。
2台分のガレージの面積は9坪以上となるため、アウトドアスペースや子ども、ペットの遊び場として活用できます。バーベキューをする、ビニールプールを置いて水遊びをする、愛犬とボール遊びをするなど、活用方法はさまざまです。
ガレージの床はコンクリート敷きにすることが一般的なため、汚れたり濡れたりしても楽に手入れできます。プライバシーを守りながら思いっきり遊べるのも嬉しいですね。

2台分のガレージハウスを作るデメリット

2台分のガレージハウスを作るのであれば、メリットだけでなくデメリットも理解しておきましょう。具体的にどのような点が問題となるのか、詳細を紹介します。
建築費用が高くなる
2台分駐車できるガレージハウスを建てるなら、一般的な駐車場付きの家を建築する場合と比べると、費用が高くなりやすいです。理由は、ガレージハウスの構造にあります。
例えば、3階建ての家で1階部分の半分をガレージにするとします。ガレージ側は駐車スペースのため空洞となり、各種建築基準は残りの半分のスペースで満たさなければなりません。この部分は一般的な家の構造より強度が要求されるため、コストがかかるのです。
インナーガレージの建築費用は、坪単価で約50万〜80万円ほどが目安です。9坪を想定して計算すると、450万〜720万円ほどが相場となります。
間取りに制限がある
建物の中にガレージを組み込むという性質上、間取りの選択がある程度制限されます。
仮に、四角形の建物の1階部分をインナーガレージにするなら、建築面積にもよりますが1階の大部分をガレージが占めることが多いでしょう。こうなると、1階は玄関と水回りのみ配置するなど、省スペースでやりくりする必要があります。
敷地の広さ次第では、ガレージに共有スペースが圧迫されることもあるため、住みにくい家にならないようしっかりと間取りを考えなければなりません。
理想の間取りとインナーガレージを両立させたいのであれば、ガレージを組み込む前提で広めの土地を探すことをおすすめします。土地探しから相談できる設計事務所を探すのも選択肢の一つでしょう。
騒音・換気対策が必要になる
ガレージハウスでは、車の発進時や駐車時に、建物の中でエンジンを動かすことになります。そのため、騒音や換気の対策が必要です。エンジン音や排気の影響を受けるのでは、快適に暮らすのは難しいでしょう。
また、車だけでなくシャッターの開閉音にも注意してください。音の大きいシャッターの場合、早朝や深夜に使うと近隣トラブルに発展する可能性もあります。音の小さなタイプを選び、定期的なメンテナンスで軋み音が発生しないようにしましょう。

2台分のガレージハウスを安く建てたい!コストを抑える方法

建築費用が高くなりやすいガレージハウスですが、いくつかポイントを押さえることで、コストを節約して建築することも可能です。
1台分のガレージハウスにする
そもそも、生活スタイルを振り返ってみると、必ずしも2台入るガレージでなくても良いこともあります。例えば、1台は趣味の高級車で、もう1台は普段使い用のファミリーカーだとします。この場合は、インナーガレージに駐車するのは高級車の方だけでも良いかもしれません。
インナーガレージは、広くなればなるほど建築費が高くなる傾向にあります。2台所有しているなら、1台は屋外の駐車場に、1台は屋内に、と駐車する場所を変えることも可能です。ガレージのスペースが小さくなるためコストは抑えられるでしょう。
2台とも屋内に駐車するより大幅にコストを削減できるので、一度検討してみてはいかがでしょうか。
オプションをつけすぎないようにする
他の設備と同じように、ガレージにも標準仕様とオプションがありますが、オプションをつけすぎるとその分費用が高くなるため注意が必要です。
オプションをつけると、ガレージに機能をプラスできたり、よりハイグレードなデザインに変更できたりします。オプションの種類は、シャッターや照明が高機能になるものや、換気扇の追加ができるものなどさまざまです。
オプションの導入を検討するときは「自分や家族に本当に必要か」をチェックし、優先順位をつけて予算内に収まる範囲で採用することをおすすめします。
安価な素材を選ぶ
安価な素材を選ぶことで、建築時のコストを抑えることが可能です。
ガレージの建築にかかる費用は、どの素材を選ぶかによって大きく異なります。一般的には鉄筋コンクリートが最も高額で、鉄骨、木造の順に安価です。
ただし素材ごとに耐用年数が異なり、風雨や湿気など周辺環境の影響をどの程度受けるかによっても、長持ちするかが変わってきます。木造なら比較的安く建てられますが、鉄筋コンクリート造と比べ経年劣化しやすいので、定期的なメンテナンスが必要です。
建築時だけでなく、10年単位でどの程度維持費がかかるかも考慮すると、コストパフォーマンスの高いガレージ作りができるでしょう。

2台分のガレージハウスの間取りを考えるときのポイント

2台分のインナーガレージは相応にスペースを必要とするため、居住空間を圧迫しないか心配な方も多いのではないでしょうか。ここでは、間取りを検討するときに押さえておきたいポイントを紹介します。
2階をリビング・ダイニングにして居住空間を広くする
一般的な建築面積の戸建て住宅に、2台駐車できるインナーガレージを作るのであれば、必然的に1階の大部分がガレージになります。ガレージとリビング、ダイニングを同じ階にするなら、広い敷地を確保しなければなりません。
土地があまり広くないケースでは、家を2階建て以上にして、ガレージと共有スペースを別の階に配置することをおすすめします。こうすることで、ガレージが居住スペースを圧迫することなく、リビング、ダイニングを広々と使えます。狭小地でインナーガレージを検討するときにもおすすめの間取りです。
車の買い替えの可能性を視野に入れる
ガレージハウスは、車を買い替える可能性を考慮して設計することをおすすめします。
2台分のガレージといっても、車の大きさによって必要なスペースの広さは異なります。例えば、現在は夫婦が軽自動車を1台ずつ所有していても、将来的に子どもが生まれてファミリーカーに乗り替えるかもしれません。
このように、ライフステージの変化によって必要な車の大きさが変わることもあります。ライフプランをどう考えているかにもよりますが、最低限の広さに留めることがベストとは限りません。
特に、大型の輸入車やSUVは車幅が大きいため、ギリギリの設計だとガレージに入らないこともあるでしょう。将来大きな車に乗る可能性がある場合は、余裕を持ってスペースを確保しておきましょう。
寝室や子ども部屋はガレージと離す
寝室や子ども部屋は、ガレージと離した配置にすることをおすすめします。
インナーガレージは、昼夜問わず好きな時間に愛車をメンテナンスできるという大きなメリットがあります。しかし、メンテナンスの音や車のエンジン音が睡眠の妨げになることも。
家族それぞれの居室や寝室、リビングダイニングなど、在室時間が長く静かに過ごしたい部屋は、ガレージに隣接しない配置にしてみてください。家族の中に在宅ワーカーがいるなら、仕事部屋からも離すと良いでしょう。
家族のライフスタイルを考慮しつつ、快適に暮らせるよう間取りを工夫してみてください。

2台分のガレージハウスの間取り例
ガレージハウスをどのような間取りにするか決まらない場合、既存の住宅を参考にすることをおすすめします。
ここでは、フリーダムアーキテクツに設計をご依頼いただいたお客様の実際の間取り例を3つ紹介します。
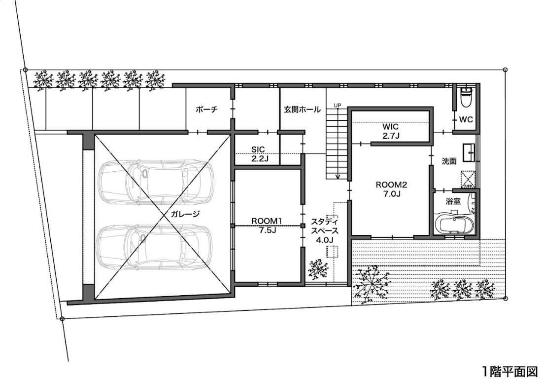
帰宅後の動線がスムーズな平屋の間取り

2台分のビルトインガレージを玄関横に配置し、雨の日でも濡れずに室内へアクセスできるよう設計しました。敷地内には、車が2台駐車できるスペースも別途設けており、晴れている日は外に車を置いて、ガレージ内を別の用途で使うことも可能です。
また、玄関からSIC、パントリー、LDKへと最短動線でつながっているため、買い物帰りの収納動線も効率的です。洗面室やランドリールームも並んでおり、平屋ならではのコンパクトな生活動線が特徴的な間取りを実現しています。
この間取りの3Dモデルを見る
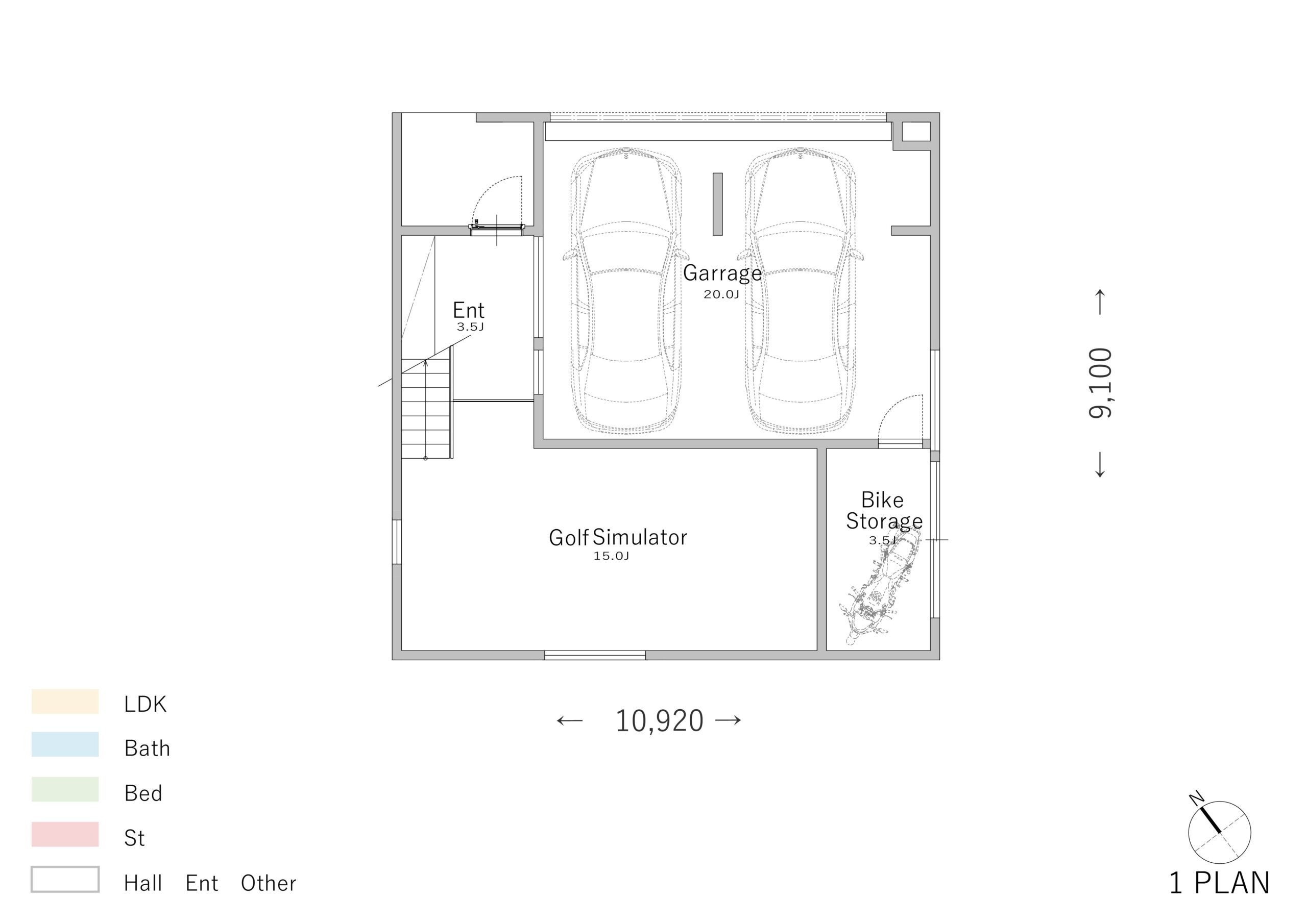
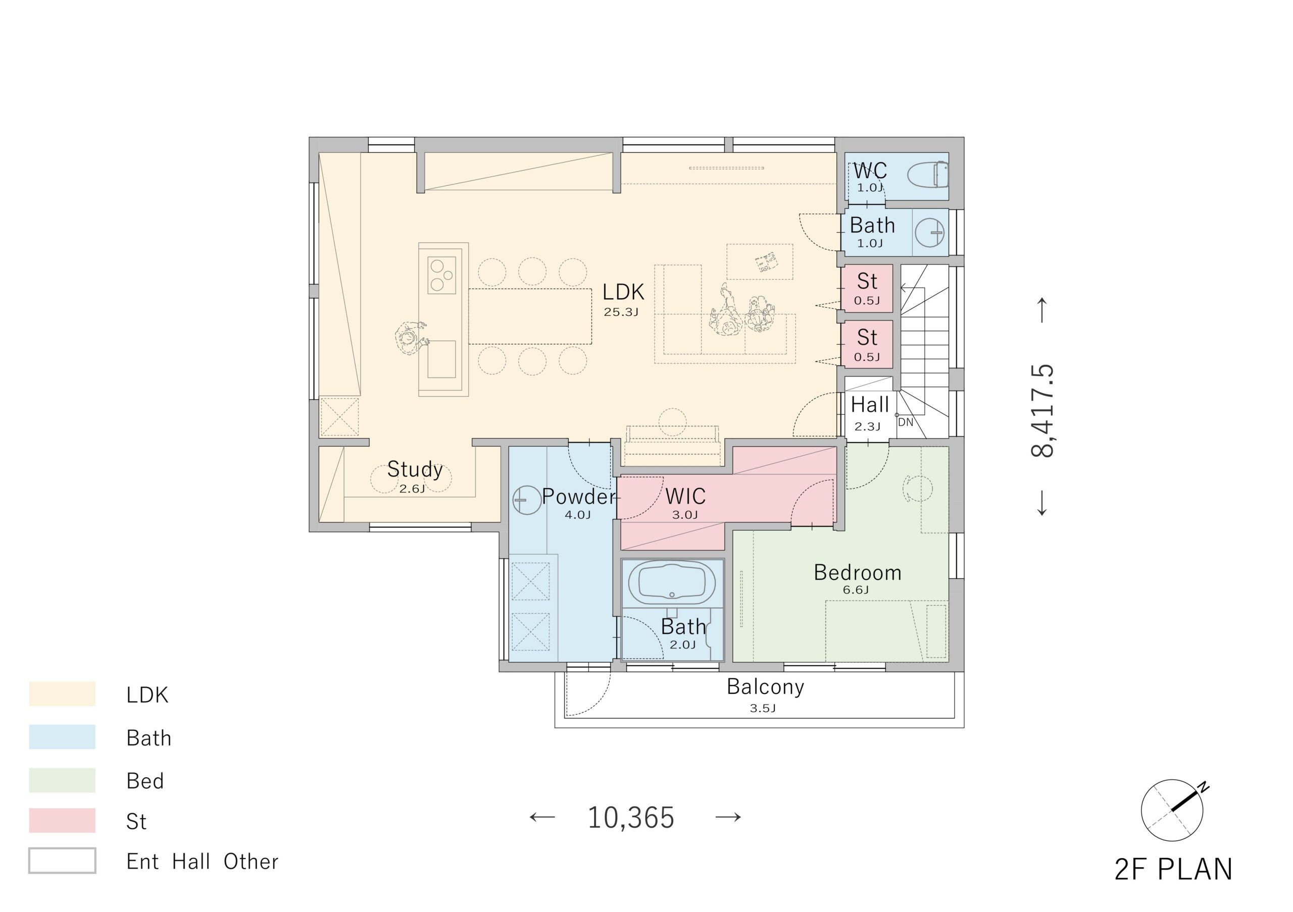
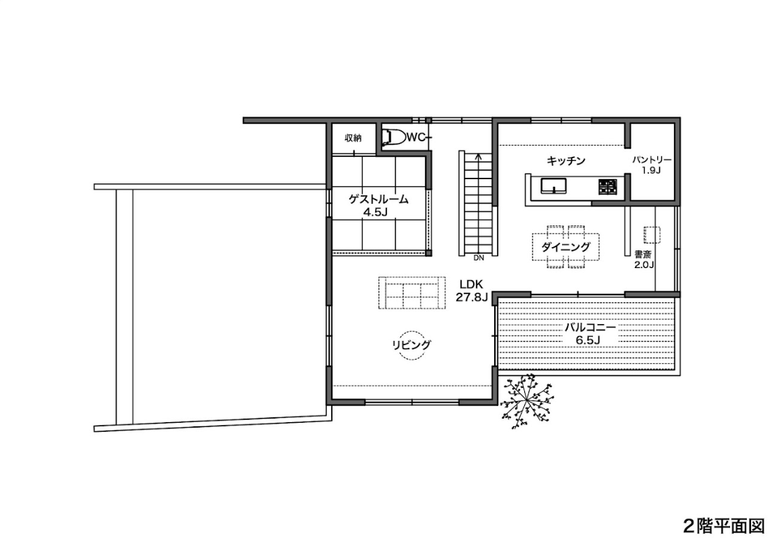
ガレージ音を気にせず暮らせる、2階LDKの間取り


1階にビルトインガレージを設け、居住空間を2階に集約することで、スペースを明確に区分しました。また、LDKは2階中央に配置し、生活空間に車の音や振動の影響が及ばないよう配慮しています。
また、寝室や書斎もLDKと隣接する形でまとめることで、コンパクトな生活動線を実現しています。ガレージ横にはゴルフシミュレーターやバイク収納スペースを備え、趣味を楽しめる空間としても充実したプランです。
この間取りの3Dモデルを見る
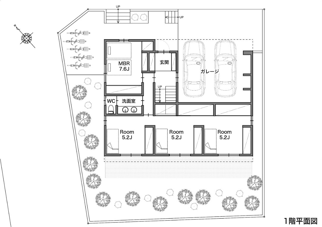
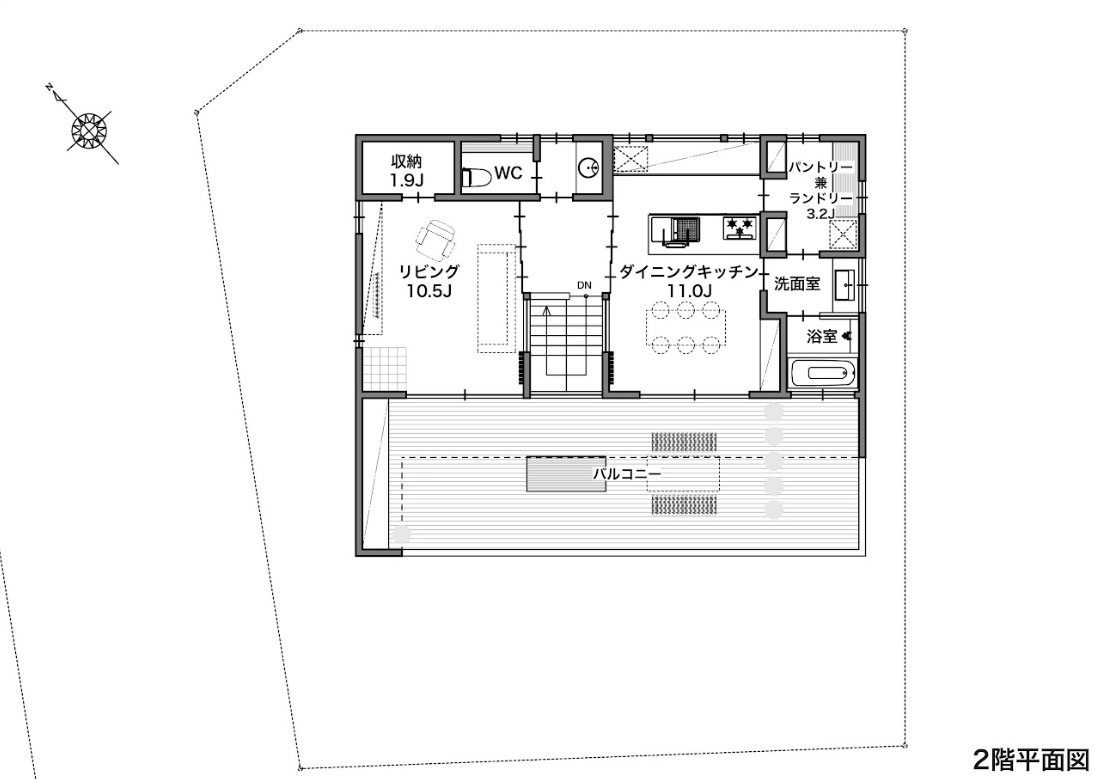
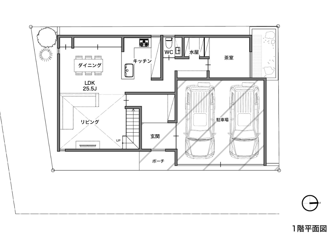
2台+来客用1台も確保できる、余裕あるガレージの間取り


自家用車2台分に加え、来客用の1台も駐車できる29.5帖のゆとりあるビルトインガレージです。柱や仕切りの少ない構造により、車の乗り降りや荷物の出し入れもスムーズに行えるよう工夫しています。
また、屋内から玄関、ホールを通じて2階のLDKへアクセスでき、天候に左右されにくい生活動線を実現しました。1階に個室を、2階にLDKと水まわりを集約し、音やプライバシーの対策も考慮した間取りです。
この間取りの3Dモデルを見る
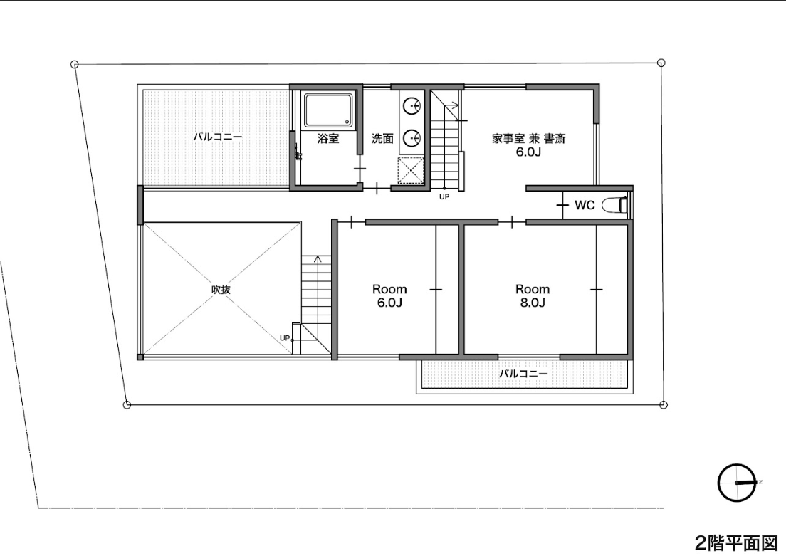
2階に広々としたLDKを設けた間取り


敷地形状や屋内の間取りとのバランスを踏まえた設計です。2階のLDKは日当たりと開放感を最大限に活かし、バルコニーと連続する南側に広く設けて視線の抜けを確保しています。
また、1階は主寝室と子ども部屋をL字型に配置し、限られた面積を効率的に活用しつつ、個室がガレージに直接面しないよう配慮しました。さらに、玄関と階段を中央に配置することで、上下階の移動や来客対応にもスムーズに対応できる設計です。
大きな窓から愛車を眺められる間取り


ガレージに隣接する個室に大きな窓を設置し、室内から愛車を眺められるレイアウトに仕上げました。ただの駐車スペースではなく、「愛車を鑑賞できる空間」としての価値を持たせています。
また、ガレージは玄関ポーチから直接アクセスできるため、雨に濡れずに移動できる動線の確保と防犯性を両立しています。LDKは2階に設けることで、プライバシーを確保しつつ、外部の騒音や振動の影響が少ない静かな居住空間を実現しました。
ガレージから玄関へ直接アクセスできる間取り



2台分のガレージは、玄関ホールと直結する動線を確保しており、雨の日でも濡れることなく室内へ入れます。荷物の持ち運びもしやすく、子どもの移動も安全なため、送り迎えもスムーズに行えるでしょう。
また、玄関とリビングは視線を遮るレイアウトにすることで、来客動線にも配慮しています。1階には茶室も配置し、日常の機能性と非日常のくつろぎが共存する間取りを実現しました。

2台用ガレージハウスのおしゃれな建築実例
2台分のガレージがある家が欲しいな、と思っていても、実際にはどんな家なのかイメージがつかない人も多いもの。ここでは、フリーダムアーキテクツがお任せいただいた家の建築実例を写真付きで紹介します。参考にしてください。
2台分の駐車スペースに加えて壁面収納も設けたガレージハウス

CASE627 HOUSE . GARAGE HOUSE
高低差のある敷地の中で、実用性とデザイン性を両立させたガレージハウスです。2台分の車をゆったりと停められるビルトインガレージを確保しました。車両間に十分なスペースを持たせることで、荷物の出し入れや乗り降りも快適に行えます。
また、ガレージ内には天井まで活用できる壁面収納を設け、工具や季節用品、アウトドアグッズなどをスマートに整理可能です。ガレージの奥はあえて壁を無くし、室内からも中が見える設計により、愛車を日常の風景として楽しめる演出も加えています。
壁面にカヌーを吊り下げた秘密基地のようなガレージハウス

CASE511 高台のガレージハウス
家の地下部分に、2台分のインナーガレージを設けた住宅です。コンクリート打ち放しのガレージは、趣味を活かした「秘密基地」のような設計にしました。壁面にはカヌーを吊り下げ、奥には自転車や工具、アウトドアギアが美しく整理されており、使い勝手と見た目を両立させています。
また、ガレージ横には赤く映える扉が設置されており、シャッターの開閉なしに出入りできる点もポイントです。インナーガレージは大切なコレクションの防犯対策ができ、くつろぎの場としても機能しています。
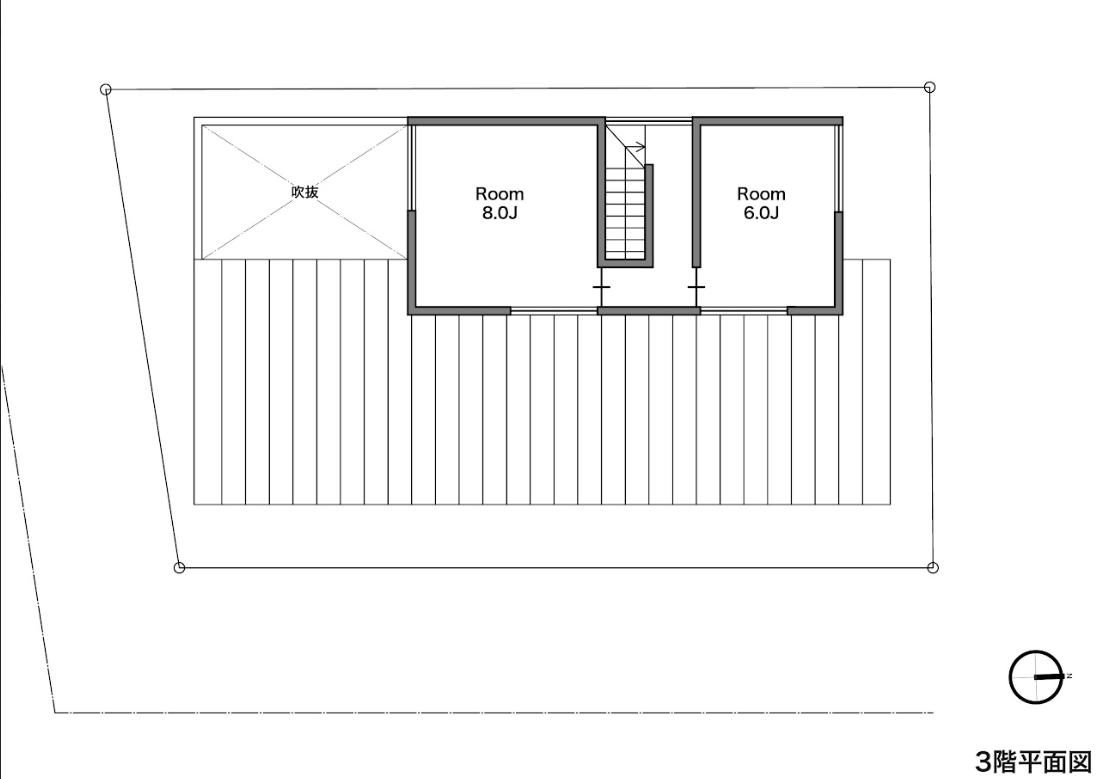
LDKに隣接するショールームのようなガレージハウス

CASE479 セカンドハウス 宙
愛車を「飾る」ことを前提とした、ショールーム仕様のビルトインガレージです。LDKとの境には大開口のガラス壁を採用し、ガレージ内の照明をつけると愛車がスポットライトを浴びて輝き、室内にいながら愛車を間近に楽しめます。
また、天井・照明・床材にもこだわり、展示空間としての演出性と日常生活の快適性を両立させるよう配慮しています。車と暮らす夢を叶えた、美しい海の見える高台のセカンドハウスです。
高低差を活かし地下車庫を設けたガレージハウス

CASE391 horizontal
傾斜のある土地を活かし、建物の基礎部分にガレージを作ったプランです。前面道路から無理なくアプローチでき、車の出し入れもスムーズに行えます。また、ビルトインガレージ上部には居住スペースを配置し、敷地の有効活用とプライバシーを両立する間取りにしました。
ガレージ内は、壁面収納や自転車を吊り下げるスペースを設けて、利便性を高めています。限られた敷地で、開放感と機能性、デザイン性を実現した住宅です。
趣味を楽しめるおしゃれなガレージハウス

CASE733 Sea Side Residence
サーフィンやアウトドアを楽しむライフスタイルに合わせて、駐車スペースだけでなく趣味の場として機能するガレージを設計しました。壁面には、味のある木箱やサーフグッズをディスプレイし、ギャラリーのような空間を演出しています。
また、趣味道具の収納やメンテナンスにも活用できるよう、ゆとりある広さを確保。外からの視線を遮りつつ、室内で開放的に過ごせるよう配慮しています。
ソファも置けるゆとりのあるガレージハウス

CASE637 『Assemble』
都市部の限られた敷地でも、ガレージを快適な空間として活用できるように設計しました。車と大型バイクをゆとりを持って駐車できるよう、幅広の間口を確保しており、並列駐車も可能です。
また、ガレージの横にはレザーソファを配置し、白を基調とした内壁に間接照明が反射する特別な空間を演出しています。愛車の手入れをしながらコーヒーを飲む、仲間と集まって会話を楽しむなど、多様なライフスタイルに柔軟に対応可能なガレージです。
木目調のシャッターが映えるガレージハウス

CASE251 Luxury Lounge
白い壁と、温かみのある木目調のシャッターのコントラストが印象的な住宅です。ガレージの内部は、2台分の駐車スペースを確保し、ファミリーカーも余裕を持って駐車できる広さです。
また、日中の陽射しを反射する明るい外壁と、夜間のライティングで浮かび上がる木目が、昼夜で異なる表情を演出しています。ガレージが共有スペースを圧迫しないよう、LDKは2階に配置することで、景色を楽しみながらくつろぎの時間を過ごせる間取りを実現しています。
上階LDKと調和する、ホテルライクなガレージハウス

CASE781 天地を紡ぐ家
石調タイルの外壁と黒のガレージシャッターが際立つモダンな外観が、まるで高級ホテルのエントランスのような印象を与えます。ガレージの内部も黒基調で統一し、無駄を削ぎ落としたミニマルな設計によって、空間全体に上質な静けさをもたらしています。
また、上階のLDKとはガラス越しに連続性を持たせ、車が生活空間の一部として映えるレイアウトにしました。車を引き立てつつも、生活空間と美しく共存するホテルライクな住まいです。
車を美しく魅せる、ギャラリーのようなガレージハウス

CASE534 【Mod】el
ファサードと一体化したシャッターを開けると、白を基調とした空間が車を引き立てるギャラリーのようなガレージが現れます。室内照明は、愛車のシルエットを美しく浮かび上がらせるように設計しました。
また、コンクリート土間の床は無駄を削ぎ落としたミニマルな印象で、「車を眺めて楽しむ」という所有者の希望に応えるための空間を実現しています。

おしゃれで快適に!憧れのガレージハウスを建てよう
車好きならガレージハウスは憧れの設備です。趣味の空間に使えたり、愛車を盗難や損傷から守れたりとメリットも多いため、予算を確保できるなら選択肢の一つになるでしょう。
一方、間取りの制限やメンテナンス面、音や排気の対策など、注意したいポイントもあります。予算内でこうした点をクリアすることが大切なため、ガレージハウスを手がけた経験の豊富な設計事務所に依頼するのがおすすめです。
フリーダムアーキテクツでは、ガレージハウスを始め、過去に手がけた住宅の実例集を作成し、希望されるお客様にプレゼントしています。「どんな注文住宅が良いか分からない」こんな場合は参考になりますので、ぜひご利用ください。
◆◆「フリーダムアーキテクツが手掛けたデザイン住宅の作品集を今なら無料でお届けします。」◆◆
関連記事:ガレージハウスの価格をシミュレーション! メリット・注意点も解説

2台分のガレージハウスの間取りに関するよくある質問

ここからは、2台分のガレージハウスの間取りについて、よくある質問とその回答を紹介します。
ガレージハウスは固定資産税に影響する?
ガレージが建物の一部とみなされる場合、固定資産税評価額が上がる可能性があります。評価基準は自治体によって異なり、屋根や壁、シャッターで囲われた構造は課税対象となることが多いため、設計前に役所へ確認しておくと安心です。
ガレージが建築面積として算入されるかどうかで、税負担を含めたコストが変わるため、想定外の出費を防ぐためにも事前に把握しておきましょう。
2台分のガレージを作るときに注意したい換気や防音のポイントは?
2台分のガレージでは排気量が多くなるため、排気ガスを効率よく屋外へ排出できるよう、高性能な換気ファンや通気口を設置すると効果的です。また、夜間や早朝に音が響かないよう、静音性の高いシャッターや壁への防音材の採用も検討しましょう。
加えて、居室との距離を十分に取るなど、間取りの工夫も大切です。居居室との間に気密性の高い建具を設置したり、遮音材・断熱材を入れて騒音を低減したりするなどさまざまな方法があります。日常生活への影響を最小限に抑える対策を取り入れましょう。
2台用のガレージハウスは将来的に使い方を変えることもできる?
ガレージはライフスタイルに応じて柔軟に用途を変えられます。例えば、将来的に車を1台に減らした場合、1台分のスペースを収納や趣味の部屋として活用可能です。また、子どもの成長に合わせて、遊び場やバイクの駐輪スペースとしても利用できます。
他にも、DIYや軽作業を行う作業場、トレーニングスペース、友人との団らんの場所などさまざまな用途に転用できるでしょう。建てた後の拡張は難しいため、将来の暮らしの変化を想定し、柔軟な設計を心がけることが大切です。
無料住宅作品集の取り寄せ
ガレージハウスの実例を含む、約40の実例写真・間取り・価格をご紹介。資料請求いただいた皆様に、無料でお届けします。

住宅作品集を取り寄せる
注文住宅・デザイナーズハウス
の建築実例を探す
全国で年間約400棟の注文住宅を
設計しているからこそ、事例も豊富
この記事を書いた人

フリーダムアーキテクツ
設計チーム
1995年創業、累計4,000棟以上の住宅設計実績と数々のグッドデザイン賞受賞歴。土地探しから設計・施工までワンストップで対応し、お客様の暮らしに合わせた理想の住まいを実現します。フリーダムマガジンでは、豊富な実績をもとにした後悔しない家づくりのポイントをお届けします。












