
家づくりを意識したとき、決めなければならないことはさまざま。「広さは?」「間取りは?」「部屋はいくつ必要?」など、分からないことが多く、なかなか進まない方も少なくありません。
今回は「4人家族の理想の間取り」をテーマに、暮らしやすく快適な家にするためのポイントを紹介します。
この記事はこんな人におすすめ
- 4人家族の一般的な間取りは?
- 4人家族が快適に暮らせる広さはどのくらい?
- 理想の間取りづくりのポイントは?
この記事でわかること
- 4人家族に必要な家の広さは30~35坪、間取りでは3LDK ~4LDK
- 間取りは暮らしとのバランスと収納、動線で決める
- 4人家族の暮らす家の写真付き建築実例
無料住宅作品集の取り寄せ
4人家族向けの家のの実例を含む、約40の実例写真・間取り・価格をご紹介。資料請求いただいた皆様に、無料でお届けします。

住宅作品集を取り寄せる
目次
4人家族に必要な広さと間取りの目安

4人家族に必要な家の広さは、延床面積では29~38坪、間取りでは3LDK ~4LDK が目安です。
厚生労働省の定める居住面積の推奨水準「誘導面積水準」によると、4人家族が快適に暮らすための床面積は次のとおりです。
| 誘導居住水準面積 都市居住型 | 95㎡(約29坪) |
| 誘導居住水準面積 一般型 | 125㎡(約38坪) |
この基準をクリアするよう設計すると、余裕を持って生活できるでしょう。間取りの面では、LDKは18~20帖ほどあれば、家族全員がのびのびと暮らせるスペースになります。
子どもには将来的に個室を与えられるよう設計するのがおすすめです。子どもが二人いる場合は、幼い頃は広めの一部屋を用意し将来的に子ども部屋に間仕切りを設ける、可変的な間取りを採用するなど工夫すると、成長したあとも使い勝手の良い家にできます。
参考:生活基本計画における居住面積水準|厚生労働省

4人家族の間取りで重視すべき3つのポイント

4人暮らしの家は、人数が多い分維持や管理に工夫が必要です。快適な生活を送るための間取りづくりでは、以下の3つのポイントを抑えておきましょう。
・暮らしに合わせた部屋割りとバランスのとれた間取り
・収納計画で“片付く家”を実現
・回遊動線でストレスのない家事導線
それぞれ紹介します。
暮らしに合わせた部屋割りとバランスのとれた間取り
4人暮らしの家では、家族構成やライフスタイルに合った間取りを考えて、各部屋の配置を検討することが大切です。
例えば、以下のスペースは「必要かどうか」「いくつ必要か」を、暮らしに合わせて明確にしておきましょう。
| 子ども部屋 | 子どもの人数と性別で数や広さを考える。 |
| 寝室の数 | 夫婦で寝室を別にするか決めておく。寝るタイミングが違うなら個別で必要な場合も。 |
| 仕事部屋/書斎 | 在宅ワークの機会が多いなら集中できるスペースが必要。 |
| 来客用の部屋 | ゲストの来訪が多いなら用意する。 |
子ども部屋や仕事部屋は、1人に1つ必要かどうかで数や広さが変わってきます。
・子どもが小さいうちは広めの部屋一つにする
・在宅ワークは稀なので個室ではなくリビングにワークスペースを作る
など、工夫もできますので実際の生活をシミュレーションして間取りを考えてみてください。
収納計画で“片付く家”を実現
4人家族の家は住む人が多い分、ものが増えるにつれて散らかりやすくなります。家族に合った収納を計画し、すっきり片付く家にしましょう。
家族の多い家におすすめなのが、ファミリークローゼットです。洗濯の動線がすっきりまとまり、個室の収納が少なくても服が散らからない家にできます。
用途別に収納を分けて、片付ける場所を明確にするのも良い方法です。土間収納やパントリーなどを間取り別に設けると、使ったらすぐに片付けられます。
2階建て以上の場合、フロアごとに収納を作ることを検討してみてください。動線がスムーズになり、ものが放置されにくい家になります。
回遊動線でストレスのない家事動線
動線に回遊性をもたせると、ストレスなく家事ができます。こちらも普段の生活を思い返しながら間取りを組み立てると、使いやすい配置が明確になりますよ。
例えば帰宅してから家事をまとめて行うなら、キッチンと洗面室、浴室をつなげる間取りがおすすめです。料理と洗濯を同時進行できます。
洗濯物を洗ってから片付けるまでを1フロアで完結できる間取りも、家事を効率的に進められるため人気です。玄関からリビング、洗面所へと分かれる配置も、帰宅後の動線がスムーズになります。

ライフスタイル別に見る4人家族の理想の間取り

理想の間取りを考えるためには、実際の暮らしのシミュレーションが大切です。
・共働きの家庭
・子育て期
・子どもの独立後
家族のライフステージや暮らし方別に、4人家族の間取りのポイントを考えていきます。
共働き家庭なら「時短動線」と「共有収納」がカギ
多忙な共働き家庭では、毎日の生活や家事をいかに効率的にできるかが重要です。「家事の時短ができる動線」と「散らかりにくい共有収納」がポイントになります。水回りを集約させて家事を効率化できる間取りや、家族で使えるファミリークローゼットなどが代表的です。
共働き世帯は頻繁に買い物に行けないため、まとめ買いした日用品や食料品を保管できるパントリーや、不在時に荷物を受け取れる宅配ボックスも人気があります。
朝の支度が楽にできる動線もおすすめです。洗面所からファミリークローゼット、玄関までを最短で移動できるよう配置すれば、身支度から出発までの流れを効率化できます。
子育て期は「成長に合わせて変化できる間取り」を
子どもに必要な部屋数は、成長にともない変化します。そのため、子育て期には子どもの年齢に合わせて変更できる間取りがおすすめです。
子どもが2人いる場合、1つの子ども部屋を将来的に2部屋に分けると想定してプランニングすると、後から間仕切りや壁を作りやすくなります。
子どものいるご家族には、家事をしながら子どもを見守れる「リビング備え付けのスタディスペース」や、成長につれて増えるおもちゃや学用品をしまえる「成長対応収納」も人気です。
子どもが独立後も快適に暮らす“将来を見据えた設計”
子どもが巣立ったあとの暮らしを考えて、住む人が減っても快適に暮らせる間取りにすることも大切です。
例えば2階建ての場合、子ども部屋を2階に配置して1階に主寝室と共有スペースを配置すると、子どもが巣立ったあとは平屋のように生活できます。
また、独立後は子ども部屋を趣味の部屋やセカンドリビングにすることも検討してみてください。
老後の生活を想定したバリアフリー化しやすい設計や、足腰が弱ったあともストレスなく暮らせる動線もおすすめです。

4人家族の間取り実例紹介
4人家族で暮らす家の間取りを考える際は、各部屋や設備の配置が重要です。具体的にどのような間取りを検討できるのか、当社が設計を手がけた家の実例を紹介します。
【3LDK】3台分のビルトインガレージと2階LDKでプライバシーと開放感を両立した住まい


こちらの間取りは、1階にビルトインガレージ、2階にLDKと水回りを配置しました。主寝室は1階にし、子どもの寝室はウォークインクローゼットでリビングと離して配置することで、しっかりとプライバシーを確保しています。
ウォークインクローゼットと洗濯機を置けるパウダールーム、バルコニーを全て2階に配置したので、洗濯の家事動線も効率的です。洗う〜片付けるの流れがまとめて行えるため、洗濯物を持って移動する負担がありません。
【4LDK】愛車と暮らす、ガレージ一体型の広々リビングがある住まい


3台分の車が広々駐車できるビルトインガレージが特徴的な間取りです。この家では、LDK を1階、水回りと家族の寝室を2階に配置し、生活の場を明確にゾーニングしました。
寝室と水回りを2階に集約したことで、洗濯の家事動線を効率化しています。ランドリーは2.7帖のバルコニーに直結しているため、洗い上がったらすぐに洗濯物を干せます。
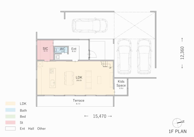
【3LDK】LDKを中心に家族がつながる、動線がスムーズな平屋

こちらの間取りは、LDKを経由して、それぞれの寝室や水回りにアクセスできるよう計画しました。自然と家族が顔を合わせる機会が増えるよう、どこに行くにも共有スペースを通る形にしています。
こうしたLDK中心の間取りは、限りあるスペースを効率的に活用したいときにもおすすめです。廊下をできるだけ減らして、寝室とリビングの広さを最大限確保しました。

4人家族の暮らしを豊かにする空間デザインの建築実例
4人暮らしの理想のイメージが固まらなければ、ぜひ実例も参考にしてみてください。ここでは、当社が手がけた4人暮らしの家を、写真付きで一部ご紹介します。
螺旋階段をアートのように魅せる、美術館のような住まい

フリーダムの注文住宅|CASE780 Isn’t it nice?
螺旋階段がアート作品のように映える4人暮らしの2階建てです。玄関扉から中に入ると、正面に吹き抜けがあり開放感あふれる空間となっています。螺旋階段を採用したので、コンパクトなスペースに階段を設置でき、奥から柔らかく光が差し込む仕上がりに。
写真奥のLDKには、前庭に面した大きな窓から光を取り込むことができ、日中は照明をつけなくても明るい光で満たされるよう設計しました。
階ごとに表情が変わる、光と陰が奏でる住まい

フリーダムの注文住宅|CASE769 othello
こちらは角地に位置する3階建ての4人暮らし住宅です。階ごとに表情の違う「変化に富んだ家に」とテーマを掲げ設計を行いました。
1階は和のテイストを取り込んだ土間玄関と和室のスペースです。玄関は飛び石と白い玉砂利を設置し、日本庭園のようなこだわりのデザインに。上がった先の和室は写真のように障子を設置すると個室として使えるため、客間やおもてなしの場としても利用できます。
黒と白、内と外。二面性が魅せるコントラストの家

フリーダムの注文住宅|CASE763 ソト黒ウチ白
こちらは、外壁は黒、内装は白を基調にデザインしたコントラストを楽しめる家。住み心地だけでなく、おしゃれさにもこだわりたいお客様のご要望を反映しました。
ダイニングキッチンには中庭に面する大きな窓を設置。たっぷりと光を取り込める開放的な空間で食事を楽しめます。
画像奥のリビングは、キッチンと空間をつなげつつ緩やかにゾーニングしました。2階へとつながる吹き抜け階段が、家族の気配を感じさせてくれます。
空間の高低差が生む心地よい距離感、おうち時間を楽しむ家

フリーダムの注文住宅|CASE742 STEP’s
LDKを2階に配置した3階建ての住宅です。
LDKは木材をベースにした温かみのある内装が特徴的。高低差を作って室内を緩やかにゾーニングしつつ、開放感を両立させました。窓には目隠しガラスを採用したため、採光はしっかりと取りつつもプライバシーを確保してくれます。
LDKと3階は吹き抜けでつながっているため、いつでも家族の気配を感じられます。
趣味も子育ても満喫できる、家族の夢を叶えた住まい

フリーダムの注文住宅|CASE728 My Style Home
こちらの家のコンセプトは、家族が安心して暮らせる癒しと夢の住まいです。4人家族でお住まいの2階建て住宅となっています。
LDKは、忙しい家族がのんびりとくつろげるスペースとして設計しました。薪ストーブのあるリビングは、お客様自慢の愛車を眺められるよう、一部をガラス張りにしてあります。
中庭にはお子様のためのキッズプールも用意されており、家の中でも思いっきり遊べる設計に。家族全員の夢の住まいとなりました。

家族のライフスタイルに合わせて理想の間取りづくりをしよう
それぞれの家族の理想の間取りは、「その家でどう暮らすか」によって異なります。家族構成や働き方、将来の変化まで考慮し、最適な間取りを考えてみてください。
うまく整理できないときは、実例を見てみると希望が固まりやすくなります。フリーダムアーキテクツでは、当社に家づくりをご依頼いただいたお客様の建築実例を作品集にしています。無料でプレゼントしていますので、お気軽にお問い合わせください。
◆◆「フリーダムアーキテクツが手掛けたデザイン住宅の作品集を今なら無料でお届けします。」◆◆

4人家族の間取りに関するよくある質問

4人暮らしの間取り設計について、お客様から当社によく寄せられる質問をまとめました。家の購入を検討している方は参考にしてください。
4人家族で3LDKの間取りは可能?
4人家族でも、3LDKの間取りで快適に暮らすことは可能です。
主寝室+子ども部屋2つが基本的な構成になります。部屋が不足しないか心配であれば、リビングの一角をワークスペースや客間として活用することで、柔軟な暮らしができる間取りになります。
また、間仕切りを利用すれば、子どもの成長に合わせてプライベートスペースの追加も可能です。
子ども部屋は何帖くらいが理想?
子ども部屋の一般的な広さは4.5帖〜6帖ほどです。
数値だけ見るとやや狭く感じるかもしれませんが、収納をファミリークローゼットに集約するなど、効率化すれば十分に広さを確保できます。子どもの成長や巣立った後の暮らしを考えて、間仕切りの設置や、反対に壁の撤去をしやすいようにするなど可変性を意識するのがポイントです。子どもが勉強に集中できるよう、採光位置にも注意し、学習環境を意識した設計にしましょう。
4人家族で平屋の間取りは快適?
4人家族で暮らす平屋の特徴は、ワンフロアの構造で家族の距離が近いため、コミュニケーションが取りやすいことです。
また、同じ延床面積の2階建てと比べて平面に広くなるため、寝室と共有スペースを離してプライバシーを確保することも容易です。2階に行く階段がないためバリアフリー設計にも向いていて、長く快適に暮らせる間取りといえます。
建築面積が大きいと家の中央部分がやや採光しにくくなりますが、中庭や勾配天井を取り入れて対策できます。
無料住宅作品集の取り寄せ
4人家族向けの家のの実例を含む、約40の実例写真・間取り・価格をご紹介。資料請求いただいた皆様に、無料でお届けします。

住宅作品集を取り寄せる
注文住宅・デザイナーズハウス
の建築実例を探す
全国で年間約400棟の注文住宅を
設計しているからこそ、事例も豊富
この記事を書いた人

フリーダムアーキテクツ
設計チーム
1995年創業、累計4,000棟以上の住宅設計実績と数々のグッドデザイン賞受賞歴。土地探しから設計・施工までワンストップで対応し、お客様の暮らしに合わせた理想の住まいを実現します。フリーダムマガジンでは、豊富な実績をもとにした後悔しない家づくりのポイントをお届けします。












