
5人家族での家をつくる場合、人数が多い分疑問は尽きません。当社のお客様では、特に間取りや広さがどのくらい必要なのか分からず悩まれる方が多いです。
今回は、5人家族の間取りの決め方を、実際の間取り図と建築実例を交えてご紹介します。ぜひ参考にしてください。
この記事はこんな人におすすめ
- 5人家族に最適な間取りは?
- 5人家族の家の広さは何㎡必要?
- 3LDKの家でも5人家族で暮らせる?
この記事でわかること
- 5人家族に適している間取りは3LDK~5LDK
- 間取りに可変性を持たせるとライフステージの変化に対応できる
- 暮らしやすさのポイントは回遊動線とリビングの設計
無料住宅作品集の取り寄せ
5人家族向けの家の実例を含む、約40の実例写真・間取り・価格をご紹介。資料請求いただいた皆様に、無料でお届けします。

住宅作品集を取り寄せる
目次
5人家族に必要な広さと間取りの目安

人数が多い5人家族では、快適に暮らすために相応のスペースが必要です。では、具体的にどの程度の広さや部屋数が必要なのでしょうか。目安を紹介します。
5人家族の平均的な延床面積とは?
厚生労働省が定める「住生活基本計画」の誘導居住面積水準によると、5人家族が快適に住むために必要な広さは以下の通りです。
| 都市居住型 | 109㎡(約33坪) |
| 一般型 | 143㎡(約43坪) |
一般的には、坪数では33〜43坪程度、間取りなら4LDKや5LDKを選ぶ方が多いです。人数が多い分、LDKは広めの20帖以上に設計すると、家族が快適に過ごせるようになります。
参考:住生活基本計画における居住面積水準|厚生労働省
5人家族に適している間取りは3LDK~5LDK
5人家族に適した間取りは3LDK~5LDKです。主寝室に加えて個室をいくつ用意するかで、全体的な間取りを決めます。
例えば3LDKを選択すると、主寝室プラス2部屋の間取りになります。子どもが2~3人居る家庭なら性別で部屋を分けると良いでしょう。
4LDKなら子ども全員に個室を用意できて、5LDKなら個室の他に客間などの「+α」を追加できます。仮に夫婦のどちらかが在宅ワークであれば、ワークスペースとしての使用も検討してみてください。
大切なのは、ライフスタイルに合った部屋数を明確にすることです。子どもが独立すると住人も減るため、リフォームや間仕切りの設置を想定した、変化に柔軟に対応できる設計がおすすめです。

5人家族の間取りで大切な5つのポイント

実際の間取りを検討する際、必要な設備や部屋数が分からず迷ってしまうかもしれません。5人家族の間取りを決めるときは、以下のポイントを押さえておきましょう。
・+αの部屋を設けるかどうか
・将来を見据えた可変性のある間取り
・ファミリークローゼットで片付けやすく
・回遊動線でストレスのない暮らし
・家族が自然と集まるリビング設計
それぞれ詳しく紹介します。
+αの部屋を設けるかどうか
必要な部屋数を明確にするために、個室の他に+αの部屋が必要か確認します。例えば、書斎や趣味の部屋、客間などです。
リビングの近くに配置すると、見守りのできる子どもの遊び場としても利用できますし、老後の夫婦の寝室としても使い勝手が良くなります。
個室のほかに部屋を作る場合、間取りは少し余裕のある4LDK~5LDKが最適です。
ただし、用途によっては実際は1部屋必要ないかもしれません。例えばワークスペースは個室ではなく、リビングや廊下の一角に配置するご家庭もあります。
将来を見据えた可変性のある間取り
将来を考えて、ライフステージに合わせた間取りにできるよう、可変性を持たせることも大切です。
例えば、子どもが小さいうちは、個室が必要ないケースも多いです。その分共有スペースを多くし、リビングの近くに遊び場や学習スペースを配置すると、見守りのしやすい間取りになります。
子どもが成長したあとは、可動壁やスライドドアで部屋を分割できるようあらかじめ設計しておくと、後から個室を用意するときもスムーズです。子どもが独立した後も部屋を持て余しにくく、快適に暮らせます。
老後の暮らしも考えて部屋の配置や設備のタイプを決めておくと、将来的にバリアフリー住宅にしやすくなります。
ファミリークローゼットで片付けやすく
ファミリークローゼットがあると、家族全員の衣類や持ち物をまとめて管理できます。個室の収納スペースが少ない場合も、ものが散らかりにくい家にできるため、人数の多い家庭にはおすすめの設備です。
ファミリークローゼットを共有スペースや水回りの動線上に配置すると、朝の身支度や洗濯を効率化できます。2~3帖程度のコンパクトなサイズでも、導入すると家事効率や暮らしやすさが向上しますよ。
回遊動線でストレスのない暮らし
なるべく室内に行き止まりをなくし、間取りに回遊性を持たせると、日常生活のちょっとしたストレスを減らせます。
例えばLDKを家の中心に配置し、周辺に玄関や水回りを配置して廊下でつなぐと、自分の行きたい場所に複数箇所からアクセスできるようになります。家族がすれ違いやすく、家事効率もアップするためおすすめです。
子どもの生活という面でも、走り回ってもぶつかってケガをしにくくなるメリットがあります。
家族が自然と集まるリビング設計
5人家族で暮らす家づくりでは、家族がリビングに集まるよう間取りを設計してみてください。自然に交流の生まれるコミュニケーションの場になります。
例えば、一体化したダイニングとリビングは、空間の広さとつながりが感じられます。そのため、自然とキッチンの家族と会話が生まれる空間です。
また、リビング階段や吹き抜けを配置すると、家族の気配を感じられるためリビングと上下階でも交流が生まれます。
リビングを単にテレビを見る場としてではなく、コミュニケーションの中心として位置づけることが大切です。

5人家族におすすめの間取り実例
どのような間取りが良いか悩むときは、実際の間取り図を見てイメージを膨らませるのが効果的です。フリーダムアーキテクツが手がけた、5人家族におすすめの間取り実例を紹介します。
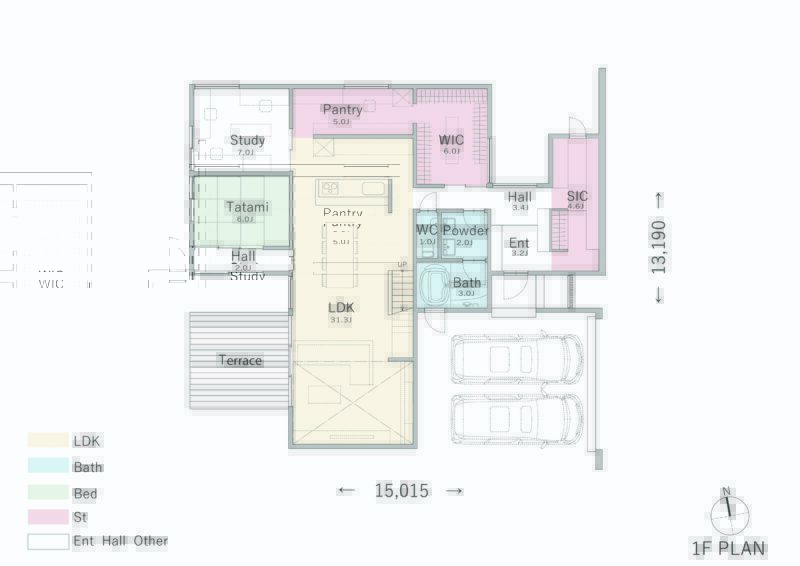
【6LDK+セカンドリビング】大空間LDKとセカンドリビングでゆとりのある間取り


主寝室に個室3つ、LDK横の和室とスタディースペースを備えた計6LDKの2階建て住宅です。1階には家族全員がくつろげる30帖の大型LDKを配置しました。
共通の収納スペースとしてパントリーとウォークインクローゼット、シューズインクローゼットを備えました。持ち物の多い5人暮らしでも余裕をもって収納できます。
2階にはちょっと一息つきたいときに嬉しいセカンドリビングがあります。共有スペースを充実させたゆとりある間取りです。
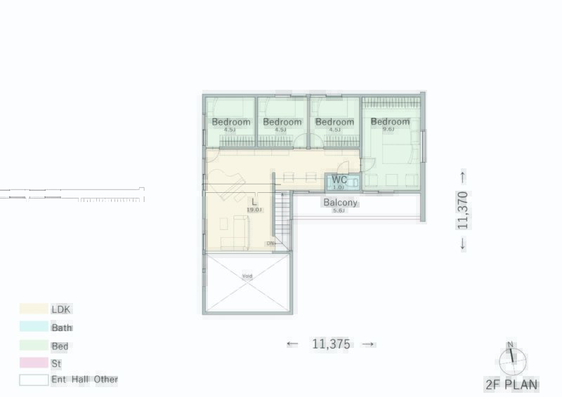
【5LDK】ビルトインガレージと2階LDKで快適に暮らす、収納充実の間取り


主寝室と個室3つ、和室のある5LDKの2階建てです。LDKは2階に配置してあり、1階は個室とビルトインガレージと、しっかりゾーニングされているのが特徴的です。
各個室の収納スペースのほか、広めのシューズインクローゼット、各所に作られた造作の収納スペースなど、収納に力を入れました。エリアごとに用意されているため、どこに何をしまうか分かりやすく、散らかりにくい家になっています。
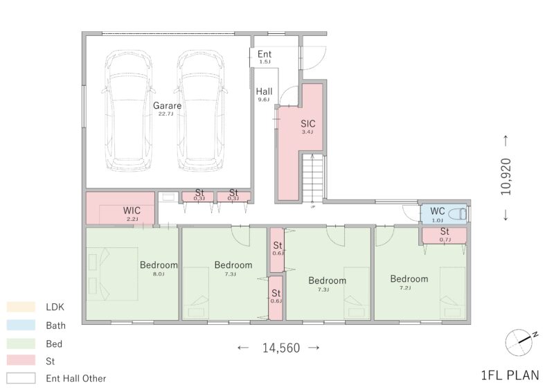
【6LDK】地下ガレージと42帖LDKを備えた、上質な暮らしを叶える間取り



主寝室と個室3つ、さらに2つの部屋がある6LDKの3階建てです。地下1階をビルトインガレージにすることで、建築面積を広く取り、42帖の広々としたLDKを実現しています。
寝室は2階に集められていますが、他にも1階のLDK横とエントランスの奥にも部屋が用意されています。趣味の部屋や子どもの遊び場、老後の寝室など多目的に利用できる配置です。

5人家族の暮らしを豊かにする空間デザインの建築実例
家族全員が快適な家にするには、間取りだけでなくどのようなデザインにするかも大切です。ここでは、フリーダムアーキテクツにお任せいただいた住宅の建築実例を写真付きで紹介します。空間デザインで悩んでいる方は参考にしてください。
LDK・中庭・ガレージが一体となる、奥行きのあるガレージハウス

フリーダムの注文住宅|CASE627 HOUSE . GARAGE HOUSE
住居とビルトインガレージ、中庭から構成されているガレージハウスです。奥行きのある敷地を活かし、住居スペースをガレージの奥側に配置。開放感とプライバシーの確保を両立させました。
中庭に面した大開口と白を基調とした内装により、日中の明るさは抜群。光に包まれてくつろげる空間です。車との暮らしを楽しみながら、快適な住環境を実現した住まいとなりました。
山の気配を取り込む、和の趣漂うロッジライクな家

フリーダムの注文住宅|CASE755 「山際の家(やまぎわのいえ)」
木材を贅沢に使った内装が印象的な家です。「高台の土地」という強みをフル活用するため、リビングは2階に配置しました。中に入ると、自然とバルコニーの向こうに視線が抜けるよう設計を行い、開放的な空間になりました。
ウッドデッキからは、周囲の景色を一望できます。テーブルセットを置けば、山の空気を感じながらお茶や食事を楽しめます。
紺碧の水平線を望む、開放的なテラスをもつ海辺の住まい

フリーダムの注文住宅|CASE733 Sea Side Residence
オーシャンビューが印象的な、リゾートホテルを連想させる住まいです。リビングの開口を海に向け、夕方には紅に染まる海を独占できる贅沢な空間を実現しました。
屋外には広々としたテラスを設置。屋外用家具を置くことで、第二のリビングとして利用できるよう計画してあります。くつろぎの場としての利用はもちろん、ゲストを招いてBBQも楽しめます。
光と陰、素材の調和で“もてなし”をデザインした住まい

フリーダムの注文住宅|CASE657 La scene
白と黒で構成されたモノトーンの内装が印象的な家です。「ゲストをもてなせる家に」というお客様の希望によりデザインにこだわって設計し、高級ホテルのようなたたずまいを実現しています。
LDKは縦に長い空間にし、家具の配置によりゆるやかにゾーニング。キッチンからは奥のリビングまで視線が届くため、小さな子どもの見守りにも安心です。高級感と実用面を両立した住まいになりました。

完全自由設計で理想の暮らしを叶えよう
5人家族の間取りは、通常3LDK~5LDKが一般的です。家族の年齢や性別、ライフステージに合わせて、快適に暮らせる間取りを考えてみましょう。
人数が多い分、5人家族の希望は既製品の住宅では対応しきれないこともあります。理想の暮らしを叶えるのなら、完全自由設計の注文住宅を検討してみてください。
フリーダムアーキテクツでは、現在当社が手がけた建築実例の作品集を無料でプレゼントしています。「間取りは?」「内装は?」と疑問や不安を感じている方は、写真を見てイメージ固めから始めるのもおすすめです。お気軽にお問い合わせください。
◆◆「フリーダムアーキテクツが手掛けたデザイン住宅の作品集を今なら無料でお届けします。」◆◆

5人家族の間取りに関するよくある質問

当社フリーダムアーキテクツに、お客様から寄せられる5人暮らしの間取りに関する質問をご紹介します。住宅の購入を検討されている方はぜひ参考にしてください。
5人家族で何LDKがちょうどいい?
5人家族の間取りとして一般的なのは、3LDK~5LDKです。この広さであれば、主寝室に加えて子どもに個室を与えることもできます。
仮に夫婦と子ども3人の家族構成であれば、子ども部屋を3室確保するなら4LDK以上の部屋数が必要です。
ただし、子どもの性別や年齢によっては、個室が必要ないこともあります。同性の兄弟なら、幼いうちは同じ部屋にして、成長後に間仕切り壁を設置するのも選択肢の一つです。
ライフステージの変化を見越し、可変的な間取りにしておくと、部屋が追加で必要になった際もスムーズに対応できます。
5人家族の平均的な間取りは?
5人家族で暮らす家の延床面積の目安は、おおむね33坪~43坪程度(約109~143㎡)です。
LDKを20帖以上、延床面積のうち12~15%を収納にすると、ゆとりがあり散らかりにくい家になります。
間取りの傾向や要素としては、「リビングが中心の家」「回遊性のある動線」「ファミリークローゼット」などの人気が高くなっています。広さと機能性も意識しつつ、自分や家族に合った間取りを検討してみてください。
5人家族で3LDKの間取りは可能?
工夫次第では5人暮らしで3LDKの間取りにすることも可能ですが、個室が十分にある間取りと比べて、プライベートな空間は不足しやすくなります。
部屋数が足りない場合、可動式の間仕切りやロフトを設置し、空間を多目的に無駄なく活用できる設計が有効です。
小さいうちは部屋を共同で使い、成長したら間仕切りを追加するなど、可変的な間取りもおすすめです。
無料住宅作品集の取り寄せ
5人家族向けの家の実例を含む、約40の実例写真・間取り・価格をご紹介。資料請求いただいた皆様に、無料でお届けします。

住宅作品集を取り寄せる
注文住宅・デザイナーズハウス
の建築実例を探す
全国で年間約400棟の注文住宅を
設計しているからこそ、事例も豊富
この記事を書いた人

フリーダムアーキテクツ
設計チーム
1995年創業、累計4,000棟以上の住宅設計実績と数々のグッドデザイン賞受賞歴。土地探しから設計・施工までワンストップで対応し、お客様の暮らしに合わせた理想の住まいを実現します。フリーダムマガジンでは、豊富な実績をもとにした後悔しない家づくりのポイントをお届けします。












