
CASE698 「景の家」
ビルトインガレージがある間取りの家は狭小地でもガレージスペースを確保できる上に、車の汚れや盗難のリスクを減らせる家と言えます。そこで、この記事ではビルトインガレージの間取りの家を建てるポイントや建築実例について紹介します。
この記事はこんな人におすすめ
- ビルトインガレージのおしゃれな間取り例を知りたい方
- ビルトインガレージのある家を建てる際のポイントを把握したい方
- ビルトインガレージのある家の購入を検討している方
この記事でわかること
- ビルトインガレージは実用性があるだけでなく、住まい全体の印象や暮らしの質にも関わるため、間取りが重要になること
- ビルトインガレージの間取りのポイントは収納や動線など将来の暮らしも加味して検討すること
- ビルトインガレージの注文住宅を建てる際は、ビルトインガレージの実績が多い業者に依頼すること
無料住宅作品集の取り寄せ
ビルトインガレージの実例を含む、約40の実例写真・間取り・価格をご紹介。資料請求いただいた皆様に、無料でお届けします。

住宅作品集を取り寄せる
目次
注文住宅でつくるビルトインガレージの間取り

ビルトインガレージの間取りを具体的にイメージするには、真似しやすい実例を数多く見ることが役立ちます。ここでは、参考になる9つの間取りをご紹介します。
間取り①開放的な中庭とバルコニーのあるビルトインガレージの家


約8坪あるガレージはコンパクトカーなら2台分、普通車なら1台を収納できる広さです。ガレージのある1階には寝室が3室とワークスペースが1室、吹き抜けのある中庭を配しています。ワークスペースにはガレージから直接アクセス可能です。
2階はLDKと水回りがまとめられています。LDKにバルコニーを隣接させることで洗濯物を出し入れする際の動線を短縮できました。LDKからバルコニーや中庭の吹き抜けに視線が抜けるため、開放感があります。
間取り②床面積を有効活用したビルトインガレージの家


車1台分を収納できるビルトインガレージの間取りです。ガレージはワゴン車やミニバンなども置けますが、普通車なら十分なゆとりを確保できます。ガレージのある1階の間取りは在宅勤務に対応した書斎と2つの寝室、シューズインクローゼットです。
2階はLDKと水回りがひとつの空間にまとめられている他、寝室が1つあります。限られたスペースの中で床面積を上手に活かすために、あえて廊下のない間取りを提案しました。
間取り③収納が充実しているビルトインガレージの家


ガレージの広さは車1台分に相当し、ワゴン車やミニバンなども置くことができます。普通車でもゆとりがあり、将来の車の買い替えにも対応できる広さです。ガレージのある1階には2つの寝室を配置しており、収納スペースも充実しています。
2階はLDKと水回りをまとめ、生活や家事の動線の効率化を図りました。2階の寝室は最低限の広さですが、化粧や在宅勤務などに使える備え付けのデスクを設置することでゆったり使えます。
間取り④ゆとりある暮らしが可能なビルトインガレージの家


ガレージがワゴン車1台分の広さがあるビルトインガレージの間取りです。将来の車の買い替えにも対応できます。1階のガレージと寝室を隣接させているものの、間に収納スペースを設けて騒音対策を施しました。
2階の間取りはLDKと水回りをワンフロアに集め、寝室を1つ配置しています。間取りをコンパクトにまとめつつ、LDKは17帖、寝室は約6帖、水回りは通常よりも広めの約2.5帖で、ゆとりを確保しました。
間取り⑤日差しをたくさん浴びられるビルトインガレージの家


1階はガレージ以外に、人が集まるLDKを中心とした間取りです。ガレージは、軽自動車2台分は置けないものの、車1台置いてもゆとりがあります。北道路に面した土地のため、日当たりのいい南側にLDKを配置し、テラスや庭を横に配置したことで、明るく開放的な空間になりました。
パントリーやシューズインクローゼットなどの収納も確保しています。手洗い場とトイレもあり、帰宅後すぐに手を洗える動線です。2階は寝室と水回りをまとめたプライベート空間となっています。
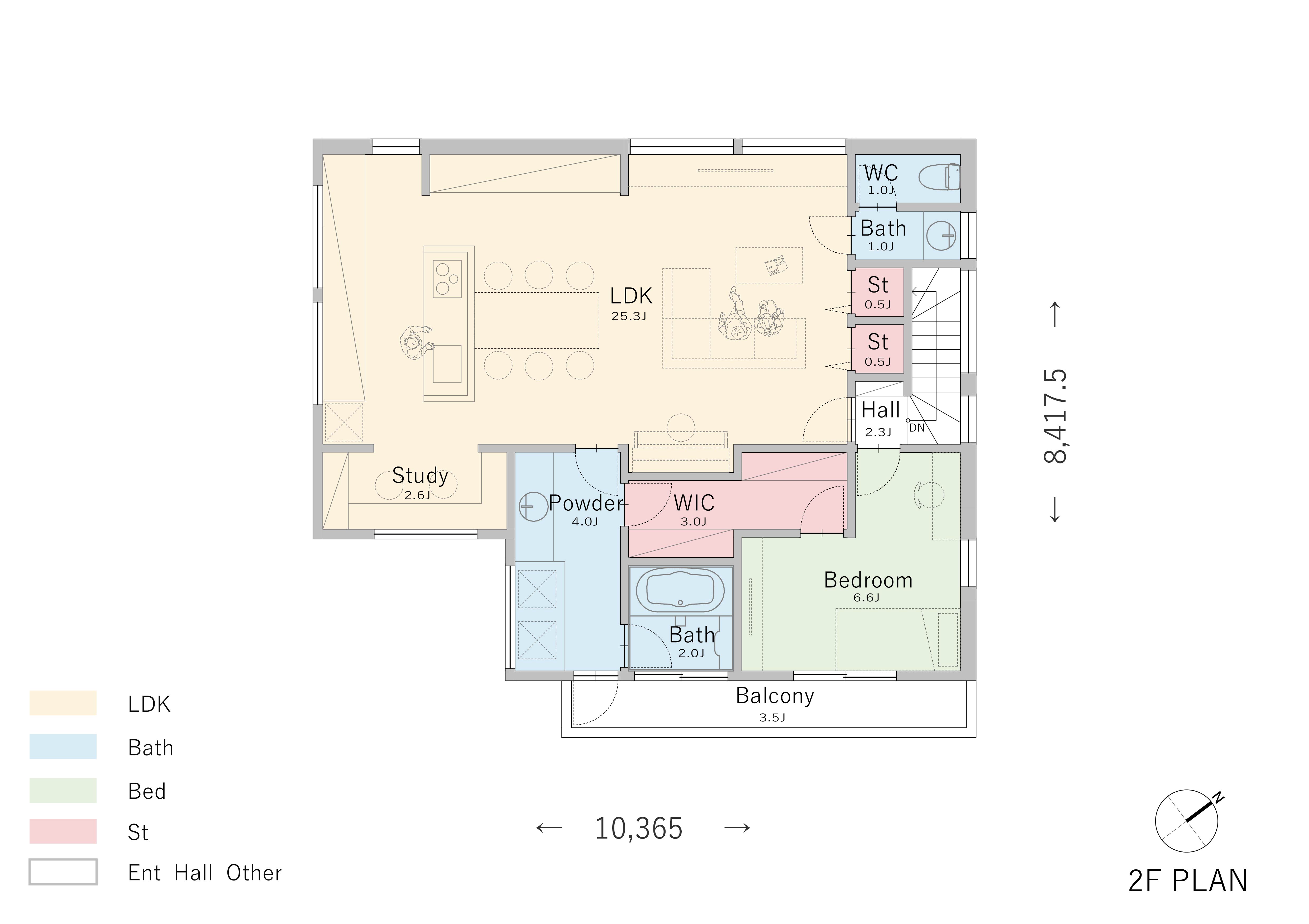
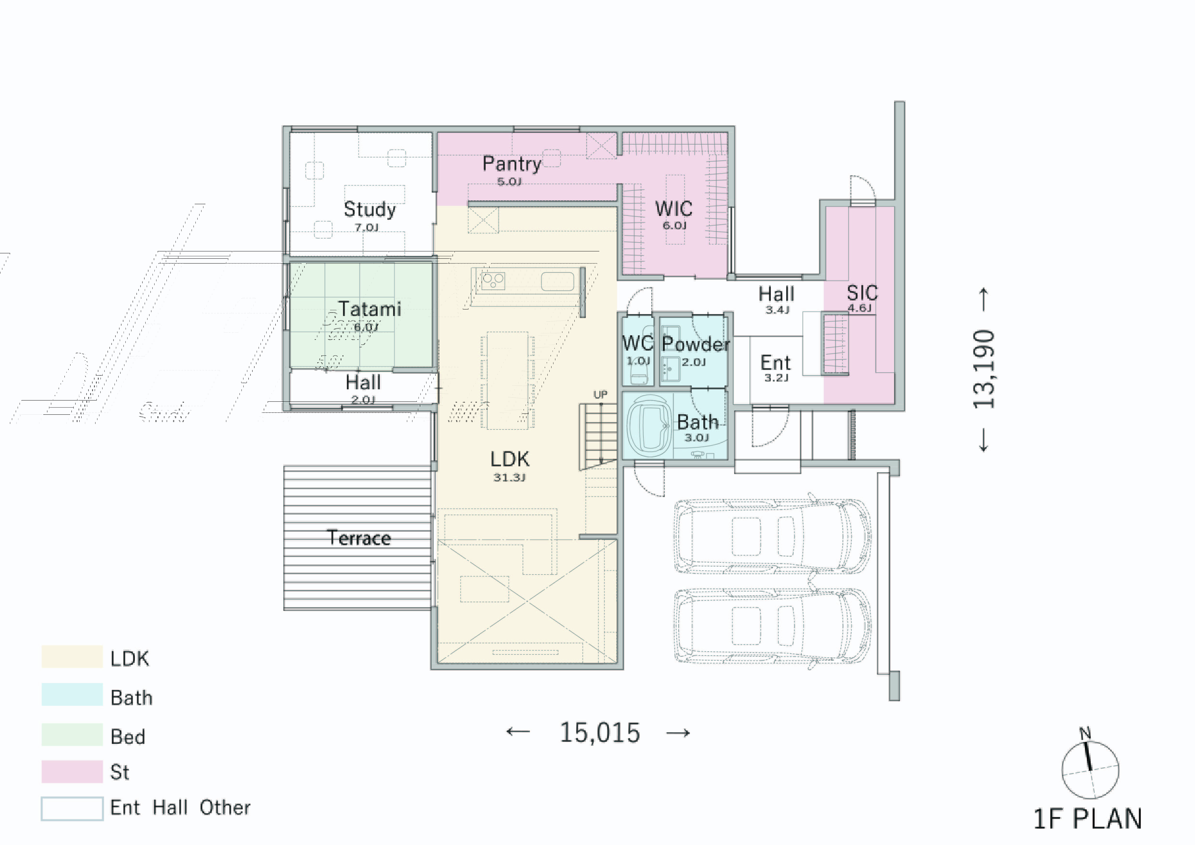
間取り⑥約31帖の広々LDKのあるビルトインガレージの家

ワゴン車2台分の広さがあるビルトインガレージの家です。1階には約31帖のLDKと充実した収納スペースがあります。例えば、シューズインクローゼットやウォークインクローゼット、パントリーです。また、和室やスタディルームも確保しています。
2階の間取りはピアノや読書を楽しめるセカンドリビングと4つの寝室です。1階のLDKに吹き抜けを設け、家族とコミュニケーションをとりやすい間取りを提案しました。
間取り⑦家事動線の良いビルトインガレージの家


ワゴン車3台分の広さを確保したビルトインガレージの家です。1階はガレージの横に寝室2つとトイレがあります。2階は約25帖の大きなLDKと水回りをまとめており、ウォークインクローゼットのある寝室も1部屋確保しました。
LDKの間口は広く、アイランドキッチンを採用したことで左右のスペースにゆとりをもたせています。ウォークインクローゼット横に水回りを配置したことで、家事効率の良い間取りになりました。
間取り⑧大胆に空間を確保したビルトインガレージの家


大胆にもガレージに約22帖の広さを確保したビルトインガレージの間取りです。ガレージにはワゴン車2台分の広さがあり、1階には4つの寝室とトイレを設けました。トイレは2階にもあるため、朝の身支度で混雑するのを避けられます。
2階には約33帖のLDKと和室、水回りを配置しました。LDKの横には18帖のバルコニーもあり、1階に降りなくても洗濯物を干せます。LDKと水回りをワンフロアにまとめることで家事動線の効率化を図ることができました。
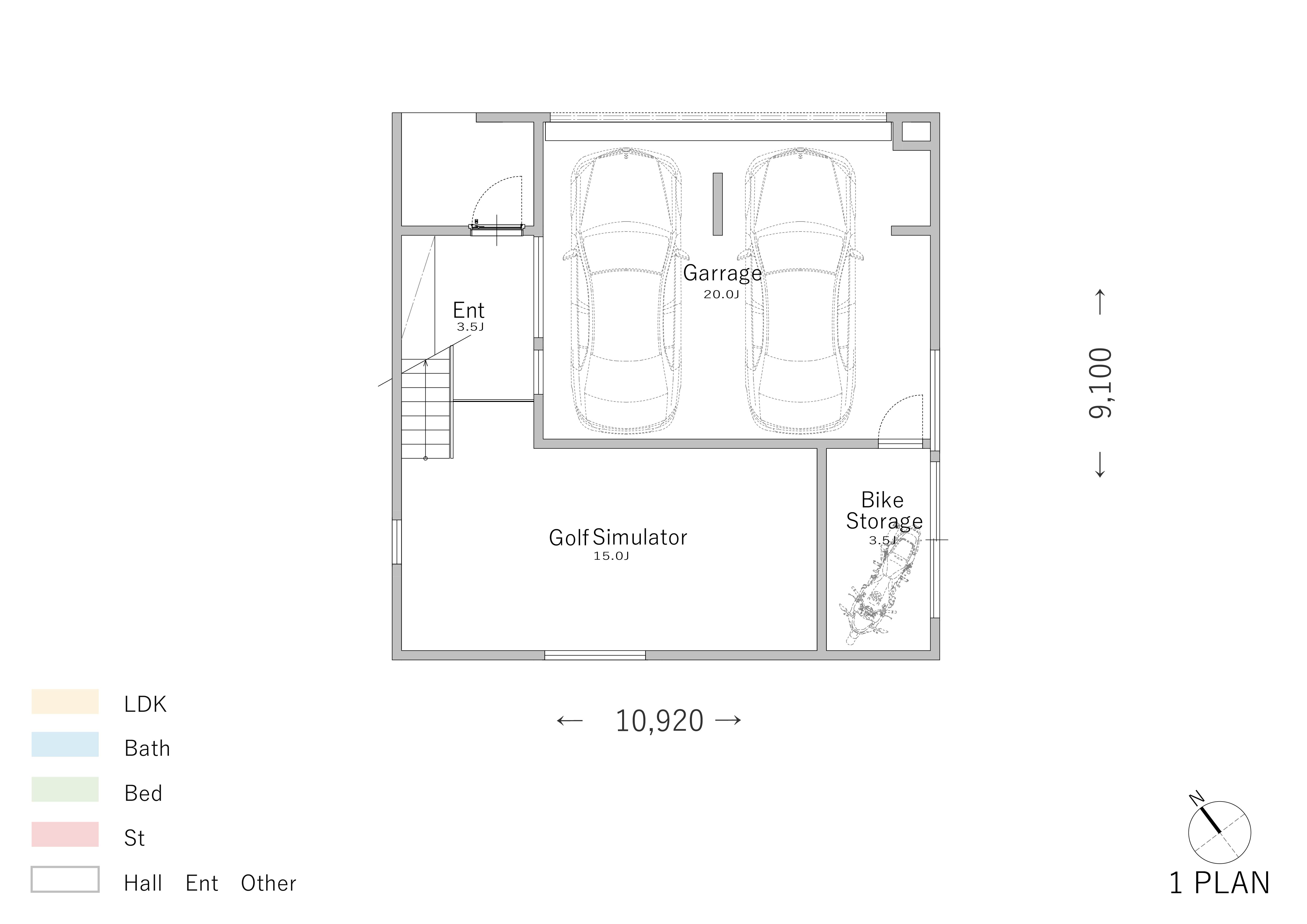
間取り⑨ゴルフを楽しめるビルトインガレージの家


大きな車を2台置いてもゆとりのある20帖のガレージがある家の間取りです。1階は車用のガレージの他にも、バイク用のガレージのスペースを確保しました。また、家庭用のゴルフシミュレーター専用の個室もあり、家にいながらゴルフを楽しめます。
一方、2階は19帖のLDKやテラス、ウォークインクローゼット付きの寝室、水回りなど、居住スペースを集めた間取りになりました。書斎もあり、在宅勤務でも仕事に集中できる環境が整っています。

おしゃれなビルトインガレージの建築実例
ガレージは実用性が重視されがちですが、家の顔である外観の一部でもあり、住まい全体の印象や暮らしの質にも大きく影響します。デザイン性にもこだわったビルトインガレージ実例を5つ紹介します。実例①おうち時間が楽しいビルトインガレージの家

CASE739 like living in the sky
白を基調としたシンプルな外観に、ベージュのシャッターが上品さを添えるビルトインガレージの家です。車を3台とめられるガレージは、収納や作業スペースも備え、ただの駐車場ではなく、住まいの一部として多目的に使える空間となっています。
ガレージの正面には書斎があり、愛車を眺めながら仕事に打ち込むことができる贅沢な間取り。ロフト付きの書斎は視線が抜けて開放感があり、ガレージと暮らしが自然につながっています。
実例②シンプルだけど温かみのあるビルトインガレージの家

CASE645 フレームハウス
こちらは、白いキューブ型のシンプルな外観が印象的なビルトインガレージの家。白を基調としながら、木目の外壁をアクセントに取り入れることで、無機質になりすぎず、温かみのある印象に仕上がっています。
ガレージから玄関ポーチへ直接アクセスできる動線が確保されており、日常の利便性も高い設計です。室内は木材を中心としたインテリアで統一されており、落ち着きと快適さが感じられる空間に。洗練された外観と自然素材のぬくもりを活かした内装が調和した、心地よく暮らせる住まいです。
実例③内と外の空間が一体となったビルトインガレージの家

CASE601 ドマノイエ
青い外壁に囲まれたこちらの住宅は、無骨なデザインが愛車と調和するビルトインガレージを備えています。ガレージ内には扉を設けており、そこから直接中庭や玄関へとつながる動線が確保されています。
中庭は開放感がありながらも外壁に囲まれているため、プライバシー性も高く、安心して過ごせる空間です。室内と中庭、玄関を土間やウッドデッキでゆるやかにつなぐ構造により、内と外の空間が一体となった快適な暮らしを実現しています。
実例④シャープで洗練されたビルトインガレージの家

CASE556 Two sides house
こちらは、白とグレーのツートーンで構成されたシャープな外観が印象的なビルトインガレージの家。グレーの外壁側に組み込まれたガレージは、シャッターの色が外壁に自然と溶け込み、統一感を演出しています。
室内はナチュラルな木目を基調とした温かみのあるインテリアで、外観とのコントラストが心地よい住空間に。ガレージから直接家に入れる設計や、小窓による換気対策など、日々の使いやすさにも配慮された実用性の高い間取りです。
実例⑤訪れる人を魅了するビルトインガレージの家

CASE534 【Mod】el
こちらは白を基調に、木と鉄の素材感を組み合わせたファサードが印象的なビルトインガレージの家です。車2台がゆとりを持ってとめられる広々としたガレージの上には、大きなバルコニーが設けられ、外観の美しさと機能性を兼ね備えています。
室内はモダンエレガンスなテイストでまとめられ、ヘリンボーンのフローリングや高天井のリビングが洗練された雰囲気を演出。リビングとつながるバルコニーは、開放的で居心地の良い空間となっており、訪れた人との団らんやもてなしの場としても魅力的です。

ビルトインガレージの家を建てる際のポイント

ここまで、ビルトインガレージのメリット・デメリットの両面を説明しました。ここからは、それらを踏まえた家づくりのポイントを5つに分けて解説します。
・快適な動線を考える
・将来のことも検討しておく
・騒音やにおい対策をする
・収納スペースを確保する
・ビルトインガレージの実績のある会社に依頼する
ポイント①快適な動線を考える
ビルトインガレージの間取りを考える際は、生活動線と家事動線を意識することが重要です。例えば、ガレージからキッチンや玄関にすぐ入れるような設計にすると、買い物帰りの荷物運びが楽になりますし、雨の日でも濡れずに移動できて便利です。
車を眺めながら生活したい場合は、窓一枚を隔ててリビングや自分の部屋から眺められる間取りにしてみましょう。この場合も、室内とつなぐ勝手口を設けておくと、趣味の楽しみや防犯性を確保しつつ、利便性を高められます。
ポイント②将来のことも検討しておく
ガレージは今の生活だけでなく、将来を見越して計画することが大切です。今は1台で足りていても、家族が増えると2台、3台と必要になる場合も珍しくありません。
また、バリアフリーを意識すると、高齢になっても安心です。例えば、ガレージから玄関や勝手口までの段差をなくし、スロープを設けると移動が楽になります。通路の幅は、車いすや介助者が通れるよう、90cm以上にするのが望ましいとされています。
ポイント③騒音やにおい対策をする
ビルトインガレージのシャッター音は思いのほか響きやすく、早朝や深夜に家族や近隣住人の迷惑になるケースがあるため、静音性の高いシャッターを選ぶとよいでしょう。エンジン音に対しては、防音性の高い壁材やドアを使うのが効果的です。
におい対策としては、小窓や換気扇の設置が挙げられます。特に寒い季節に暖機運転を行うと、換気不足によって室内ににおいが流れ込むおそれがあるため、十分な換気性能が求められます。
ポイント④収納スペースを確保する
ビルトインガレージは、単に車を置くだけでなく、多目的な収納スペースとして活用することで、使いやすさがぐっと高まります。
例えば、季節用品や大型の道具は屋内に置きにくいため、ガレージでの収納が適しています。ゴルフバッグやキャンプ用品など、外で使う道具の収納にもぴったりです。雨風を防げるため、自転車も傷みにくくなります。
ポイント⑤ビルトインガレージの実績のある会社に依頼する
ビルトインガレージの家を建てる際は、実績のある会社に依頼することが重要です。ビルトインガレージは、通常の住宅よりも設計に高度な配慮が必要になります。
特にガレージの断熱性(外気温の影響を受けやすい)や、耐震性(柱や壁が減ることで構造が弱くなる可能性)といった構造面の工夫が求められます。これらは設計経験がない会社では見落とされがちで、後々のトラブルにもつながるおそれがあります。
快適なビルトインガレージの間取りを計画しよう!
ビルトインガレージの間取りは、工夫次第で住まいの快適性や利便性を大きく高めることができます。車を収めるだけでなく、生活動線や外観デザインとの調和、中庭や書斎とのつながりなど、空間の使い方によって暮らしの質を向上させられる点も魅力です。
フリーダムアーキテクツでは、これまで数多くのビルトインガレージの家を設計してきた豊富な実績があり、ご家族の要望やライフスタイル、将来の変化までを見据えた最適な間取りをご提案しています。土地探しの段階からサポートが可能なため、理想の住まいづくりを安心して進められます。
理想の暮らしをかたちにする第一歩として、資料請求から始めてみませんか。
◆◆「フリーダムアーキテクツが手掛けたデザイン住宅の作品集を今なら無料でお届けします。」◆◆

ビルトインガレージの間取りに関するよくある質問

ビルトインガレージの間取りを検討し始めると、「費用はどれくらい?」「固定資産税はかかる?」「インナーガレージとの違いは?」など、さまざまな疑問が浮かんでくるものです。ここでは、そうしたよくある質問を取り上げて解説します。
ビルトインガレージの総額はいくらですか?
住宅金融支援機構が発表した「2024年度 フラット35利用者調査」のデータによると、注文住宅の建築費は坪単価110万円です。しかし、間口の広いガレージハウスは強度を高める構造が必要であるため、建築費はやや高くなる傾向があります。
仮に30坪のビルトインガレージの家を建てる場合、30坪×110万円=3,330万円ですが、実際はこの金額よりも高くなると考えておくと良いでしょう。さらに、建築費以外にも附帯工事費や諸費用がかかります。
附帯工事費とは、地盤改良、外構工事、水道・ガスの引き込みなどにかかる費用です。また、諸費用は登記費用、火災保険料、住宅ローンの手数料など、手続きにかかる費用を指します。
一般的に、附帯工事費は総費用の約20%、諸費用は約10%といわれているため、これらの費用も見込んだうえで予算を立てることが大切です。
出典:住宅金融支援機構「2024年度 フラット35利用者調査」
ビルトインガレージは固定資産税の対象になりますか?
ビルトインガレージは、固定資産税の課税対象になります。延床面積の5分の1までを除外できる「容積率の緩和措置」があるため、固定資産税がかからないと勘違いしやすいですが、そうではありません。
固定資産税は、下記3つの条件を満たす建物に対して課税されます。
・土地への定着性(基礎などで土地にしっかり固定されている)
・外気分断性(壁や屋根で外気を遮断している)
・用途性(居住や保管など、一定の目的に応じた使用が可能な状態である)
ビルトインガレージは、これらの条件をすべて満たすため、固定資産税が発生します。法律で定められた標準税率(1.4%)を基準に、各市区町村が条例で定めた税率に基づく固定資産税がかかります。
そのため、固定資産税を節約したい場合は、カーポートのように壁や屋根で囲まれていない構造を検討するのも一案です。また、基礎がなく、杭などで固定されていない簡易なプレハブ型ガレージも、「土地への定着性」がないとみなされ、課税対象外になる可能性があります。
ビルトインガレージとインナーガレージの違いは何ですか?
ビルトインガレージとインナーガレージは、どちらも住宅に組み込まれた駐車スペースを指し、実質的な違いはありません。呼び方が異なるために別物だと誤解されやすいですが、設計・構造・用途はほぼ同じです。業界や企業によって使い分けているだけで、建築基準や法的な扱いにも差はありません。
関連記事:ビルトインガレージのデメリットは?新築時に後悔しないための対策や建築実例も紹介
無料住宅作品集の取り寄せ
ビルトインガレージの実例を含む、約40の実例写真・間取り・価格をご紹介。資料請求いただいた皆様に、無料でお届けします。

住宅作品集を取り寄せる
注文住宅・デザイナーズハウス
の建築実例を探す
全国で年間約400棟の注文住宅を
設計しているからこそ、事例も豊富
この記事を書いた人

フリーダムアーキテクツ
設計チーム
1995年創業、累計4,000棟以上の住宅設計実績と数々のグッドデザイン賞受賞歴。土地探しから設計・施工までワンストップで対応し、お客様の暮らしに合わせた理想の住まいを実現します。フリーダムマガジンでは、豊富な実績をもとにした後悔しない家づくりのポイントをお届けします。












