
CASE736 アンモナイト
中庭のある家は建物や壁で囲むため、プライバシー性の確保や防犯性の向上を目指せる家と言えます。そこで、この記事では中庭のある家を建てたいと検討している方に向け、中庭のある家の建築実例や間取り設計時のポイントについて詳しく解説します。
この記事はこんな人におすすめ
- 中庭のある家は光や風を確保できる?採光や通風性の良い家を求めている方
- 中庭を子どもやペットの遊び場にしたいけど平屋でもスペースを確保できる?と不安な方
- 中庭の排水処理や虫対策は大丈夫?メンテナンスのしやすい家づくりを目指している方
この記事でわかること
- 中庭のある家のメリットは採光や風通しを確保できる点で、デメリットは土地の広さによって居住スペースが限られてしまうこと
- 中庭のある家づくりのポイントは効率的な間取り設計とメンテナンスがしやすいこと
無料住宅作品集の取り寄せ
中庭のある家の実例を含む、約40の実例写真・間取り・価格をご紹介。資料請求いただいた皆様に、無料でお届けします。

住宅作品集を取り寄せる
目次
中庭のある家とは
中庭とは、建物の内部に設けられる屋根のない空間のことです。建物や壁に囲まれていたり、特定の方向だけ開放されていたりするなど、建物の構造によって中庭の形状は変わります。
例えば、建物がカタカナの「コ」の形状になっている場合、建物が存在しない1方向に壁を設置すれば、建物の中心部を中庭として活用できるようになります。
中庭のある家を建てると、屋外につながる開放感を演出しつつ、プライベート空間をつくることが可能です。

中庭のある家の3つの形状
中庭のある家の形状は大きく分けると、以下のような3つのタイプがあります。
・コの字
・ロの字
・L字
それぞれに強みや注意点があるので押さえておきましょう。
コの字
コの字型に設計された建物の中心部に中庭を設けているタイプです。中庭の3方向は建物によって囲まれているので、外からの視線を遮りやすく、プライベート空間をしっかり確保できます。
上記に対して中庭の1方向はオープンになっているため、中庭そのものに抜け感があり、適度な開放感を演出していることも特徴です。日当たりや風通しも良く、快適に過ごせます。
オープンになっている方向にフェンスや植栽を設置すれば、開放感を維持しながらプライバシー性の向上を図ることが可能です。
関連記事:平屋をコの字型にするメリット・デメリットとは?間取り例や建築実例を紹介
ロの字
建物をロの字型に設計しつつ、中心部に中庭を設けているタイプです。中庭の4方向が建物に囲まれている性質上、外からの視線をほぼ100%シャットアウトできるので、中庭が家族だけの完全なプライベート空間になります。
また、建物の内側がすべて中庭に面しているため、各部屋から庭を眺めたり、庭を通って他の部屋に行き来したりすることが可能です。
一方、建物で中庭を内包できるだけの広い敷地が求められること、中庭の排水処理が難しいことに注意しなければなりません。
L字
L字型に設計された建物の内側に中庭を設けているタイプです。中庭の2方向しか建物が接していないので、前述のコの字・ロの字と比べて開放感があり、よりダイナミックに屋外とつながっています。
中庭と接する部分が少ないため、採光性や通風性に優れていること、建築コストを抑えやすいことも強みです。それほど広い敷地は必要としないので、都市部でも採用しやすいと言えるでしょう。
一方、他のタイプよりオープンな間取りなので、プライバシーは確保しにくくなります。

中庭のある家のメリット

CASE661 環(めぐる)いえ
中庭を設けることで、以下のように多くのメリットが発生します。
・光や風を採り込める
・自然とつながることができる
・プライバシーを確保できる
・防犯性を高められる
・子どもやペットの遊び場になる
・二世帯住宅の交流の場にもなる
・多様な使い方ができる
各メリットの詳細もご確認ください。
光や風を採り込める
中庭のある家は全体的に日当たりと風通しが良いため、どの部屋でも快適に過ごしやすい住まいです。
一般的な間取りの場合、南側に大きな窓が集中しやすいので、北側の部屋はどうしても暗くなりがちで、風も通りにくい傾向があります。それに対して中庭のある家は、方角に関係なく開口部を多く設置できるため、北側の部屋でも中庭に面した窓から光や風を採り込みやすいという特徴があります。
また、通風性に優れた家は湿気がこもりにくいので、結露やカビが発生しにくいというメリットもあります。
自然とつながることができる
中庭を設けることで、屋外に面する部屋が増えます。中庭には植栽や観葉植物を好きなように設置できるため、室内にいても自然を身近に感じやすくなることがメリットです。
中庭を通じて自然とのつながりを深めると、より穏やかでリラックスした雰囲気の居住環境を実現できるので、日々の疲れやストレスも解消しやすくなります。ビルやマンションが立ち並ぶ都市部に家を建てたとしても、自然との一体感を堪能できるでしょう。
プライバシーを確保できる
中庭は敷地外とつながっていない独立した空間なので、プライバシーを確保しやすいこともメリットとなります。特にロの字型の建物は中庭の4方向を囲うため、外からの視線が入らない完全なプライベート空間を実現可能です。
屋外で過ごしているような開放感を堪能しながら、他者の視線を気にせずのびのびと暮らすことができます。
ただし、家の形状がL字の場合、中庭の2方向がオープンになっているため、外からの視線を遮る空間というには不十分です。目隠し用のフェンスを設置したり、窓より高さがある植栽を植えたりするなど、エクステリアを工夫する必要があります。
防犯性を高められる
中庭は建物に囲まれている性質上、外からの視線を制限できるだけではなく、物理的な侵入を防ぎやすいというメリットがあります。「換気のために窓を開けたいけど、覗きや不法侵入が怖い」といった人におすすめです。
中庭を設置すれば、防犯性が高まるだけではなく、より換気しやすくなります。特にロの字型の建物を選んだ場合、中庭に面する窓を開けっ放しにできるため、換気効率の向上が見込めるでしょう。
また、不審者に在宅・不在をチェックされたり、洗濯物を干す際に外から見られたりするリスクもなくなるので、トラブルに巻き込まれにくくなります。
子どもやペットの遊び場になる
中庭は屋外に設けるプライベート空間なので、子どもやペットの遊び場に適しています。建物がロの字型であれば、目を離した隙に子どもやペットが敷地外へ出てしまうこともないため、安心・安全な遊び場です。
また、キッチンやリビングから中庭が見えるような間取りを採用すれば、家事に取り組みながら中庭の様子を確認することも可能です。家事や育児の負担を軽減しつつ、騒音などのトラブルを未然に防ぎやすくなります。
二世帯住宅の交流の場にもなる
二世帯住宅に中庭があると、お互いの距離感を適度に保ちつつ、自由に行き来できる空間を共有できます。何かあった際にすぐ様子を見に行ったり、必要な物を届けたりできるため、近すぎず遠すぎない理想的な関係を築けることがメリットです。
また、中庭を共有することで、子どもと祖父母が交流しやすくなります。子どもは安全な中庭を通って親世帯の家へ遊びに行けるため、両親も祖父母も安心できるでしょう。
多様な使い方ができる
上記以外にも中庭は多様な目的に合わせて活用できるため、自分らしいライフスタイルの実現や家族のニーズを充足するにあたって有用です。
例えば、親戚や友人を呼んでBBQを開催したり、DIYやガーデニングのスペースを設けたりするなど、幅広い使い方があります。敷地外に接していないため、隣家の住人や通行人に迷惑がかかりにくいこともメリットです。
中庭のある家は開けた外庭がある家より自由度が高く、フレキシブルに活用できるでしょう。

中庭のある家のデメリット

CASE751 Contarst
中庭のある家は、以下のようなデメリットが発生します。
・居住スペースが制限される
・室内の移動距離が長くなりやすい
・建築コストが高くなりやすい
・メンテナンス費用がかかる
中庭のメリットだけではなく、デメリットも併せて把握しておきましょう。
居住スペースが制限される
中庭を設置するためには、中庭に充てたスペースの分だけ居住スペースを削る必要があります。敷地に余裕があるなら居住スペースをしっかり確保できますが、敷地面積が限られている場合、中庭の存在によって住宅の快適性が損なわれてしまうかもしれません。
中庭を設ける場合、家族全員が快適に暮らせるだけの広さと部屋数を確保することが最優先事項です。
室内の移動距離が長くなりやすい
中庭が建物の中心部にある場合、室内の移動距離が長くなりやすいため、あらかじめ動線を考慮しなければなりません。
例えば、キッチンとランドリールームの位置が中庭を挟んで離れていると、家事をこなす際の動線(移動距離)が伸びてしまいます。結果的に家事の負担が増えて、作業効率も悪化してしまうため、疲労やストレスにつながるでしょう。
建築コストが高くなりやすい
中庭を設ける場合、庭に面する壁が増えて外壁の面積が広くなるので、その分だけ材料費や工事費もアップする可能性があります。建物の形状が複雑になると、構造の強度も高めなければならないため、さらに建築コストは増大しがちです。
また、中庭を単に自然とつながる空間と考えず、各部屋をつなぐ通路や家族が集まるアウトドアリビングとして活用したい場合、外構・屋外電源・屋外照明・給排水設備などの工事も必要となります。当然ながら建築コストは工事の分だけアップするため、あらかじめ注意しましょう。
自己資金や住宅ローンの返済分を考慮したうえで、無理のない予算で実現できる建築プランを立てることが大切です。
メンテナンス費用がかかる
戸建住宅の場合、10~15年ごとに外壁の塗装工事や防水工事といったメンテナンスが必要です。中庭のある家は外壁面が多いうえ、建物自体の形状が複雑になっているので、メンテナンス費用がかかりやすい傾向にあります。
また、中庭のある家は窓が多いため、窓のお手入れも欠かせません。しかし、2階部分など高所に設けた窓は作業が難しいので、状況次第で業者に依頼しなければならず、さらにメンテナンス費用が高くつく可能性もあります。

中庭のある家のおしゃれな建築実例11選
ここまで解説した内容を踏まえつつ、フリーダムアーキテクツが手掛けた中庭のある家のおしゃれな建築実例を紹介します。中庭のイメージを膨らませるためにも、ぜひ参考にしてください。
リビングのどこにいても光を感じられる中庭のある家

CASE759 陽光照らすイエ
プライバシーを確保しつつ、光をしっかり採り込めるよう設計された中庭のある家です。自然光を癒しの空間の主役に据えるため、室内の色調を白・黒・木目で統一しています。
LDKは中庭に面する大開口窓を設置しているうえ、中庭とフラットにつながっているため、空間の広がりを感じやすいデザインです。階段下に窓を設けているので、リビングのあらゆる場所で光を感じることができます。
また、中庭の植栽をライトアップすることで、夜間でも緑を楽しめます。
中庭と縁側が暮らしに彩りを添える家

CASE757 トキノエンガワ
「エンガワ」で内部空間と外部空間をつなぐことにより、家族の暮らしに彩りをもたらしている家です。縁側に面した窓を玄関正面に設けることで、より開放的な雰囲気を演出しています。
玄関から続く廊下にも大開口FIX窓を設置しているため、廊下から縁側へのつながりが感じられる間取りです。

CASE757 トキノエンガワ
LDKも中庭を一望できるよう設計されており、屋外と自然につながっています。さらに、リビング部分のみ吹き抜けを取り入れているため、高さのメリハリと開放感を演出していることも特徴です。
外からの視線を緩やかに遮る中庭のある家

CASE756 utsuwa
建物の中心に吹き抜けを設けつつ、それを囲むように前庭・中庭・後庭を設置している家です。中庭はあえて壁を設置せず、目隠し用の植栽を設けることで、開放感がありながら外からの視線を緩やかに遮るデザインとなっています。

CASE756 utsuwa
LDKは中庭を囲むように配置されているため、どこからでも中庭の風景を楽しめる間取りです。LDKの床と中庭がフラットにつながっているので、空間の広がりが感じられます。
内と外の壁を統一させた開放的な中庭のある家

CASE736 アンモナイト
閑静な住宅街に建てられた、白を基調とするシンプルな外観の家です。外から窓や玄関が見えないよう設計されているので、プライバシー性が高くなっています。
敷地の高さ制限に抵触しないよう、建物自体の高さを抑えつつ、天井の高さをランダムに設計することで、中庭から入る自然光を反射させて優しい光に調整しています。

CASE736 アンモナイト
LDKはコーナー窓を全面ガラス張りにしているため、どこからでも中庭を楽しめる間取りです。また、中庭の外壁と室内の壁を同一にすることで、空間に連続性を持たせて広がりを演出しています。
屋外での豊かな時間を楽しめるウッドデッキの中庭のある家

CASE751 Contarst
お施主様の「将来は増築して美容院を開業できるようにしたい」という要望を考慮し、増築後もリビングで快適に過ごせるよう設計された家です。中庭は白い壁で囲まれていますが、これは美容院開業後にガラスで覆い、黒い壁とのコントラストを演出する予定となっています。
中庭はウッドデッキ仕様であり、LDKとフラットにつながっているので、リビングの開放感が向上しています。ウッドデッキ上にはテーブルや椅子が置かれているため、ティータイムや読書に最適です。
また、タイル張りの玄関の正面には地窓があり、中庭へと視線が抜けるように設計されています。
家族のつながりを感じる中庭のある家

CASE777 EN HOUSE
建物の中心に中庭を設けた、プライバシー性の高いロの字型の家です。中庭に面した窓を通して向こう側の部屋の様子が見えるので、家族のつながりを感じやすい空間となっています。
すべての空間に統一性を持たせるため、素材や色にこだわっていることも特徴です。
L字型のリビングに中庭から光が降り注ぐ家

CASE779 OWN SPACE
L字型のリビングが中庭を囲っているので、木漏れ日のような優しい光が降り注ぎ、室内を癒しの空間へと変えています。
平面と直線によるスタイリッシュなデザインと、落ち着いた雰囲気のダウンリビングが融合することで、同じ室内でそれぞれ異なる雰囲気を演出しています。
中庭に吹き抜けとテラスを組み合わせた開放的なLDKのある家

CASE771 VOIDS
中庭でリゾート感を演出した、ホテルライクなデザインの住まいです。広々としたエントランスエリアは、床と壁に用いる素材を中庭と統一することで、空間のつながりと伸びを演出しています。壁と窓の細部の納まりは、職人技が光る仕上がりです。

CASE771 VOIDS
また、LDKは中庭とテラスに挟まれており、6m以上の大きな吹き抜けを採用しているので、明るく開放感あふれる空間となっています。
階段をドラマチックに演出する中庭のある家

CASE727 ライトコートハウス
高低差が大きい立地に建てられた、シンプルデザインの家です。交通量が多い道路側の開口部を極力削減することで、プライバシーを確保しています。
LDK・玄関ホールとプライベート空間の棟に分かれており、2つの棟を階段で結ぶ間取りが特徴です。中庭(ライトコート)・階段ホール・テラスの配置を調整することで、LDKの開放感と採光性を高めています。

CASE727 ライトコートハウス
階段の近くがガラス張りになっており、昇降時に中庭のシンボルツリーが視界に入ります。
コンパクトな中庭とつながるLDKで開放感を演出した家

CASE717 光土間の家
シンプルかつコンパクトに設計された、中庭付きの家です。外から見える開口部が少なくプライバシー性に優れています。

CASE717 光土間の家
玄関を開けると、2層分の吹き抜け土間が広がっています。さらに、玄関の先には大開口窓と中庭があるため、光と風を採り入れやすい構造です。

CASE717 光土間の家
リビングは玄関と隣接しているので、吹き抜けから明るい光が入ってきます。リビングとダイニングキッチンを中庭でつないでいるため、空間の広がりだけではなく、家族のつながりを感じられる間取りです。
明暗のメリハリが楽しめる中庭のある家

CASE747 濃漆喰の家
高度な左官技術が求められる漆喰を取り入れた、個性的なデザインの家です。開放的に設計された中庭には、鮮やかな緑が広がっています。


CASE747 濃漆喰の家
内装は独特の柔らかな質感を持つ漆喰壁をベースに、タイルやアイアンをアクセントに加えることで、明暗のメリハリがついています。重厚感のあるインテリアと自然光がもたらす屋内の陰影が演出する、ゆったりとした雰囲気が魅力です。
また、LDKや玄関には大開口窓が設けられており、中庭の様子が一目でわかります。

【階数・形状別】中庭のある家の間取り
おしゃれで生活がしやすい中庭のある家にするには間取りの工夫が欠かせません。具体的なイメージが浮かばない場合は、フリーダムアーキテクツが手掛けた間取り例を参考にしてみてください。階数・形状別に中庭のある家の間取り例を見ていきましょう。
【平屋】くつろぎ時間を感じられる中庭のある家


コの字タイプの中庭のある平屋です。3方向を建物で囲うことで、プライバシー性の高い空間を実現しました。中庭は広々とした開放的なLDKと寝室、書斎に面しています。LDKの横に配置したウッドデッキはフラットにつながっており、白い砂利が敷き詰められた中庭に降りられるように工夫されています。
LDKは大開口の窓を設置したことで開放感がある空間になりました。書斎や寝室は中庭のある側の壁に窓を配置したため、室内からでも中庭を眺められるようになっています。書斎の逆側には駐車スペースがあり、車を置くことでほど良い目隠しとなりました。
【平屋】家事動線の良い中庭のある家


コの字タイプの中庭を配する平屋の間取りです。玄関に入ってすぐ右手に中庭があります。中庭にはLDKに隣接させた縁側と青々とした芝生、そして植栽が配置されています。玄関はさほど広くはないものの中庭を眺められる窓を設置したことで圧迫感のないスペースを実現しました。同時に中庭から光が入り込み、明るい空間となっています。
キッチンの横にはトイレやランドリールームなどの水回りをまとめて配置しています。中庭とランドリールームは近い場所にあるため、洗濯物を干したり取り込んだりする際の家事動線も効率的です。
【2階建て】空間にメリハリが生まれる中庭のある家



コの字タイプの中庭がある2階建ての間取りです。中庭はダイニングキッチンとリビングの間にあり、中庭のウッドデッキはそれぞれの床の高さに合わせているため、フラットに続いています。ダイニングキッチンとリビングは別々の間取りにしたことでメリハリのある空間となりました。
ダイニングキッチンとリビングには大開口の窓を設置したため、窓を開放してアウトリビングとしても活用できます。例えば、親戚や友人を呼んでBBQや誕生日会などの催しを企画するのもおすすめです。中庭があることで2階の寝室や廊下からの見晴らしも良くなりました。
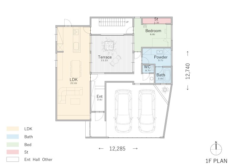
【2階建て】家の中で常に開放感のある中庭のある家



ロの字タイプの中庭を有する2階建ての家です。中庭はLDKと階段、廊下、寝室に囲まれた完全プライベート空間となっています。中庭の4方向に窓があり、LDKや寝室、廊下から自由に出入りが可能です。また、窓を通して中庭から光が入り、明るい空間を実現しました。
2階には約4.3帖の広々としたバルコニーがありますが、ウッドデッキの中庭は約11.2帖と広く、洗濯物の干し場としても活用できます。水回りから近い中庭のスペースを上手に活用することで、家事動線も短くできるでしょう。中庭とリビングは吹き抜けになっているため、1階も2階も開放感があります。

中庭のある家をつくる際に注意すべきポイント
中庭のある家を建てる際は、以下のポイントを意識しましょう。
・スムーズな動線になるよう間取りを工夫する
・メンテナンスしやすい空間にする
・排水対策をする
・虫や湿気対策をする
各ポイントの詳細も解説します。
関連記事:中庭のある家で後悔した理由| 失敗しないポイントや間取りをご紹介
スムーズな動線になるよう間取りを工夫する
中庭があることで、家の動線が悪くなることがあります。いちいち中庭をまわって各部屋に行くような間取りだと、日常生活でストレスの原因となってしまいます。
そこで、間取りを工夫して生活動線や家事動線はなるべく短くする必要があります。「キッチン・洗面所」や「寝室・トイレ」など、頻繁に行き来する場所は近くに配置することが基本です。
例えば、中庭を通り抜けてキッチンやランドリールームへ行けるよう設計すれば、動線がすっきりして利便性や快適性が向上します。
メンテナンスしやすい空間にする
美しい中庭を実現したいなら、建物部分を含むデザインだけではなく、メンテナンスのしやすさを重視することも大切です。中庭は常に目に触れる場所なので、きれいな状態をキープしやすいよう、お手入れの手間を減らす工夫が必要となります。
例えば、中庭を防草シートで隙間なく覆えば、雑草が生えにくくなるため、草抜き作業を省くことが可能です。また、中庭の形状をシンプルにすることで、メンテナンスが簡単になります。
さらに、掃除道具の収納スペースや屋外用水栓の位置を調整しておくと、メンテナンスの効率が上がるでしょう。
排水対策をする
中庭は水はけが悪くなりやすいので、排水対策が欠かせません。特に建物の形状がロの字の場合、事前に排水対策を講じていなければ、雨天時に水が外へ流れなくなるので、湿気や浸水の原因になります。
また、中庭および排水設備は落ち葉やゴミが蓄積しやすいため、定期的な掃除が必要です。
虫や湿気対策をする
自然とつながりやすい中庭のある家づくりをするなら、虫や湿気対策が欠かせません。特に中庭に植栽を飾ると虫が発生しやすくなります。また、ロの字タイプの中庭にすることで、湿気がこもりやすくなる恐れがあります。
中庭をつくる場合は排水性に優れた素材選びや傾斜設計を工夫しましょう。風通しを確保しやすくするための窓の配置も必要です。虫対策には窓に網戸を設置したり、虫が嫌う香りのするハーブを植えたりするのもおすすめです。

メリット・デメリットを知り中庭のある家を楽しもう
中庭のある家を建てると、日当たりや風通しが良くなるだけではなく、プライバシーの確保や防犯性の向上など、他にも多くのメリットを享受できます。一方、居住スペースの制限や建築コストの高騰など、いくつかのデメリットも発生するため、メリットと併せて把握しておきましょう。
フリーダムアーキテクツでは、中庭のある家を数多く手掛けてきた実績があります。ぜひ一度お問い合わせください。
◆◆「フリーダムアーキテクツが手掛けたデザイン住宅の作品集を今なら無料でお届けします。」◆◆

中庭のある家についてのよくある質問

中庭のある家についてのよくある質問に、フリーダムアーキテクツが回答します。
中庭のある家は固定資産税にどう影響しますか?
固定資産税の税額は、土地や建物の評価額に基づいて決まるものです。そのため、中庭の有無ではなく、家全体の評価額が影響します。
ただし、中庭が評価額に対してどう影響するのかは、自治体の評価基準や中庭の面積・設計などによって変動します。疑問や不安があれば、あらかじめ管轄の税務署や市町村役場に問い合わせましょう。
中庭のある家の建築コストはどれくらい高くなりますか?
中庭を設ける際の建築コストは、一般的な住宅建築における坪単価に3~5万円程度上乗せされる分が相場とされています。平均的な敷地面積で中庭を設置する場合、少なくとも数百万円以上はかかるでしょう。
中庭のある家を建てる場合、庭を囲む外壁はもちろん、照明設備や排水設備などの費用もプラスでかかってきます。基本的にデザインや設備にこだわるほど、費用も高くなると考えましょう。
中庭のある家を建てるには何坪以上必要ですか?
中庭のある家に必要な土地の広さは、建物の構造や中庭の大きさによって変動しますが、少なくとも30坪以上は必要とされています。
ただし、間取りやデザインを工夫すれば、狭い土地でも中庭を設けることは可能です。30坪未満の土地で家を建てる場合、ハウスメーカーや設計士に相談しましょう。
無料住宅作品集の取り寄せ
中庭のある家の実例を含む、約40の実例写真・間取り・価格をご紹介。資料請求いただいた皆様に、無料でお届けします。

住宅作品集を取り寄せる
注文住宅・デザイナーズハウス
の建築実例を探す
全国で年間約400棟の注文住宅を
設計しているからこそ、事例も豊富
この記事を書いた人

フリーダムアーキテクツ
設計チーム
1995年創業、累計4,000棟以上の住宅設計実績と数々のグッドデザイン賞受賞歴。土地探しから設計・施工までワンストップで対応し、お客様の暮らしに合わせた理想の住まいを実現します。フリーダムマガジンでは、豊富な実績をもとにした後悔しない家づくりのポイントをお届けします。












