
CASE762 Nature NaturalHOUSE
ガレージハウスは建物の中に車を収納できる家であることから、特に車やバイク好きな方に人気です。別荘地に愛車を保管し、趣味や旅行を楽しめるガレージハウスを建てたいという方も少なくありません。
ただし、別荘地で建てるガレージハウスのメリットを最大限活かすには間取りの工夫が必要です。メリットだけでなく、デメリットも存在するため間取りを検討する際は注意点を押さえておく必要があります。
この記事はこんな人におすすめ
- 別荘地にガレージハウスを建てることを検討している
- 別荘地で建てるガレージハウスの間取り例や建築実例を知りたい
- 別荘ならではの魅力的なガレージハウスを建てたい
この記事でわかること
- 別荘の特徴
- 別荘としてガレージハウスを建てるメリットやデメリット
- 別荘地で建てるガレージハウスの注意点
- 別荘地で建てるガレージハウスの建築実例や間取り例
無料住宅作品集の取り寄せ
ガレージハウスのある別荘の実例を含む、約40の実例写真・間取り・価格をご紹介。資料請求いただいた皆様に、無料でお届けします。

住宅作品集を取り寄せる
目次
別荘の特徴

CASE479 セカンドハウス 宙
別荘とは、リラクゼーションやレジャーを楽しむために所有する家のことです。海岸沿いや山岳地、温泉地といった自然が豊かな別荘地に建てることもあれば、観光スポットが点在する観光地に建てられることも少なくありません。自宅以外に2つ目の家を持つという点ではセカンドハウスと似ていますが、明確な違いがあります。
セカンドハウスとは、自宅とそれ以外の拠点を行き来する二拠点生活に利用される家のことです。セカンドハウスが生活の拠点であることに対し、別荘は保養を目的とした家と言えます。

別荘地にガレージハウスを建てるメリット

さまざまなメリットとデメリットがあるガレージハウスですが、別荘地こそガレージハウスを建てる魅力を発揮します。ここでは、別荘地にガレージハウスを建てる主なメリットを見ていきましょう。
・車を塩害や凍結から守れる
・防犯性が高い
・自宅ではできない間取りを実現できる
・生活導線が楽になる
・旅行の滞在先として使える
・別荘として貸すこともできる
車を塩害や凍結から守れる
別荘地のガレージハウスのメリットは、車を塩害や凍結から守れることです。
別荘地は海の近くや山地、寒冷地に多くあります。海の近くは潮風による塩害、山地では鳥のフン、寒冷地では車のフロントガラスの凍結などが気になるものです。建物に組み込まれてシャッターのあるガレージハウスなら、海辺や山地、寒冷地の別荘でも安心して車を停められます。
また、別荘地の天候が荒れたときでも、愛車を雨風にさらすこともありません。紫外線はもちろん、折れた木やゴミ、砂埃などの被害からも車を守ることができます。
防犯性が高い
車を盗難やいたずらから守れるのがガレージハウスのメリットですが、別荘地でこそ、このメリットを大きく発揮できます。別荘地は住宅密集地と違い、常に人の目があるわけではないため、盗難やいたずらを防ぎにくい環境です。また、別荘地に行かない期間にも別荘に車を置いておくケースもあるでしょう。
別荘に滞在中もそうでない場合も、車をガレージハウスに保管しておけるのは安心です。建物にガレージが組み込まれたガレージハウスなら、外部からの侵入や目線を防げるので、高い防犯性が期待できます。
自宅ではできない間取りを実現できる
別荘地のガレージハウスなら、自宅では叶わない愛車に特化した間取りを実現できます。都市部などの住宅密集地では一つひとつの土地が狭いことが多いため、広い土地を確保しにくいでしょう。そのため、サイズの大きい車やドアが縦に開くタイプの車は、ガレージに保管できないことがほとんどです。
別荘地なら敷地が広いため、居住スペースを確保しつつ、ガレージスペースをたっぷりと確保したうえで自由な間取りを設計できるでしょう。
生活導線が楽になる
別荘地ではさまざまなレジャーを楽しむ方が多く、その分、車からそれに伴う道具や荷物を出し入れするケースが増えるでしょう。ガレージハウスなら、キャンプやバーベキュー、ゴルフなどのレジャーで使う道具をガレージに置いておけば、そのまま車に積むことが可能です。
また、雨の日でも道具を濡らすことなく出し入れでき、車から降りてそのまま家の中に入ることもできます。
旅行の滞在先として使える
別荘は日常生活から距離を置いたプライベートな空間のため、非日常の暮らしを楽しむことができます。別荘としてガレージハウスを建てて、アウトドア用品や着替えなどを保管しておけば、手ぶらでも旅行を楽しむことが可能です。
別荘として貸すこともできる
別荘を長期間使用しない場合は、短期で貸し出しをすることで副収入を得られる可能性があります。別荘としてのガレージハウスは旅行時の滞在先だけでなく、趣味のスペースや創作活動の拠点など、さまざまな用途で使用できるため、短期の貸し出しの需要は高いでしょう。

別荘地にガレージハウスを建てるデメリット
旅行の滞在先や趣味スペースとして使用できるなど、多くのメリットや魅力があるガレージハウスですが、知っておくべきデメリットもあります。ここでは、別荘地にガレージハウスを建てるデメリットを解説します。
・建築コストが高くなる
・1階の居住スペースが狭くなる
・音や排気ガスなどが気になる
・車の台数や車種に制限がある
建築コストが高くなる
ガレージハウスは、1階部分にガレージ用の大きな間取りを確保するため建設コストが高くなります。大きな間口を確保するには、建物の強度を高める対策が必要になるためです。
また、長期間家を留守にする場合、セキュリティー対策にもコストがかかります。例えば、スマートフォンで現地映像の確認や照明のオンオフを遠隔操作できるスマートホームシステムの導入や、セキュリティー会社による警備などが挙げられます。
1階の居住スペースが狭くなる
ガレージが1階の大部分のスペースを占めるガレージハウスは、同じ階の居住スペースが狭くなります。建てた後に後悔しないためにも、計画時点で間取りや生活動線を工夫しなければなりません。
音や排気ガスなどが気になる
注意したいのが、音や排気ガスです。ガレージが居住スペースと同じ建物内にあるため、夜間にエンジン音が眠りの妨げになったり、排気ガスが建物内に充満したりなど、家族や近所に影響を与えるケースがあります。ガレージと寝室をできるだけ離すなどの対策が必要です。
車の台数や車種に制限がある
考えておくべきことは車の台数や車種についてです。ガレージの広さによって買い替えたい車種が入らなかったり、台数を増やしたいけど駐車場所に困るなどの懸念点があります。台数の変更や買い替えの可能性をイメージして設計しましょう。

別荘地にガレージハウスを建てる際の注意点

別荘地で建てるガレージハウスにはメリットが多いですが、考慮しておきたいこともあります。ここでは、別荘地だからこそ把握しておきたい、ガレージハウスを建てる注意点を解説します。
気候に対応したガレージハウスを建てる
別荘地それぞれで気候は異なるため、エリアごとの気候に対応したガレージハウスを建てましょう。
海に近い別荘地では、湿気や塩害への注意が必要です。湿気や潮風は建物の鉄部分の錆や腐食を進行させます。山に近い別荘地では、湿気や微生物によるカビやコケの発生に注意しましょう。落ち葉が多くなる時期には、雨樋などの詰まりも心配です。
別荘地に行かない期間にガレージ内にカビや湿気がたまってしまうこともあります。別荘地こそ換気などの湿気対策を意識しましょう。
セキュリティーを強化する
ガレージハウスはセキュリティーを高められますが、別荘の場合はしばらく家を空けることが多いため、その分危険性も高まります。
長期間留守にする際は、セキュリティー会社を利用するだけでなく、ガレージハウスに人がいなくても実際に人がいるように見せるセキュリティー対策を行うことが重要です。
例えば、家にいなくても現地の映像が確認できるようなシステムの導入や、自動でついたり消えたりする照明の設置など、複数のセキュリティー対策を検討しましょう。

別荘地で建てたガレージハウスの間取り
フリーダムアーキテクツが手掛けた別荘地に建てられたガレージハウスの間取り例をご紹介します。友人を招待したり、車を屋内にディスプレイしたりするなど、さまざまな間取り例があるため、ガレージハウスの間取りを決める際の参考にしてみてください。
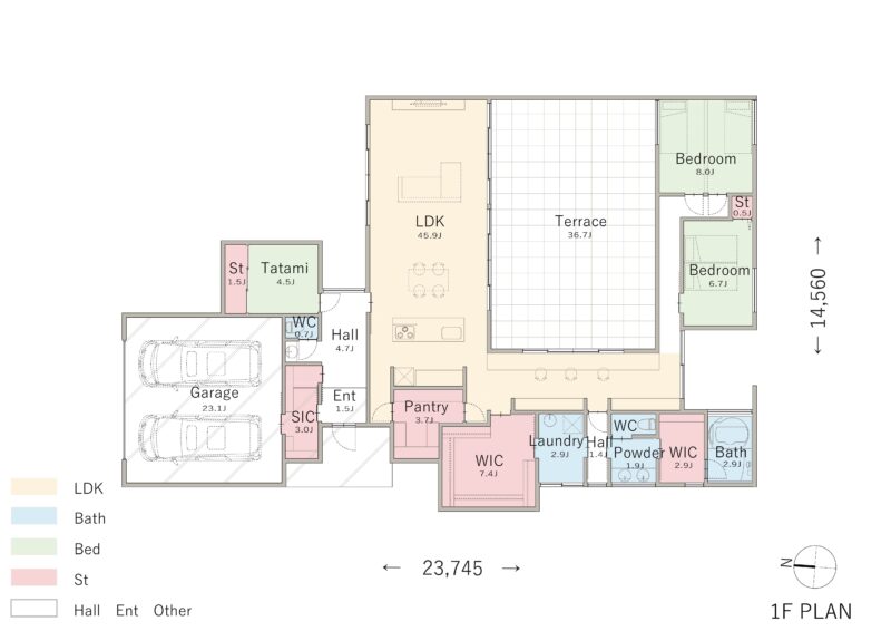
間取り①家の中でバーベキューを楽しめる別荘地のガレージハウス

ガレージには2台の車を収納でき、屋外スペースにも2台駐車できるガレージハウスです。
縦1列に並ぶLDKはそれぞれの空間がつながって見えます。リビングに隣接するのは、床と高い壁が白で統一された約37帖の大きなテラスです。テラスの一角には植栽を飾るなど、シンプルなデザインの中にも自然を感じられる工夫がなされています。
また、約3.7帖のパントリーや約7.4帖のウォークインクローゼットなどもあり、収納も豊富です。
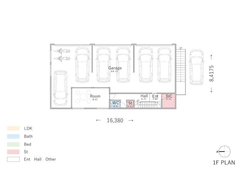
間取り②友人を多く呼べる別荘地のガレージハウス


2階建てのガレージハウスで、1階はすべてガレージです。
シャッター付きのガレージの中には、車6台とバイク2台を収納できます。屋外には車1台を駐車できるスペースも完備されており、車やバイク好きの友人を招待したい方におすすめの間取りです。ガレージの一角には約8.2帖の部屋があり、テーブルと椅子を設置することで愛車を眺めながらお茶や会話を楽しめます。
2階は居住スペースがまとめられており、リビングとダイニングキッチンの間に約7帖のバルコニーがあります。
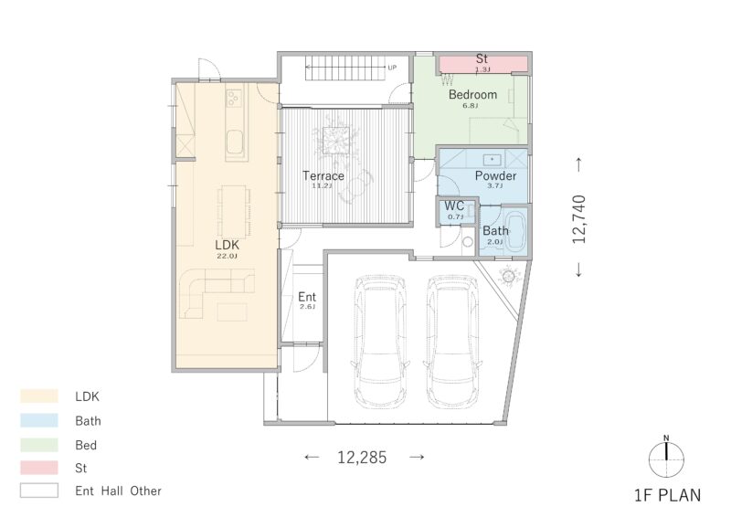
間取り③車をディスプレイのように飾れる別荘地のガレージハウス


ガレージの上部に建物をつくらないことで構造のバランスがとれたガレージハウスです。あえて凹凸をつくり、立体感のある外観になるようご提案しました。
ガレージのシャッターはグリルシャッターを採用したため、閉めたままでも車をディスプレイのように飾ることができます。LDKとベッドルーム、水回りの間には約11.2帖のテラスがあり、周りが建物に囲まれているため室内のプライバシーを保てます。リビングは吹き抜けがあり、開放的な空間です。
間取り④ベランダを一周できる別荘地のガレージハウス



3階建てのガレージハウスで、1階はすべてガレージスペースになっています。車3台を収納でき、ガレージ内から階段を上ると居住スペースに入れる間取りです。2階にはミニキッチンと小休憩をとれるベッドやテーブル、椅子、水回りが配置されています。
3階は約9.2帖のリビングと約11.2帖のダイニングキッチンがあり、キッチン裏には約1.6帖のパントリーも備え付けられています。また、家の周りを1周回遊できる広々としたベランダも魅力です。
間取り⑤家の中で植栽を楽しめる別荘地のガレージハウス


車4台を収納できる2階建てのガレージハウスです。
ガレージのシャッターは大きな庇と同じ木目調のデザインです。外観は建物を隠すように高い壁で囲われていますが、リビングの周囲やガレージ横と裏から玄関にかけて合計約42.1帖の広さのホールを配置しています。所々に植栽があり、室内外で緑を楽しめる工夫がされた間取りです。
LDKは吹き抜けをつくり、室内に光が入るように綿密な採光計画をもとに、リビングに多くの窓を配置しています。

別荘地で建てたガレージハウスの実例
実際に別荘地で建てたガレージハウスを紹介します。実例を参考に、好みのガレージハウスをイメージしてみてください。
実例①自然に癒されるガレージのある家

CASE762 Nature NaturalHOUSE
海に面したコンドミニアムのような家です。シンプルなキューブ型の外観の正面には、インナーガレージが設置されています。インナーガレージから玄関に入れる間取りや正面の窓の配置など、プライバシー性も考慮されたデザインです。
夜になると地面に埋め込まれた照明と窓からの照明の光が、外観のデザインを彩ります。吹き抜けのあるリビングの続きにはテラスがあり、海を堪能できる自然に癒やされそうです。
実例②まるでショーケースのようなガレージがある家

CASE479 セカンドハウス 宙
この家は、週末を楽しむためのセカンドハウスとして利用されています。家の周りには山や海が広がり、四季折々を楽しめる立地に建てられた、週末に非日常を味わえるのが魅力です。
リビングから愛車を眺められるガレージは、まるでショーケースのような空間が演出されています。赤と白の愛車と合わせたキッチンの色が、リビングの差し色となっています。リビングやお風呂、テラスなどは海を眺められる贅沢な空間です。

別荘地こそガレージハウスを検討してみよう!
別荘地こそガレージハウスはおすすめで、自然に恵まれた別荘地は、豊かな暮らしをもたらしてくれます。そこに自由度の高いガレージハウスを建てれば、より生活が豊かになるでしょう。ただし、自然に囲まれているからこそ、気候やカビ、湿気対策などが必要です。
フリーダムアーキテクツでは、これまでガレージハウス以外にも多くの別荘やセカンドハウスを手掛けています。別荘地ならではの快適な間取りやポイント、注意点などのご提案が可能です。
フリーダムアーキテクツは完全自由設計のため、お客様のご要望に最大限お応えすることができます。別荘地でガレージハウスを検討中でしたら、これまでフリーダムアーキテクツがデザインを手掛けた実例を参考にしてみてください。
◆◆「フリーダムアーキテクツが手掛けたデザイン住宅の作品集を今なら無料でお届けします。」◆◆
関連記事:
おしゃれで人気のガレージハウスの実例15選!メリットや注意点、おすすめの間取りなども解説
ガレージハウス・ビルトインガレージの施工事例

別荘やガレージハウスの注文住宅についてのよくある質問

別荘やガレージハウスの注文住宅を検討している方からは、固定資産税に関するお悩みを持つ方も多く、ご相談いただくことがあります。ここでは、別荘やガレージハウスの注文住宅を建てる際に多く寄せられた質問とその回答をご紹介します。
ガレージハウスに固定資産税はかからないですか?
独立型やビルトイン型のガレージハウスには固定資産税が課税されます。固定資産税の課税条件は、「外気分断性」「土地への定着性」「用途性」の3つです。外気分断性とは、屋根と3方向に壁がある建物のことです。
土地への定着性は基礎の上につくられており、地面に固定されていることで容易に移動できない建物を指します。用途性とは、駐車目的で使用できる状態のことです。
建物の中にガレージを配置するビルトイン型のガレージハウスは固定資産税の課税条件をすべて満たすことから、固定資産税が課税されます。
固定資産税がいらないガレージは?
カーポートや基礎のない物置のようなガレージは、固定資産税がかかりません。
固定資産税がかかる条件は、「外気分断性」「土地への定着性」「用途性」の3つです。屋根と柱だけのカーポートは外気分断性を満たさず、物置のようなガレージは土地への定着性を満たさないため、固定資産税が課税されません。
一方、独立型やビルトイン型のガレージハウスは固定資産税が課税されます。
無料住宅作品集の取り寄せ
ガレージハウスのある別荘の実例を含む、約40の実例写真・間取り・価格をご紹介。資料請求いただいた皆様に、無料でお届けします。

住宅作品集を取り寄せる
注文住宅・デザイナーズハウス
の建築実例を探す
全国で年間約400棟の注文住宅を
設計しているからこそ、事例も豊富
この記事を書いた人

フリーダムアーキテクツ
設計チーム
1995年創業、累計4,000棟以上の住宅設計実績と数々のグッドデザイン賞受賞歴。土地探しから設計・施工までワンストップで対応し、お客様の暮らしに合わせた理想の住まいを実現します。フリーダムマガジンでは、豊富な実績をもとにした後悔しない家づくりのポイントをお届けします。












