
CASE640 nature
面積が限られる狭小住宅でも、快適な暮らしを実現でき、おしゃれな外観や内装に仕上げられます。そのためには、まずは多くの建築実例とそこに取り入れられているアイデアを知ることが役立ちます。
この記事はこんな人におすすめ
- 注文住宅での家づくりを検討している方
- 快適でおしゃれな狭小住宅を建てたい方
- 都市部に住みたいため、狭小住宅を選択肢に入れている方
この記事でわかること
- 狭小住宅の建築実例
- 狭小住宅のおしゃれな外観、内装のアイデア
- 狭小住宅の住みやすい間取りのアイデア
無料住宅作品集の取り寄せ
狭小住宅の実例を含む、約40の実例写真・間取り・価格をご紹介。資料請求いただいた皆様に、無料でお届けします。

住宅作品集を取り寄せる
目次
おしゃれな狭小住宅の建築実例
おしゃれな狭小住宅をイメージするには、多くの建築実例を見ることが役立ちます。ここでは、フリーダムアーキテクツが手掛けた建築実例をもとに、外観のデザインを中心にご紹介します。
シンプルだけど立体感のある狭小住宅

CASE743 two-sidedness
こちらの都心部に建つ狭小住宅は、塗り壁を感じさせる黒を基調としたシンプルで存在感のある外観が特徴です。一階部分は開口部を減らし、洗練されたデザインとなっています。二階にはルーバー付きのバルコニーを設けているため、圧迫感がなく、奥行きと立体感が出ています。
黒い外壁が目を引く狭小住宅

CASE730 mist
こちらは、黒い外壁がモダンな3階建て住宅です。白い玄関扉がアクセントとなり、一層洗練された印象に仕上がっています。緩やかな勾配屋根も外観におしゃれな印象を加えています。
S字のような外観の狭小住宅

CASE720 S×S
スクエアな建物に切り込みを入れたようなデザイン性の高い注文住宅です。この切り込み形状により、プライバシーを確保しつつ、十分な採光と通風を確保。夜になるとバルコニーから光が漏れ、木目調の軒天井を優しく照らします。
大胆な外観デザインが印象の狭小住宅

CASE714 Grav
黒色を基調とした屋根と壁が印象的な注文住宅です。外壁の大胆な縦縞は、ガルバリウム鋼板を一面に採用することでつくり出されています。キューブ状の建物の一部を大胆に切り取ったかのような窓やポーチの部分が建物全体に動きを与えており、印象的な外観に仕上がっています。
まるで二階部分が浮いているような狭小住宅

CASE659 un cube
こちらの注文住宅は、ベージュとダークグレーを基調とした外観デザインです。二階の横長のスリット窓を木目調の建材で囲んでおり、おしゃれなアクセントになっています。夜になると軒天井にダウンライトがつき、まるで二階が浮いているような印象に変わります。
ピアノブラックの外壁が景色を反射させる狭小住宅

CASE646 鏡の家
こちらの注文住宅は、戸建てでは珍しいピアノブラックの鏡面サイディングを採用し、洗練された印象に仕上げています。縦長のスリット窓も印象的です。
シンプルで統一感のある外観デザインの狭小住宅

CASE612 たなのいえ
こちらは、窓の数を抑えたシンプルなキューブ状の建物をベージュ色の外壁で仕上げた注文住宅です。玄関やインターホン、ポストなどの色を外壁とコントラストのある黒にしたことで、引き締まった統一感のあるデザインになっています。
開放的で大開口の窓が印象的な狭小住宅

CASE604 “LIKE”
こちらは二階LDKに設置した大開口の窓が印象的な外観です。向かい側に建物がないことから、バルコニーや開口部を広く設け、開放的な印象に仕上げています。
プライバシー性の高い狭小住宅

CASE596 【edge】
こちらは、一階を木材、二階をグレーの外壁とした注文住宅です。色と素材を使い分けることで、窓が少ない家にありがちな単調さを避けつつ、おしゃれな外観に仕上げています。夜間は軒天井に設置した照明が木目の外壁をより引き立てます。
赤い玄関がアクセントとなる狭小住宅

CASE594 TOOL BOX
こちらの注文住宅では、黒の外壁に赤い扉がアクセントとなった外観デザインが特徴です。バルコニーのルーバーに濃い茶色を使うことで、重くなりすぎず、やわらかな印象になっています。

おしゃれな狭小住宅の間取り
ここからは、機能性とデザイン性を両立した狭小住宅の間取りを紹介します。フリーダムアーキテクツでは、これらの実例のように、ご施主様のライフスタイルやこだわりを実現する間取りを提案しています。
限られたスペースを上手に活用した狭小住宅の間取り


こちらの狭小住宅では、廊下をできるだけ減らし、ほかのスペースに振り分けているのが特徴です。
一階はリビングから扉ひとつで水回りや寝室につながっています。LDKはキッチンとダイニングを横並びにした効率的な配置により、くつろげるリビングスペースを十分に確保しました。
二階は階段ホールから2部屋に入れます。廊下のスペースを節約した分、各部屋に机やベッド、収納のためのスペースが生まれています。
開放的な吹き抜けのある狭小住宅の間取り


こちらは、玄関横に吹き抜けのあるテラスを配置し、開放感を出しています。LDKの半分も吹き抜けとなっており、広々とした印象です。
キッチンはセパレート型で動線を保ちながらダイニングのスペースを広くしています。さらにシューズクローゼットやパントリー、ウォークインクローゼットを要所に配し、使う場所の近くに十分な収納量を確保しました。
二階にLDKを配置した狭小住宅の間取り


こちらの注文住宅は、玄関に十分なスペースを確保し、自転車を置けるようにしました。一階は寝室などの3室を確保し、二階に広いLDKを設けた間取りです。
LDKにはスペースを取らない壁付けのL型キッチンを採用し、近くに食卓を配置することで、配膳・片付けがスムーズです。リビングの椅子も壁付けにしてスペースを有効活用できます。スタディスペースも確保しており、子どもの宿題を見るなどさまざまな用途があります。
洗面所の隣には室内干しができる人気のランドリールームを配置し、家事動線もスムーズです。

おしゃれな狭小住宅を建てる外観のアイデア
狭小住宅でも、工夫次第でおしゃれな外観に仕上げられます。ここでは4つのアイデアをご紹介します。
・外壁を工夫する
・シンプルなデザインにする
・窓の配置や種類に気を付ける
・アクセントをつける
アイデア①外壁を工夫する

CASE659 un cube
立面の面積が小さい狭小住宅では、外壁の「色分け」と「素材分け」で奥行きやスケール感を出せます。
写真の実例では、一階をダークグレー、二階をベージュで色分けして、二階部分が浮いているような印象にしています。二階の窓枠部分は木目の素材で変化を付けています。こうしたワンポイントで高級感を出したいときは、木目のほかにタイルも効果的です。
アイデア②シンプルなデザインにする

CASE612 たなのいえ
狭小住宅ほど、余白のつくり方が見た目を決めます。シンプル、モダンに寄せると、洗練された印象に仕上がりやすくなります。
上の写真の注文住宅は、キューブ型のシンプルな形状の外観が特徴です。掻き落とし仕上げの外壁を選ぶことで、無機質になりすぎず、やわらかな表情を生み出しています。
アイデア③窓の配置や種類に気を付ける

CASE716 Calm
都市部の狭小住宅は、隣家が近く、窓を自由に確保しにくい場合も少なくありません。窓の配置や種類のバランスが悪いとチグハグな印象になるため注意が必要です。
上の写真の実例では、上下階で縦ラインや横ラインを合わせ、さらに窓種もそろえたことで、上質で整った印象となっています。
アイデア④アクセントをつける

CASE691 MateriaBox
外観にアクセントを効かせると、狭小住宅でも街並みのなかで埋もれず、存在感を発揮できます。アクセントの方法は、大きな窓をつける、玄関扉の色を変える、ルーバー付きのバルコニーを設けるなどさまざまです。
上の写真の注文住宅は、二階に正方形の大開口窓を設けてアクセントにしたユニークな発想が特徴です。プライバシーを確保したい際は、ブラインドで目隠しができます。

おしゃれな狭小住宅を建てる内装のアイデア
室内をおしゃれな印象にするには、窮屈さを感じさせない工夫が重要です。ここでは、フリーダムアーキテクツが手掛けた実例のなかから、特に効果の高い4つのアイデアをご紹介します。
・明るい色にする
・素材を工夫する
・鏡やガラスを使う
・照明をすっきりしたデザインにする
アイデア①明るい色にする

CASE743 two-sidedness
狭小住宅では、光をよく反射し開放感をもたらす明度が高い膨張色が適しています。例えば、壁紙(クロス)を白系にし、床は白からベージュ系の明るいフローリングに統一すると、床・壁・天井のトーンがそろい、視線が抜けやすくなります。
上の写真の注文住宅は、白を基調とした明るい空間が印象的です。造作棚、照明、キッチンなども膨張色を選ぶと、さらに広さを感じられます。
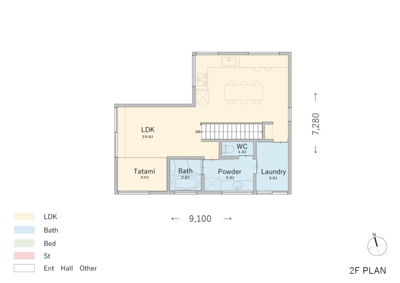
アイデア②素材を工夫する

CASE640 nature
素材を工夫することで、狭小住宅でもおしゃれな内装に仕上がります。
写真の実例では、木の温もりを感じられるフローリングを採用し、さらには木の梁を施すことで開放感が生まれ、インテリアのアクセントにもなっています。フローリングや天井を上手にデザインすることで、コンパクトな空間がダイナミックな印象になるでしょう。
アイデア③鏡やガラスを使う

CASE723 rise
鏡やガラスは視線の抜けをつくり、面積以上の広がりを感じさせます。例えば、玄関土間や廊下に全身ミラーを設置したり、室内窓(デコマド)やガラス引き戸でLDKと個室を緩やかにゾーニングしたりするアイデアが効果的です。
上の写真の注文住宅では、LDKの扉にガラスを組み込んだものを選び、採光と視界の抜けを実現しています。
アイデア④照明をすっきりしたデザインにする

CASE730 mist
狭小住宅では、視界をさえぎる照明を減らすほど広く感じます。天井面をフラットに保てるダウンライトや、光源を隠して壁・天井を柔らかく照らす間接照明を基調にすると、空間が整い、陰影で奥行きも出ます。空間に変化を付けるアクセントであれば、ペンダントライトも効果的です。
上の写真の注文住宅は、リビングや個室、玄関、廊下などの随所にダウンライトを使用することで、天井が高く広々とした印象の空間を実現しました。階段は壁面のフットライトで陰影をつけ、窮屈に感じないように工夫しています。

住みやすい狭小住宅を建てる間取りのアイデア
面積が限られる住宅ほど、間取りが住み心地を大きく左右します。ここでは、住みやすい狭小住宅を建てる間取りのアイデアを8つ紹介します。
・廊下を極力減らす
・スキップフロアにする
・スケルトン階段にする
・吹き抜け・勾配天井にする
・ロフトをつくる
・ビルトインガレージにする
・デッドスペースを活用する
・バルコニーで開放感をアップさせる
アイデア①廊下を極力減らす

CASE716 Calm
廊下やホールなどの移動のための面積を減らすと、その分をLDKや個室に配分できます。代表的なアイデアは、LDKから洗面・階段・個室へ直接アクセスするリビング中心の間取りです。また、リビング階段(リビング内に階段を設ける間取り)を組み合わせると、廊下の削減、居室の面積アップ、短い動線の3つを両立させられます。
上の写真の注文住宅は回り階段が廊下の役割を果たしているため、各部屋にすぐにアクセスできます。
アイデア②スキップフロアにする

CASE691 MateriaBox
スキップフロアとは、1.5階、2.5階のような中間層を差し込む設計です。壁で細かく仕切らず、高さの変化でエリア分けするのが特徴で、視線が抜け、同じ延床でも広がりを感じやすくなります。
上の写真の注文住宅は、スキップフロアでつながれたLDKから主寝室までのワンルーム空間で構成しました。段差で空間をゆるく区切ることで、ワンルーム的な一体感を保ちながら、メリハリを出しています。
アイデア③スケルトン階段にする

CASE612 たなのいえ
スケルトン階段(オープン階段)は、蹴込み板や側壁を最小限にした抜け感のある階段のことをいいます。段板と桁で構成され、向こう側が見通せるのが特徴です。
こちらの住宅では、土間の玄関の正面にスケルトン階段を配置し、二階のリビング、スキップフロア、3階へとつながっています。視界が抜けることで圧迫感がなく、デザインもおしゃれです。
アイデア④吹き抜け・勾配天井にする

CASE706 Re:load
吹き抜けは上下階をつなぐ大きな空間、勾配天井は屋根勾配に沿って天井を高く見せる仕上げです。どちらも視線の抜けと天井の高さで開放感を出せます。
上の写真の注文住宅は、吹き抜けリビングを採用しました。二階部分に大きな窓を設けているため、明るく開放的な空間となっています。
なお、吹き抜けや勾配天井は、空間が広くなるぶん暖房効率が悪くなるため、気密性や空調設備に配慮が必要です。
アイデア⑤ロフトをつくる

CASE594 TOOL BOX
ロフトは、居室上部の縦の余白を活用する小屋裏的なスペースです。収納・ワーク・キッズコーナーなど多用途に利用できるのが魅力です。
上の写真の注文住宅では、はしごからロフトに上れます。日中はハイサイドライトからの日を浴びながらハンモックでくつろげる、秘密基地のような空間です。
ロフトは建築基準法上「小屋裏物置等」の扱いとなるため、面積や高さに条件があります。事前に確認しておきましょう。
アイデア⑥ビルトインガレージにする

CASE617 Casa di Nero
ビルトインガレージは、建物の一部(主に一階)に車両スペースを組み込み、シャッター等で区切る方式です。狭小地でも駐車場を確保しやすく、雨風から車を守り、荷物の出し入れや防犯面でも利点があります。
一方、一階に大きな開口があるため耐震性が低くなりやすい点と、音・においの対策が必要になる点に留意が必要です。
上の写真の注文住宅では、壁を鏡としたインナーガレージで、広がりを感じられます。また、土間のエントランスから車を眺めることができます。
アイデア⑦デッドスペースを活用する

CASE456 Milky Way Train
面積が限られる狭小住宅ではデッドスペースを活用することが重要です。廊下や階段下を収納にしたり、リビングの一角に書斎・スタディスペースを設けたりするなど工夫が必要です。
上の写真の注文住宅では、廊下に書斎を設けて、一部屋分のスペースを節約しています。
アイデア⑧バルコニーで開放感をアップ

CASE720 S×S
バルコニーは外壁から張り出した屋外スペースのことです。室内とフラットにつなげると視線が外へ伸び、狭小住宅でも面積以上の開放感を出せるのがメリットです。
上の実例では、目隠しが設けられているリビング続きのバルコニーで、周囲の視線を避けやすくなります。物干し・ガーデニング・軽いアウトドアなど、多目的な活用も考えられるでしょう。

狭小住宅で快適な暮らしを実現しよう!
面積が限られる狭小住宅でも、さまざまなアイデアを取り入れることで快適な暮らしを実現できます。また、外観や内装をおしゃれに変えられます。まずは多くの建築実例を見ながら、理想的な住宅のイメージを固めていくとよいでしょう。
フリーダムアーキテクツは狭小住宅の実績が豊富です。ライフスタイルや将来の変化などに合わせた間取りの提案を心がけており、土地探しからお手伝い致します。
本記事でご紹介したフリーダムアーキテクツの建築実例に興味をお持ちの方は、より多くの住宅を紹介した作品集をぜひご覧ください。
◆◆「フリーダムアーキテクツが手掛けたデザイン住宅の作品集を今なら無料でお届けします。」◆◆

おしゃれな狭小住宅に関するよくある質問
細長い家のメリット・デメリットは?
細長い家のメリットとデメリットは以下の通りです。
【メリット】
1. 敷地の有効活用:狭い敷地でも細長い家を建てることで、有効に空間を活用することができます。
2. プライバシーの確保:細長い家は、部屋が独立して配置されることが多いため、プライバシーを確保しやすいです。
3. 光の取り入れ:細長い家は窓を設けやすいため、自然光をたくさん取り入れることができます。
4. 低コスト:土地の価格が高い都市部では、狭小地に建てることで初期投資を抑えられます。
5.省エネ:小さな空間は冷暖房の効率が良く、エネルギー消費を抑えられます。
【デメリット】
1. 通路の確保:細長い家は、通路を確保するためのスペースが必要になるため、有効な生活空間が狭くなる可能性があります。
2. 配置の制限:部屋の配置に制限が出ることがあります。例えば、リビングとキッチンを一緒にしたい場合でも、細長い形状では難しい場合があります。
3. 換気の問題:細長い家は、部屋が奥まっているため、換気が難しい場合があります。
これらのメリット・デメリットを考慮しながら、自分のライフスタイルや家族構成に合った家づくりを行うことが重要です。
狭小住宅とは、何坪以下の建築面積ですか?
15〜20坪(50平米~66平米)以下の住宅を指すことが一般的です。
ただし、狭小住宅についての明確な定義はありません。土地を確保しやすい地域では、より広い住宅を指す場合がありますし、ハウスメーカーや建築会社によっても定義が違います。
フリーダムアーキテクツでは、おおよそ30坪以下の土地の上に建てられる住宅を狭小住宅としています。
10坪の狭小住宅を建てるのにいくらくらいかかりますか?
建築費は1,100万円が目安です。
2024年度の住宅金融支援機構の調査によると、注文住宅の建築費の相場は3,932.1万円、延床面積は約35.8坪(118.5平米)でした。このデータから坪単価を算出すると「3,932.1万円÷約35.8坪=約110万円」となります。したがって、10坪の狭小住宅の建築費は、「約110万円×10坪=1,100万円」です。
ただし、使用する建材や間取りの形によって建築費は上下しますので、ご参考程度にしてください。
出典:住宅金融支援機構「2024年度 フラット35利用者調査」
15坪の狭小住宅を建てるのにいくらくらいかかりますか?
建築費は1,650万円が目安です。
2024年度の住宅金融支援機構の調査によると、注文住宅の坪単価の平均は約110万円です。15坪の狭小住宅の建築費は、「約110万円×15坪=1,650万円」となります。
この費用はあくまで目安ですので、ハウスメーカーや建築会社に見積もりを出してもらうことをおすすめします。
出典:住宅金融支援機構「2024年度 フラット35利用者調査」
無料住宅作品集の取り寄せ
狭小住宅の実例を含む、約40の実例写真・間取り・価格をご紹介。資料請求いただいた皆様に、無料でお届けします。

住宅作品集を取り寄せる
注文住宅・デザイナーズハウス
の建築実例を探す
全国で年間約400棟の注文住宅を
設計しているからこそ、事例も豊富
この記事を書いた人

フリーダムアーキテクツ
設計チーム
1995年創業、累計4,000棟以上の住宅設計実績と数々のグッドデザイン賞受賞歴。土地探しから設計・施工までワンストップで対応し、お客様の暮らしに合わせた理想の住まいを実現します。フリーダムマガジンでは、豊富な実績をもとにした後悔しない家づくりのポイントをお届けします。












